Zadáním pro studio 20–20–ARCHITEKTI bylo vytvořit v Praze monumentální prostor nabízející nejen středoamerickou kuchyni, ale zážitek z její kultury. Od začátku se pracovalo s myšlenkou otevřené kuchyně, velkých pecí na dřevo a hlučné Mexické haciendy.

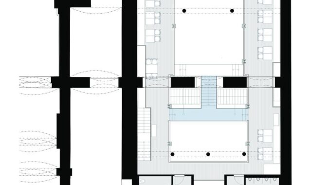
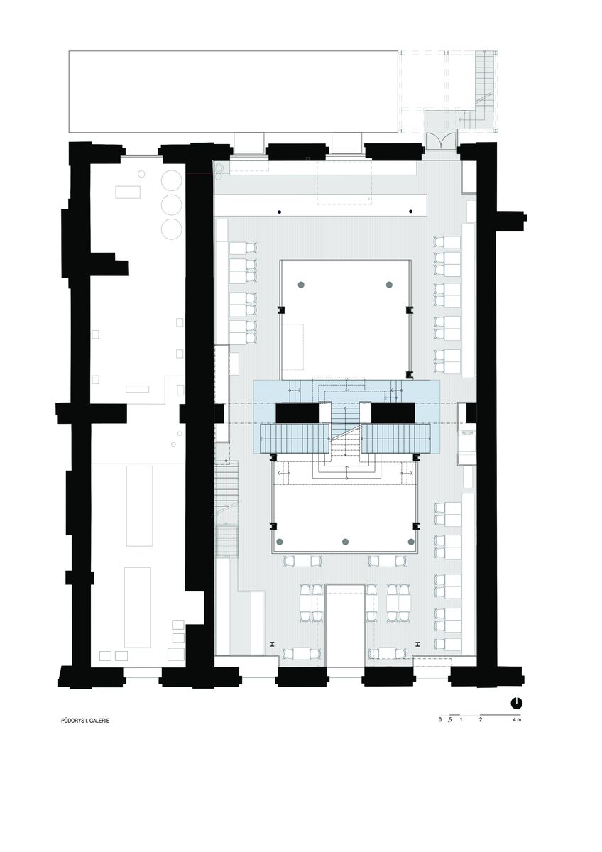
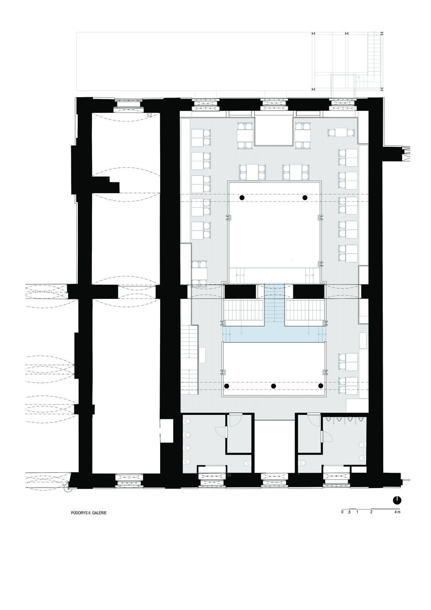
Unikátní na celé restauraci je její koncepce jako celek. Už fakt, že do převýšeného prostoru varny bývalého holešovického pivovaru vestavujeme dvě patra ochozů s centrální dvoranou je dostatečně výjimečný a přidáme-li k tomu několikaramenné prosvětlené zlatem se třpytící schodiště odkazující na historii Mexika v době Mayů, je jasné, že hostům je připraven nevšední zážitek.

Zajímavé je i prolnutí prostoru restaurace s originální kuchyní, kde se přímo před zraky hostů pečou tortilly, připravuje tacos, pokrmy na grilu a na dřevem roztápěné peci. V části s nádrží na ryby se připravují ceviche a jednotlivé ingredience jsou takřka na dosah ruky. Kuchyně stejně jako velký koktailový bar v patře má autentické tvarové a materiálové řešení včetně nápojové vitríny procházející nad barem do dalšího ochozu.

Ochozy jsou vynášeny sloupy obloženými kamennými reliéfy s motivy Mayského obrázkového písma, do kterých jsou přeneseny originální znaky abecedy vytvořené jen pro Mexickou restauraci grafikem Petrem Štěpánem ve spolupráci s architekty a sochaři. V prostoru restaurace je tedy ukryt i tento promyšlený rébus.

Latinskoamerickou atmosféru dotváří spojení odkazů na dávné civilizace neodmyslitelně spojené s mexickou kulturou, možná i stopa koloniálního ducha promítnutá do monumentální symetrie prostoru, a nakonec i typická syrovost mexické ulice, kde převažuje účelnost a výzdoba vzniklá jen jako přirozený otisk času.

Nově vestavěné ochozy jsou tvořeny ocelovým nosným rámem z masivních profilů v tyrkysově modré barvě a pochozími dubovými fošnami. Horní lávka podesty centrálního schodiště jakoby levituje v prostoru a prosklená podlaha je vynášena pouze subtilními kovovými profily na dvou kruhových sloupech. Co nejvzdušnější dojem pak dotvářejí černé ocelové sítě nahrazující zábradlí.

Unikátní je především materiálové a tím i vizuální řešení stupňů schodiště. Ty jsou pro dosažení zamýšleného efektu složeny z jednotlivých vyfrézovaných desek, které jsou sešroubovány a celý stupeň je pak vylit epoxidovou pryskyřicí s příměsí „zlatých“ plátků. Jednotlivé stupně jsou spojeny šrouby a opatřeny pochozím sklem. Bodovým osvětlením se pak schody v celé své hmotě rozzáří a dominují jinak monochromaticky pojatému interiéru.
Autorská zpráva
Místo U Průhonu 800/13, Praha 7
Autoři 20–20–ARCHITEKTI / Kristina Sudreová, Zdeněk Rychtařík, Václav Červenka, František Vorel, Lukáš Novák
Grafický design superlative.works
Rok projektu 2024
Rok dokončení 2025
Užitná plocha 890 m²
Fotografie BoysPlayNice
Komunikace Linka




















































Kaskády Hranice jsou skvělým příkladem toho, že i bytová výstavba může mít kvalitní architekturu, promyšlený urbanismus a příjemný prostor pro…
Architektura musí souviset s místem, nikoli místo s architekturou. Proto jakékoli stavby umožňující realizaci na různých místech nejsou ARCHITEKTUROU.
Z mého pohledu je fajn vidět, jak se i u tak „běžné“ věci, jako jsou překlady, řeší systémovost a přesnost!
Praktické řešení, hlavně z pohledu rychlosti výstavby a přesnosti👍 U těchto systémových prvků dává smysl, že zjednodušují realizaci a pomáhají…
Zajímavý posun ve stavebnictví, je vidět, že se dnes klade velký důraz hlavně na rychlost výstavby a přesnost provedení. Systémové…