Architekti ze studia SCHINDLER SEKO ARCHITEKTI proměnili šest hotelových pokojů ze 70. let v otevřený horský apartmán s panoramatickým oknem a balkonem. Interiér pracuje s přiznaným betonem, ocelí v odstínu savojského kříže a místním dřevem.

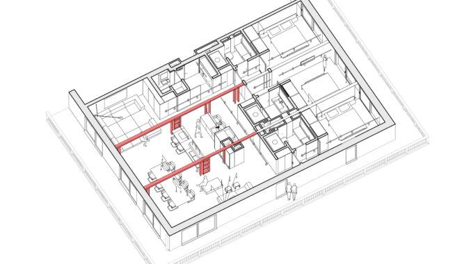
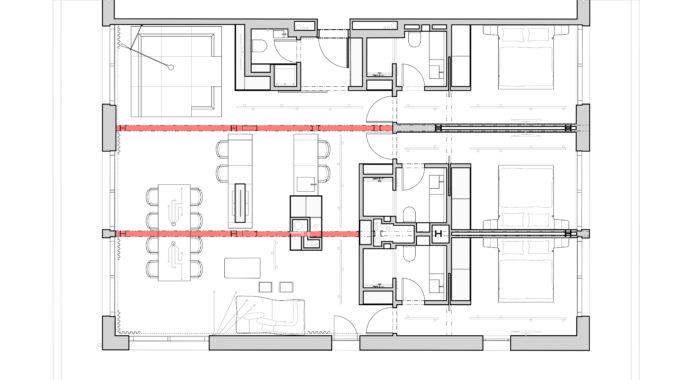
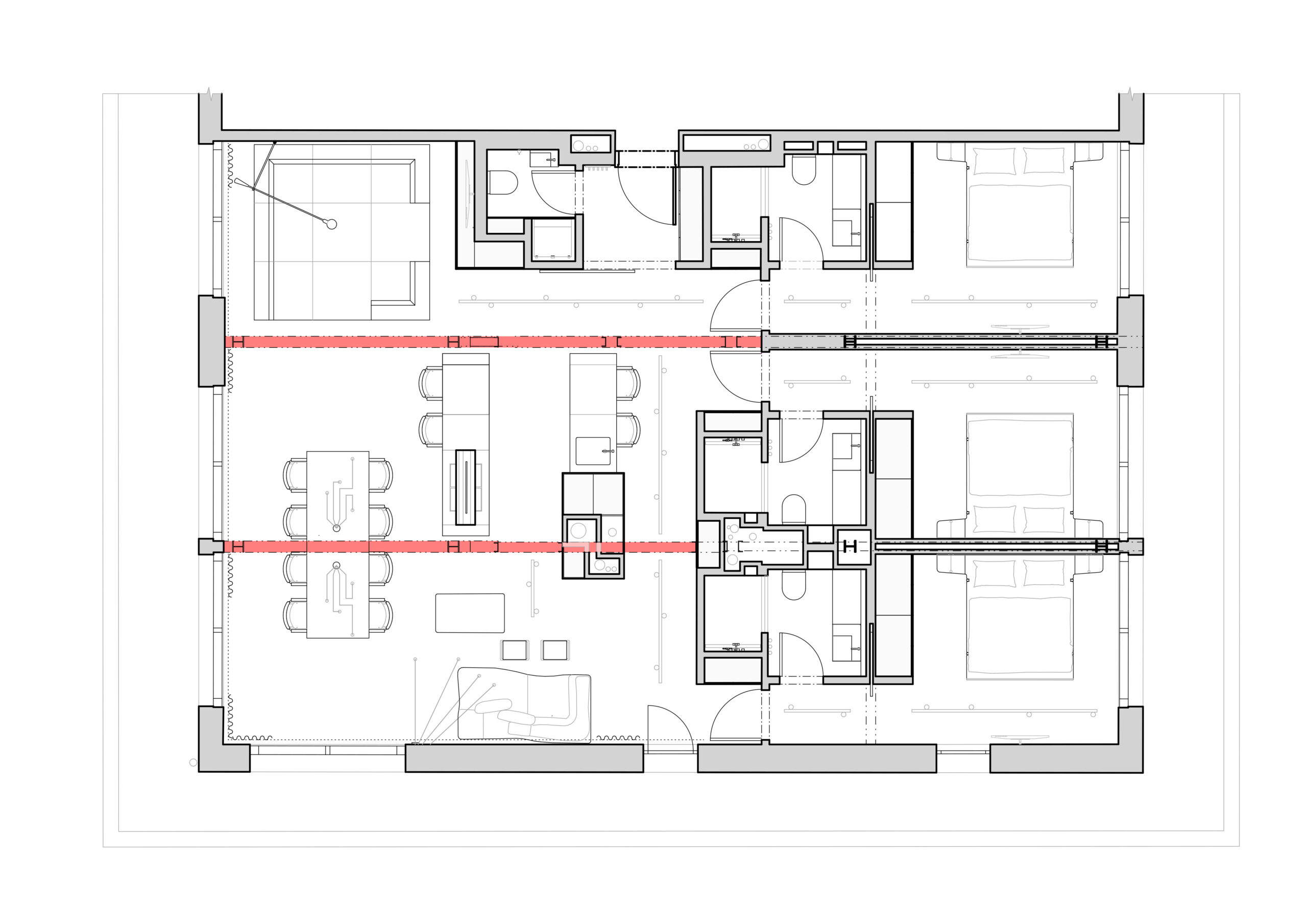
Starší prefabrikovaný objekt bývalého hotelu v Méribel ve francouzských Savojských Alpách je typickým příkladem unifikované horské výstavby 70. let. Přestavba apartmánu se vůči této drsné typologii vymezuje opačným přístupem – maximální péčí o vnitřní prostor, materiál a výhled. Původních šest pokojů bylo redukováno až na nosnou konstrukci. Po odstranění příček, vestaveb, koberců a výplní vznikla otevřená plocha – tabula rasa. Do jižní štítové stěny je vloženo nové velkoformátové okno, které rámuje panoramatické výhledy a otevírá interiér krajině.

Zásah nespočívá pouze v bourání. Beton a ocel jsou očištěny, leštěny, pískovány a lakovány s téměř karosářskou přesností. Přiznané jsou kaverny po betonáži i technologické stopy výroby; plátování a zátky reagují na statické i estetické požadavky a forma sleduje funkci. Původní ocelové konstrukce sjednocuje ohnivzdorný nátěr v odstínu červené savojského kříže, který se z regionální symboliky promítá do architektonického jazyka interiéru. Společný obytný prostor zůstává esenciální – dominuje ocel a beton, doplněné transparentním nátěrem na beton, červenou na ocel a dřevem z místních hor na podlaze. Nové prvky se původní konstrukci podřizují.
Soutěž Interiér roku, kterou pořádá Institut bytového designu, každoročně oceňuje výjimečné soukromé i veřejné interiéry navržené českými a slovenskými architekty. Do 11. ročníku soutěže mohou designéři a architekti přihlašovat své nově realizované interiéry do 28.2.2026, více se dozvíte na interierroku.cz. Časopis STAVBA a stavbaweb.cz je mediálním partnerem soutěže.

Dispozice je organizována modulárně a je prostoupena provozními i pohledovými osami. Na neutrální vstupní halu navazuje barevně výraznější obytná část rozdělená do čtyř modulů – vaření, posezení, lenošení a jídelna. V zadní části prostor postupně přechází do tlumenější atmosféry, přes filtr koupelen a sociálního zázemí až do tří ložnic. Sekvence tónů od světle šedé po krémově bílou podporuje pocit postupného zklidnění. Nejmenší místnosti pracují s monochromatickým řešením – keramický obklad, dlažba i kompozity dřeva jsou sjednoceny do jednoho tónu.

Zásadním, i když nehmatatelným prvkem návrhu jsou průhledy napříč apartmánem a výhledy do krajiny – přirozené „point de vue“, které utvářejí prostorový vjem. Celý apartmán obepíná průběžný prstenec balkonu, jenž rozšiřuje obytný prostor za hranice oken a stěn a umožňuje vnímat okolní hory v širokém panoramatu. Interiér se tak stává součástí horské krajiny. Atmosféra, patrná už ve fázi hrubé stavby, je dále kultivována minimálními, ale přesnými zásahy, které hledají symbiózu mezi původní konstrukcí a novými vrstvami.
Autorská zpráva
Místo: Meribel, Savojské Alpy, Francie
Autoři SCHINDLER SEKO ARCHITEKTI / Jan Schindler, Eva Vaňáčová Železná, Ludvík Seko
Foto: Roman Mlejnek




























Povedený projekt 👍 Takových realizací by mohlo vznikat víc.
Kaskády Hranice jsou skvělým příkladem toho, že i bytová výstavba může mít kvalitní architekturu, promyšlený urbanismus a příjemný prostor pro…
Architektura musí souviset s místem, nikoli místo s architekturou. Proto jakékoli stavby umožňující realizaci na různých místech nejsou ARCHITEKTUROU.
Z mého pohledu je fajn vidět, jak se i u tak „běžné“ věci, jako jsou překlady, řeší systémovost a přesnost!
Praktické řešení, hlavně z pohledu rychlosti výstavby a přesnosti👍 U těchto systémových prvků dává smysl, že zjednodušují realizaci a pomáhají…