Rekonstrukce kancelářského patra proměnila původně uzavřený a roztříštěný prostor v přehledné sdílené pracovní prostředí. Návrh studia Marco Maio Architects vychází z kulturní identity Paláce Akropolis a interpretuje ji prostřednictvím střídmé materiálové palety a jasné prostorové struktury.

Kancelářské podlaží o ploše 470 m² se nachází v historickém Paláci Akropolis na pražském Žižkově. Interiér budovy získal svůj specifický charakter v 90. letech díky výtvarníkovi Františku Skálovi. Současná rekonstrukce na tento odkaz nenavazuje doslovně, ale převádí jej do klidného a funkčního pracovního prostředí odpovídajícího současným potřebám.

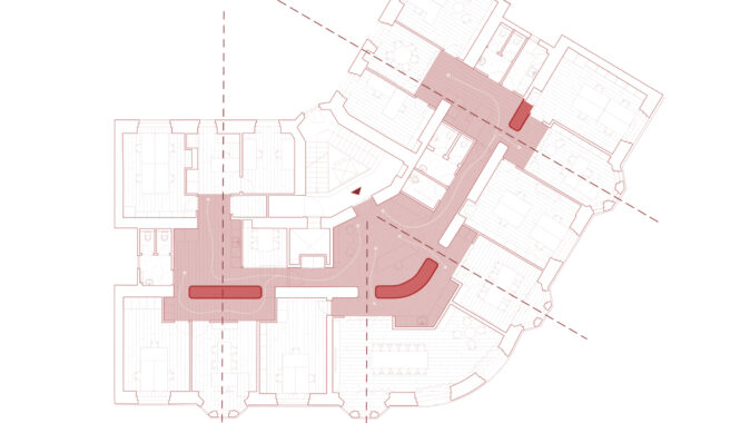
Dispozice je organizována kolem centrálního prostoru – společného hubu, který funguje jako hlavní komunikační osa i společenské jádro patra. Přirozené světlo proniká z obou fasád a pomáhá orientaci v prostoru. Centrální osa propojuje recepci, pracovní zóny i zasedací místnosti. Interiér pracuje s omezenou paletou materiálů. Dříve tmavé chodby byly nově řešeny jako jemně zakřivené průchody obložené červenými keramickými obklady, které se staly charakteristickým prvkem projektu. Ve světlejších tónech se keramika objevuje také v sociálních zařízeních a vytváří barevnou kontinuitu napříč podlažím.

Materiál doplňují dubové podlahy, nábytek a okenní rámy, které do interiéru vnášejí teplejší charakter. Zasedací stoly z ořechového dřeva vytvářejí kontrast k jednodušším povrchům a zdůrazňují řemeslné zpracování. Osvětlení zvýrazňuje zakřivené tvary průchodů a podporuje orientaci v prostoru. Pracovní prostředí kombinuje společné zóny s místnostmi pro soustředěnou práci. Prosklené příčky zajišťují akustický komfort a zároveň zachovávají vizuální propojení jednotlivých částí kanceláře. Interiér tak vytváří vyvážené prostředí pro spolupráci i individuální práci.
Podle autorské zprávy
Lokalita: Praha – Žižkov
Autoři: Marco Maio Architects / Marco Maio
Spoluautor: Kadir Sönmez
Autorský tým: David Pesek Muller, Mylana Sydorenko, Kateřina Zapletalová
Klient: Realitní Fond Praha, Advokacie Praha, 2OPF
Návrh a projekt: 2024
Realizace: 2025
Užitná plocha: 470 m²
Foto: Alex Shoots Buildings




































Architektura musí souviset s místem, nikoli místo s architekturou. Proto jakékoli stavby umožňující realizaci na různých místech nejsou ARCHITEKTUROU.
Z mého pohledu je fajn vidět, jak se i u tak „běžné“ věci, jako jsou překlady, řeší systémovost a přesnost!
Praktické řešení, hlavně z pohledu rychlosti výstavby a přesnosti👍 U těchto systémových prvků dává smysl, že zjednodušují realizaci a pomáhají…
Zajímavý posun ve stavebnictví, je vidět, že se dnes klade velký důraz hlavně na rychlost výstavby a přesnost provedení. Systémové…
Jako problém vidím hlavně "lavičky" v prostoru sdíleném s cyklisty. Neměly by mít třeba tyče s praporky, jako dětské nákupní…