Interiér bytu v pražské Pernerově ulici navrhli architekti ze studia momentura pro pár, který chtěl domov, kde se dá volně dýchat, pracovat i lenošit — a kde se všichni členové domácnosti, včetně čtyřnohých, budou cítit dobře.

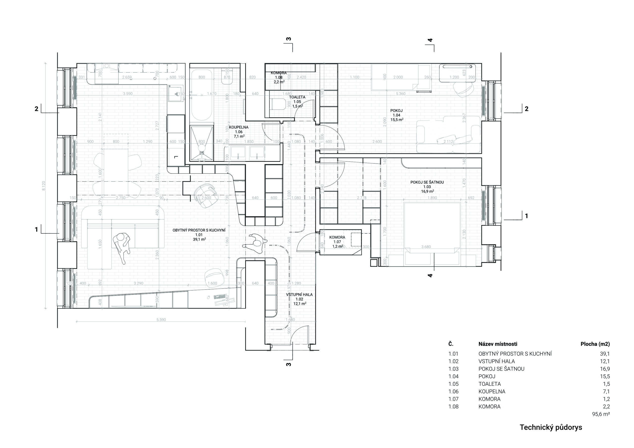
Z původního bytu se dvěma koupelnami jsme vytvořili světlý, otevřený prostor, který přirozeně propojuje život, práci i odpočinek. Centrem bytu je obytný prostor s kuchyní a knihovnou, kde se dá vařit, pracovat, číst i povídat si – všechno najednou, aniž by si kdokoli překážel. Dva pracovní kouty, velkorysá kuchyň, knihovna a místo pro psy i pohodlné křeslo pro čtení a lenošení. Minimalismus s duší, funkčnost – domov, který žije s lidmi, ne vedle nich.

Zadání od klienta bylo jasné – byt by měl spojovat a ne rozdělovat a přesně to dělá. Hlavní roli hrají světlé barvy, dřevo a detaily, které dodávají teplo a osobitost. Domov, který žije s lidmi se stal skutečností. Každý detail tu má svůj smysl – žádná zbytečnost, žádná efektní gesta.

Ložnice v bytě je navržena jako útočiště po celém dni – prostor, kde můžeš zpomalit a nechat město venku za roletami. Tón v tónu laděné barvy, jemné textilie a úplná tma díky venkovním roletám vytvářejí ideální prostředí pro hluboký spánek. Tento prostor si tak zachovává jednoduchost, funkčnost a rovnováhu mezi estetikou a pohodlím. Dvě samostatná umyvadla, dostatek světla a vana – prostor pro sdílení i ticho. Čisté linie, minimum spár, promyšlené detaily a chytré osvětlení podporující přirozený rytmus dne.

Každý detail tu má svůj smysl – žádná zbytečnost, žádná efektní gesta. Nové dveře dorostly ke stropu, aby prostor dýchal. Světlo se odráží od teplých tónů parket a putuje po bytě až do šatny, která nahradila jednu z původních koupelen. Mosazné úchyty se prolínají celým bytem, kuchyňská deska se jemně láme do oblouku a kabely od rekuperace nebo chytré domácnosti zůstávají v neviditelné rovině – přesně tam, kam patří.
Autorská zpráva
Místo stavby: Pernerova, Karlín, Praha
Autoři: momentura
Spolupráce: Tereza Černá
Projekt: 2024–2025
Realizace: 2025
Zastavěná plocha
Hrubá podlahová plocha: 102 m²
Užitná plocha: 99 m²
Foto: Michal Rouha
































Výtvarně malebné, ale jak se bude odstraňovat sníh z těch zapuštěných teras?
Zajímavý vhled do problematiky náhrady PSu. Je pravda, že i když je pěnobeton technologicky náročnější na přesné dodržení postupů, jeho…
Úžasný projekt! 🌿🏡 Perfektní propojení moderní architektury, přírodních materiálů a praktického řešení, dům i zahrada působí opravdu harmonicky a inspirativně
Hm, v takovém domě bych si dokázal představit bydlet😎
inspirativní článek, který ukazuje, jak může promyšlená architektura citlivě zapadnout do krajiny a zároveň splnit nároky moderního bydlení i podnikání...spojení…