Bývalý pražský hotel InterContinental je jedním z vrcholných příkladů evropské brutalistní architektury. V rámci rekonstrukce na Hotel Firmont Golden Prague studio TaK Architects mířilo dál než k obnově. Myšlenkou bylo ukázat dřívější části budovy v novém světle, hotel rozšířit a obohatit o novou vrstvu.

Původně hotel vznikl s myšlenkou ukázat to nejlepší z Československa a v 70. letech byl vůbec první americkou investicí v tehdejším východním bloku. Byl navržen týmem vedeným architektem Karlem Filsakem, který k tvorbě přizval nejen další významné architekty, ale také výtvarné umělce. Vzniklo dílo, ve kterém se architektura, design a umění propojují do jednotného celku. A také možná poslední v pravém slova smyslu generační projekt, „Gesamtkunstwerk“, který odrážel nejen kvalitu české architektury a užitého umění, ale současně vzepětí české kultury 60. a 70. let. Od svého otevření se stal výkladní skříní československého designu a umění, symbolem luxusu a špičkové gastronomie. Byl ambasadorem své doby a místem, které se svou úrovní srovnávalo s nejlepšími světovými hotely.

Zatímco jiné ikonické stavby ze stejného období, jako Transgas nebo hotel Praha, byly novými vlastníky zbourány, tato dostala šanci na nový život. Jako výjimečnou stavbu v srdci Prahy se ji rozhodla zachránit trojice českých podnikatelů Oldřich Šlemr, Pavel Baudiš a Eduard Kučera. Důvodem byly nejen osobní vzpomínky každého z nich, které se k budově vážou, ale také záměr obnovit její význam jako architektonického skvostu a společenského centra, které bude opět sloužit místní komunitě, návštěvníkům města a bude zachováno pro budoucí generace.

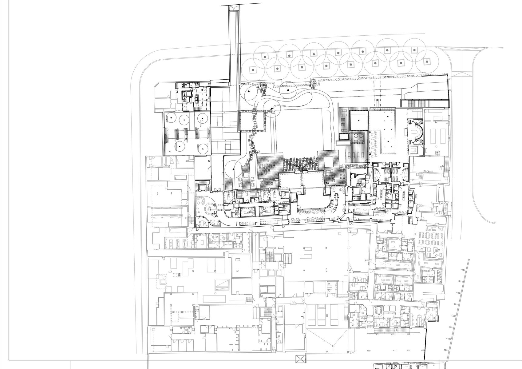
Současně byli přesvědčeni, že proměnou musí projít nejen budova, ale i celé okolí hotelu, které zůstalo z důvodu společenských změn nedokončené, desítky let opomíjené a tvořilo jedno z nejzanedbanějších, komunikačně kolizních míst v samotném středu města. Hotel jsme doplnili jsme o několik dostaveb a konverzí prošlo celé okolí. Řada původně hotelových ploch se transformovala na veřejný prostor, který je plně prostupný, nabízí nové pěší trasy a pobytově atraktivní místa. Díky této demokratizaci a také úpravám stavby se hotel po mnoha letech s městem propojuje a stává se jeho součástí.

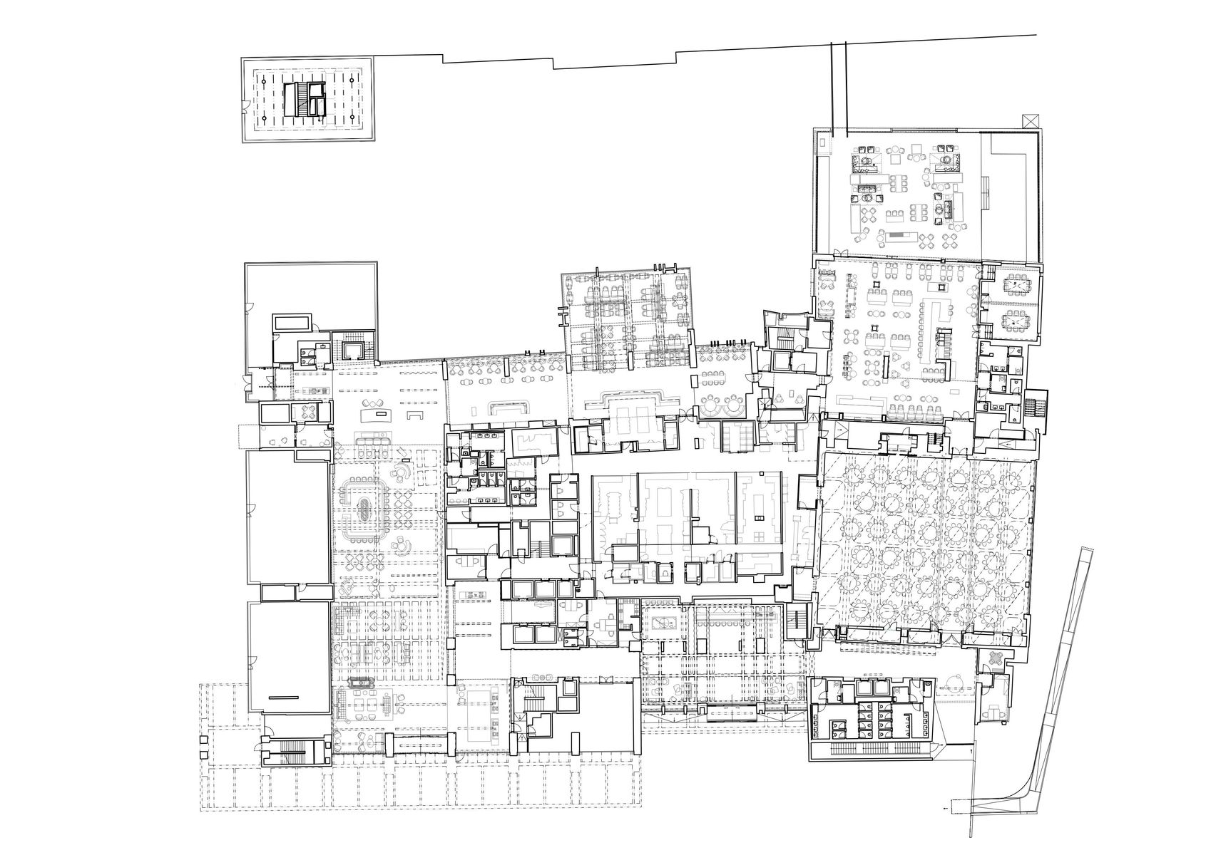
Jedním z klíčových prvků vize je dokončení parteru ulice Pařížská. Plně transparentní linie s unikátní konstrukcí ze skla doplněná autorskými díly vystupuje z těla hotelu, potkává se s nově vysázenou zelení a pokračuje k nově vybudovanému veřejnému prostoru na rohu Dvořákova nábřeží. Ten sestupuje po zeleném svahu na úroveň, kde je možné pokračovat nově vytvořeným průchodem až k řece. Městský bulvár a park je v tomto místě doplněn další dostavbou, pavilonem pro galerii současného umění. Souběžně s ulicí Pařížská je uvnitř hotelu vedena i hotelová galerie se vstupy z obou stran, z města i od řeky. Díky tomu jí lidé budou moci volně procházet. Cílem bylo přilákat návštěvníky dovnitř hotelu, kde zejména přízemí je sbírkou umění. Při rekonstrukci jsme kladli důraz na to, aby prostory nebyly určeny pouze pro hotelové hosty, ale byly přístupné pro všechny. Dvě ze šesti restaurací, které Fairmont Golden Prague otevírá, a galerie s uměleckými díly mají přímý vstup z Pařížské ulice nebo z nové lávky ze Dvořákova nábřeží.

Rekonstrukce budovy a její přestavba propojují restaurované prvky s novou vrstvou na úrovni architektury, umění a prostorového uspořádání. Navázali jsme na původní koncepci, založenou na dialogu tří základních materiálů – betonu, skla a dřeva, které se v obměnách objevují ve všech částech objektu. Mnohem podstatnější je však filozofie přístupu, snaha navázat na způsob práce předchůdců; pracovat v týmu s výtvarníky a designéry, společně tvořit dílo, kde se smazává hranice mezi architekturou a uměním.

Vzhledem k mimořádné rozloze stavby a okolí je výsledek grandiózní i svým rozsahem. Jedná se o jednu z nejrozsáhlejších a nejkomplikovanějších realizací pozemního stavitelství za poslední dekády, vyžadující zapojení širokého realizačního týmu. Proto byla přizvána skupina Metrostav s ústřední postavou projektu v osobě Davida Vlasáka, který stojí i za realizací rekonstrukce Paláce Elektrických podniků, na které jsme se potkali.

Práci na rekonstrukci komplikoval technicky nevyhovující, v mnoha místech havarijní stav stavby. To vedlo dokonce k odejmutí celých částí hotelu a požadavku vystavět je od základu. I tak velká a sledovaná státní zakázka ze 70. let s sebou totiž nesla stopu nekvalitní socialistické výstavby. O to složitější bylo za pochodu řešit technické komplikace, projektovat a stavět. O to důležitější byla zkušenost týmu s velkými konverzemi, rekonstrukcemi památkově chráněných objektů, veřejného prostoru a s projekty v centru Prahy. Projekt se podařilo realizovat ve výjimečné kvalitě za méně než pět let.

Během rekonstrukce se tak podařilo zachovat a restaurovat řadu původních uměleckých děl a architektonických celků. Za příklad může sloužit obnovená keramická fasáda od sochaře Zbyňka Sekala, která se stala předlohou desítkám staveb v Československu. Při její rekonstrukci bylo 48 z původních 52 svislých keramických pásů sejmuto a nahrazeno novými, jejichž vývoj, výroba i instalace trvaly několik let. V přízemí byl znovu vystavěn betonový strop ústředního konferenčního sálu, původně podle návrhu Jana Šrámka, doplněný lustry sklářského výtvarníka Reného Roubíčka. Prostor byl po přestavbách v uplynulých dekádách v havarijním stavu, byl ale zásadním prvkem pro citaci tvorby z konce 60. let, zachycující dialog betonu a skla. Proto byl obnoven v originálním tvarosloví. Díky nové konstrukci, kterou tvoří 25 m dlouhé mostní nosníky z předpínaného betonu, bylo možné vybudovat na střeše další část konferenčního centra, zelenou pobytovou terasu a přechod do oddělené části hotelu se servisovanými apartmány v sousedním bloku domů.

Do interiéru se vrátila ikonická díla, jako jsou dřevěné stropní plastiky s motivy cechovních erbů od Čestmíra Kafky nebo kompozice sloupových soch Začarovaný les od Miloslava Hejného, byť zachovaná jen z části. Návratu se dočkala pozlacená svítidla Huga Demartiniho, která v restauraci Zlatá Praha doplňují paravány z lehaného skla sklárny Sallinger, nebo v přízemí skleněné tavenice od výtvarníků Stanislava Libenského a Jaroslavy Brychtové. Na ty navazuje jejich pokračovatel a vynikající tvůrce Zdeněk Lhotský. Právě toho jsme přizvali jako jednoho z prvních ke spolupráci na nové podobě hotelu, pojatého jako „Gesamtkunstwerk“. Mezi další restaurované práce a umělecké analogie patří devět vitráží od Josefa Jíry, doplňované současníkem této techniky Janem Černohorským, velkoformátový obraz malovaný voskem od Františka Ronovského či monumentální plastické dřevěné stěny od Josefa Klimeše. Během rekonstrukce bylo do restaurování, návrhu a realizací nových děl zapojeno více než dvacet studií.

Hotel propojuje historické umění se současnou tvorbou, což návštěvníci i hosté pocítí hned při vstupu. Hlavní vchod lemují Nebesa, světelná instalace od Jana Kukly složená ze šesti set svítících tyčí hutního skla. Se stejným autorem jsme pracovali na velkých barech konferenčního sálu. Recepce tvoří skleněné cihly se zrcadlovou vrstvou, které podle našeho návrhu pro hotel vybrousil Jan Černohorský. Dalším výrazným prvkem je série skleněných plastik Tapiserie od Zdeňka Lhotského, které dekorují celé přízemí i další společné prostory, ale vystupují též na fasády, kde tvoří velkoformátové skleněné obrazy s kinetickou optikou. Lobby vévodí velkoplošná instalace Domovní znamení od sochaře Martina Janeckého, zatímco recepci Fairmont Spa & Wellness, skrze kterou vede zároveň vstup do hotelu z nového dolního náměstí, lemuje velkoformátová, osm metrů dlouhá skleněná plastika, která je analogií vody a vznikla ve spolupráci se společností Lasvit a designérkou Wandou Valihrachovou.

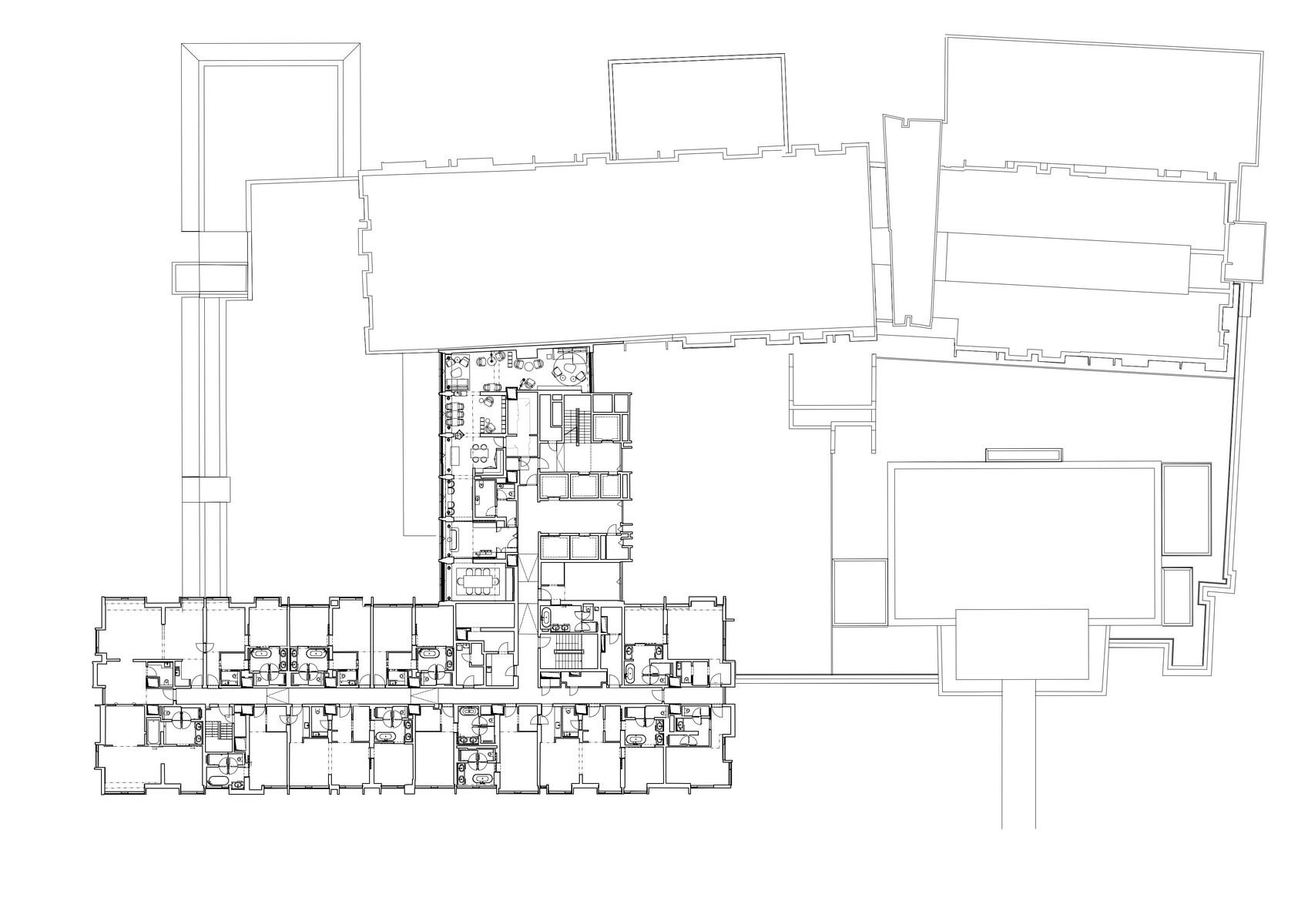
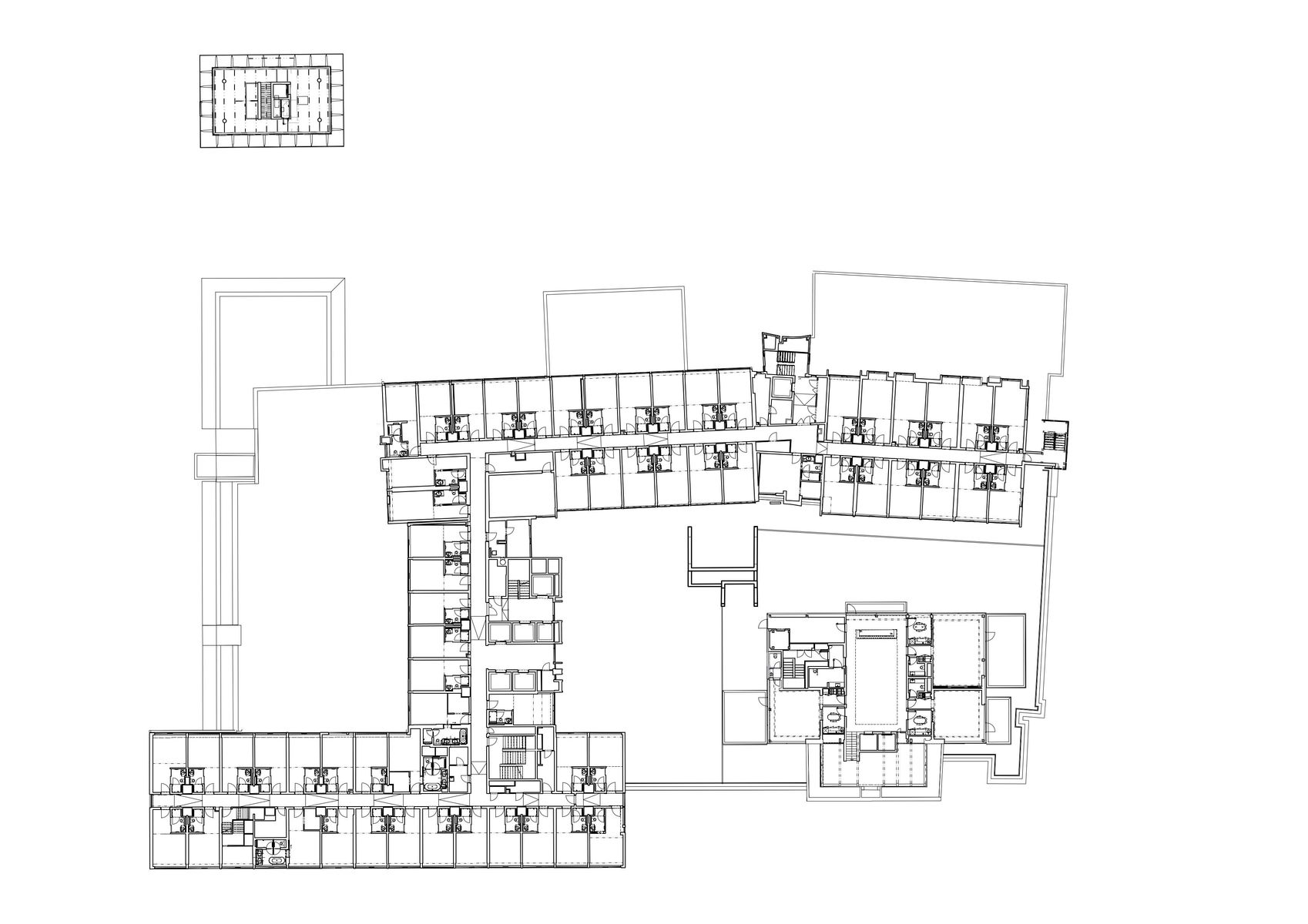
Ubytování je stejně jako dříve určené 2. až 8. patro budovy. Všech 320 pokojů a apartmá v hotelu Fairmont Golden Prague spojuje modernistický design, sofistikovaný komfort a funkční luxus. Interiéry, inspirované původní architekturou, jsou navrženy s důrazem na precizní zpracování a jedinečné detaily, které splňují nejvyšší světové standardy. Významným prvkem pokojů jsou skleněné příčky a posuvné stěny z lehaného skla. Skleněné stěny se zde stávají stavební konstrukcí, velkoformátovým světlem, jsou uměleckým dílem i funkčním prvkem, mobilní výplní otvorů.

Jedním z pilířů vize rekonstrukce bylo ukázat, že i historické stavby lze obnovovat s důrazem na udržitelnost. Budova je nově z velké části dotována chladem i teplem z obnovitelného zdroje, rozsáhlého geotermálního pole využívajícího blízkosti řeky. Dalším z příkladů je zpětné využívání tepla vznikajícího při provozu hotelu – například z užitkové vody wellness centra a gastronomických provozů nebo prádelny. Velký důraz je kladen také na udržitelné hospodaření s vodou – zavlažování zelených ploch bude zajištěno využitím dešťové a tzv. šedé vody. Součástí ekologického přístupu jsou i rozsáhlé zelené střechy a vertikální zahrady, které přispívají k ochlazování budovy a zlepšují mikroklima v okolí.
Autorská zpráva, kráceno, vyšlo s rozhovorem Adriany Krnáčové v časopise Stavba 3/2025
Místo stavby: Pařížská 43, Praha 1 – Staré Město
Autor: Marek Tichý / TaK Architects
Design tým: Klára Tichá, Alžběta Komorná
Investor: WIC Prague
Náklady:
Dodavatelé:
Spolupráce: Richmond International, AED Project
Zastavěná plocha: 7162 m2
Obestavěný prostor celkem: 137 765 m3
Plocha pozemku: 14 800 m2
Hrubá podlažní plocha: 38 189 m2
Plocha revitalizovaných ploch v okolí hotelu: 7642 m2
Projekt: 2019–2026
Realizace: 2020–2025
Foto: BoysPlayNice
























































Z mého pohledu je fajn vidět, jak se i u tak „běžné“ věci, jako jsou překlady, řeší systémovost a přesnost!
Praktické řešení, hlavně z pohledu rychlosti výstavby a přesnosti👍 U těchto systémových prvků dává smysl, že zjednodušují realizaci a pomáhají…
Zajímavý posun ve stavebnictví, je vidět, že se dnes klade velký důraz hlavně na rychlost výstavby a přesnost provedení. Systémové…
Jako problém vidím hlavně "lavičky" v prostoru sdíleném s cyklisty. Neměly by mít třeba tyče s praporky, jako dětské nákupní…
Zdravím, děkuji za informaci o výstavbě v areálu i zmínku o vile, žel chybí aspoň informace, zda vila stojí a…