Rekonstrukce a přístavba činžovního domu od Markéty Zdebské a Marka Žáčka ze studia BY architects na místě s fascinujícím historickým kontextem a morfologií. S klientem vhodný objekt k investici hledali dva roky. V domě ve Šlikově ulici se potkávala skvělá lokalita, solidní stavba s dochovanými historickými prvky a báječnými výhledy.

S návrhem jsme jistým způsobem vstoupili do veřejného prostoru, a proto pro nás byl důležitý kontext. Dům je tedy navržen tak, aby byl pro lokalitu přínosem a aby do místa příjemně zapadl.
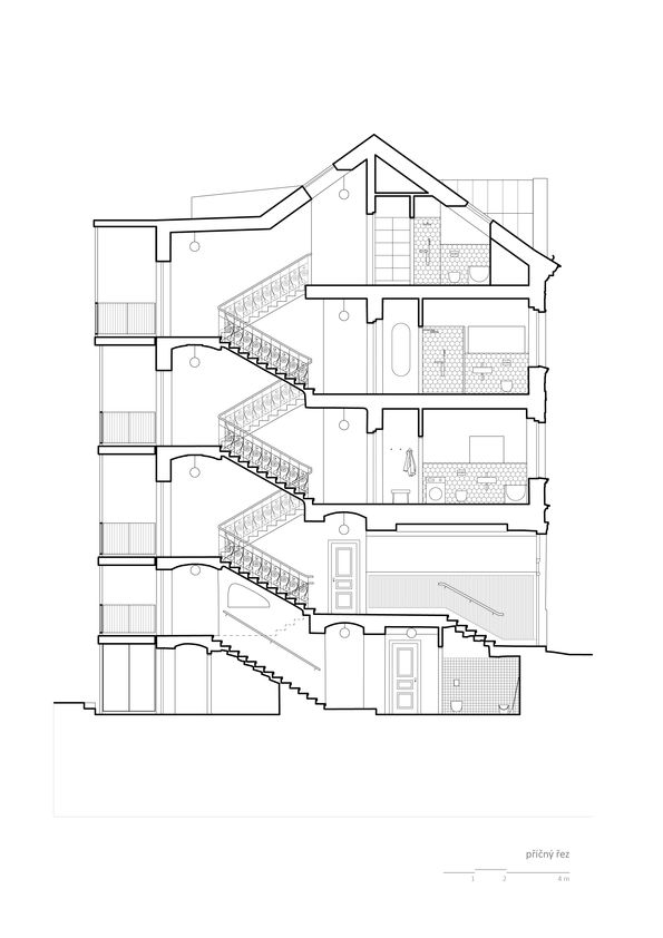
Koncepci jsme založili na dualitě, kdy si do ulice dům zachovává jemně nalíčenou historickou tvář a do dvora dům aktualizuje přístavba výtahu a teras.
Uliční fasádu jsme tedy, až po římsu, obnovili v její původní podobě. Nevhodná plastová okna jsme nahradili dřevěnými výplněmi s trojskly s tradičním členěním. Nové vstupní dveře jsou provedeny v zeleném odstínu, který se domem prolíná na zábradlí schodiště a vhodně se doplňuje s jemně krémovým tónem fasády. Do ulice přibyly také dva historizující vikýře, na které jsou přeneseny prvky štukové dekorace z fasády. Jsou tak nedílnou součástí objektu, což vikýřům i domu dodává důstojnost; velkorysé prosklení pak s výhodou přináší světlo a prostor do interiéru podkroví.

Na dvorní straně došlo k úpravě proporce oken odbouráním parapetů, okna v nejnižším podlaží jsme navíc rozšířili. Získali jsme tak nejen více denního světla, ale také jsme umožnili intenzivní kontakt s klidným vnitroblokem, do kterého se každý byt otevírá prostornou terasou. Podlouhlá okna působí svěže a dodávají domu důležitost i z této, dříve výsostně nereprezentativní, strany.
Zajímavým motivem jsou společné výtahové podesty, které se odehrávají v exteriéru. Poskytují nádech, krásné výhledy a výtah ve své poloze nezastiňuje schodiště domu. Šachta s plnou fasádou je přirozenou součástí stavby a je oproti typizovaným proskleným konstrukcím skutečně téměř neviditelná.
Na rozdíl od mnoha jiných evropských metropolí nebývají v Praze u rekonstrukcí činžovních domů balkóny běžným standardem. Možnost pobývat venku ale pro bydlení považujeme za výsostně důležitou. Obydlené balkóny navíc propůjčují městu další živou vrstvu.

Prostorné pultové vikýře, kterými jsme objekt otevřeli do vnitrobloku, mluví stejným jazykem jako celá dvorní přístavba a dodávají exkluzivitu dvěma podkrovním jednotkám.
Dům jsme rozčlenili na 10 bytů určených k prodeji. Vždy 2 jednotky na patro mají praktické dispozice 2+kk a 3+kk. V řeči realitního trhu je to butikový projekt, což znamená především intimitu. Tu objekt skutečně poskytuje.
Dispozice jsou bez znalosti koncového uživatele univerzálnější, přesto jsme usilovali o chytré a efektivní uspořádání. Soustředili jsme se mj. na průhledy napříč byty, které umožňují kontakt obyvatel, ale také podporují putování světla v průběhu dne.

Pro byty v nejnižším podlaží jsou charakteristické stropní klenby, které prostoru dodávají charisma. Navíc tyto jednotky disponují soukromými terasami a navazující zahrádkou směřující do dvora.
Dům prošel důkladnými konstrukčními úpravami, které sice nejsou na první pohled patrné, ale zajistí kvalitní užívání pro příští dekády: z původních stropů zůstaly pouze trámy, suterén je kompletně izolován včetně zvýšení světlé výšky, nahrazena je většina příček a pochopitelně všechny instalace, rozvody, výplně a povrchy.
Vstupnímu prostoru dominuje světelná luneta v návaznosti na klenbu a keramický reliéfní obklad s vestavěnými poštovními schránkami na stěnách. Společné prostory jsou předlážděny historizující dlažbou, původní povrch se bohužel nedochoval.
Páteř domu, repasované původní zábradlí s rostlinným motivem, oživuje béžový nátěr madla a zelené kovové prvky. Kamenné stupně jsou repasovány a lokálně doplněny. Nový žulový blok je také součástí hlavního vstupu.

V interiéru bytů se prolínají původní prvky, tradiční osvědčené vzory i moderní detaily, vše s cílem vytvořit dobrý základ pro život a příjemnou atmosféru budoucích domovů.Kontrast starého a nového jsme, s respektem k historickým hodnotám, uplatnili i ve výběru standardů bytů. K typickým parketám a kazetovým dveřím, které interiéru dodávají měřítko a eleganci, jsme vybírali komfortní podomítkové baterie a svěží hexagonové obklady v koupelnách. Navržená hierarchie dveří, od skrytých zárubní po prosklená dvojkřídla v rámové konstrukci, poskytuje prostoru přirozenou orientaci, ale také přináší světlo do středu dispozice.
Celá spolupráce proběhla poměrně svižně, během dvou let se podařilo projekt povolit a postavit a věříme, že se podařilo oživit dům, kde se bude příjemně žít. Máme radost, že jsme i v nejisté době mohli spolupracovat s odvážným a poctivým investorem a s péčí se podílet na nadstandardně kvalitním realitním projektu.
Autoři: BY architects / Markéta Zdebská, Marek Žáček
Projekt: 2022–2023
Realizace: 2023–2024
Foto: Alex shoots buildings
Autorská zpráva






























