Ve stráni nad krkonošskou vesnicí Strážné stávala roubenka, kterou postupně překryly přestavby z období hromadné rekreace. Původní dům zmizel pod nánosy necitlivých úprav a nekvalitních materiálů, z historické konstrukce se dochovalo jen minimum. Mimosa architekti vychází z principů tradiční krkonošské architektury a interpretují je současným způsobem.

Namísto rekonstrukce se architekti soustředili na znovuobjevení prostorových principů původní stavby. Krkonošská architektura je typická mohutnými strmými střechami odolávajícími dlouhým zimám, seníkovými vikýři, asymetrickým nasazením střechy na nízkém roubení vytvářejícím zápraží, deštěním ve štítech a kamennými podezdívkami. Tyto principy se staly východiskem návrhu nové chalupy. Architekti neusilovali o historizující rekonstrukci, ale o soudobou stavbu vycházející z tradičního prostorového řádu.

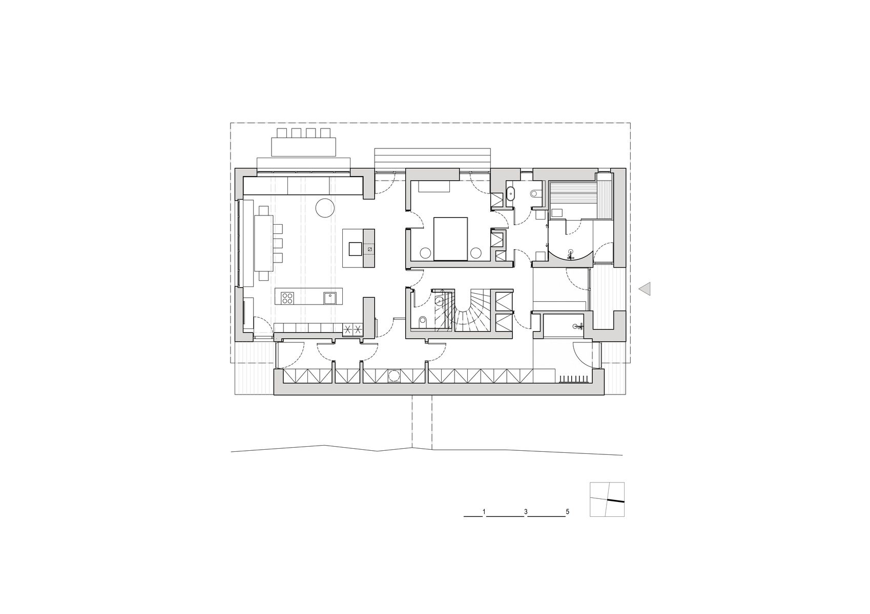
Světnice si zachovala charakter uzavřeného a intimního prostoru. Její proporce určil jeden z mála dochovaných prvků původní chalupy – trámový strop, který předurčil světlou výšku i měřítko interiéru. Otevíravá a bezrámová zasklení zároveň umožnila zachovat rytmus tradiční stavby a otevřít interiér výhledům do krajiny.

Chalupa dnes nabízí komfortní zázemí pro rodinu a její přátele. Srdcem přízemí je světnice s velkým stolem a lavicí pod okny. Do objemu původní chalupy je vložen pokoj pro hosty a schodiště, zatímco někdejší přístavba toalet se proměnila v saunu se zázemím.

Mezi svah a hlavní objem chalupy je vloženo technické a skladové zázemí zahrnující spíž, prádelnu, dílnu, místnost pro lyžařské a cyklistické vybavení i technickou místnost. Součástí je také umývárna pro psa a kolo. Podkroví je otevřeno v duchu tradičních podstřešních prostor a pokoje ve štítech nabízejí výhledy na hřebeny Krkonoš.

Technické řešení reaguje na osamocené umístění chalupy v krajině. Architekti neusilovali o demonstrativní technologickou soběstačnost, ale o jednoduchý a spolehlivý provoz. Objekt je napojen na elektrickou síť, vytápění a přípravu teplé vody zajišťuje tepelné čerpadlo země–voda s geotermálním vrtem. Pitná voda je přiváděna z nedaleké studánky a splaškové vody jsou čištěny ve vlastní čistírně odpadních vod.
Podle autorské zprávy
Lokalita: Strážné
Autoři: Mimosa architekti / Jana Zoubková, Petr Moráček, Pavel Matyska, Eliška Vinklárková
Návrh a projekt: 2022
Realizace: 2025
Zastavěná plocha: 234 m²
Užitná plocha: 306 m²
Foto: Petr Polák
















































Architektura musí souviset s místem, nikoli místo s architekturou. Proto jakékoli stavby umožňující realizaci na různých místech nejsou ARCHITEKTUROU.
Z mého pohledu je fajn vidět, jak se i u tak „běžné“ věci, jako jsou překlady, řeší systémovost a přesnost!
Praktické řešení, hlavně z pohledu rychlosti výstavby a přesnosti👍 U těchto systémových prvků dává smysl, že zjednodušují realizaci a pomáhají…
Zajímavý posun ve stavebnictví, je vidět, že se dnes klade velký důraz hlavně na rychlost výstavby a přesnost provedení. Systémové…
Jako problém vidím hlavně "lavičky" v prostoru sdíleném s cyklisty. Neměly by mít třeba tyče s praporky, jako dětské nákupní…