Novorenesanční budova muzea vznikla na konci 19. století jako reprezentativní solitér na severním okraji parku. Přestože jde o výraznou kulturní památku, za více než sto let existence nikdy neprošla komplexní obnovou. Rekonstrukce podle návrhu studia SGL projekt se tak stala první skutečně generální revitalizací objektu.

Původně zamýšlené úpravy interiérů pro veřejnost se po detailních průzkumech rozšířily v celkovou technickou sanaci budovy. Objekt dlouhodobě trpěl vzlínající vlhkostí, zatékáním střechou i dožívajícími instalacemi. V interiéru se navíc postupně nahromadila řada nekoncepčních zásahů, podhledů a povrchově vedených rozvodů, které narušovaly historický charakter prostor.
„Kontroverze kolem nové muzejně-nemuzejní expozice odvedla téměř úplně pozornost od rekonstrukce historické hlavní budovy Muzea Prahy. Jde přitom o pěkný příklad historismu přelomu století od Antonína Balšánka. Rekonstrukce budovy se pod taktovkou zkušených architektů povedla.“ Zhmotněná reprezentace na ostrůvku zeleně, Eliška Podholová Varyšová, více v časopise STAVBA 1/2026

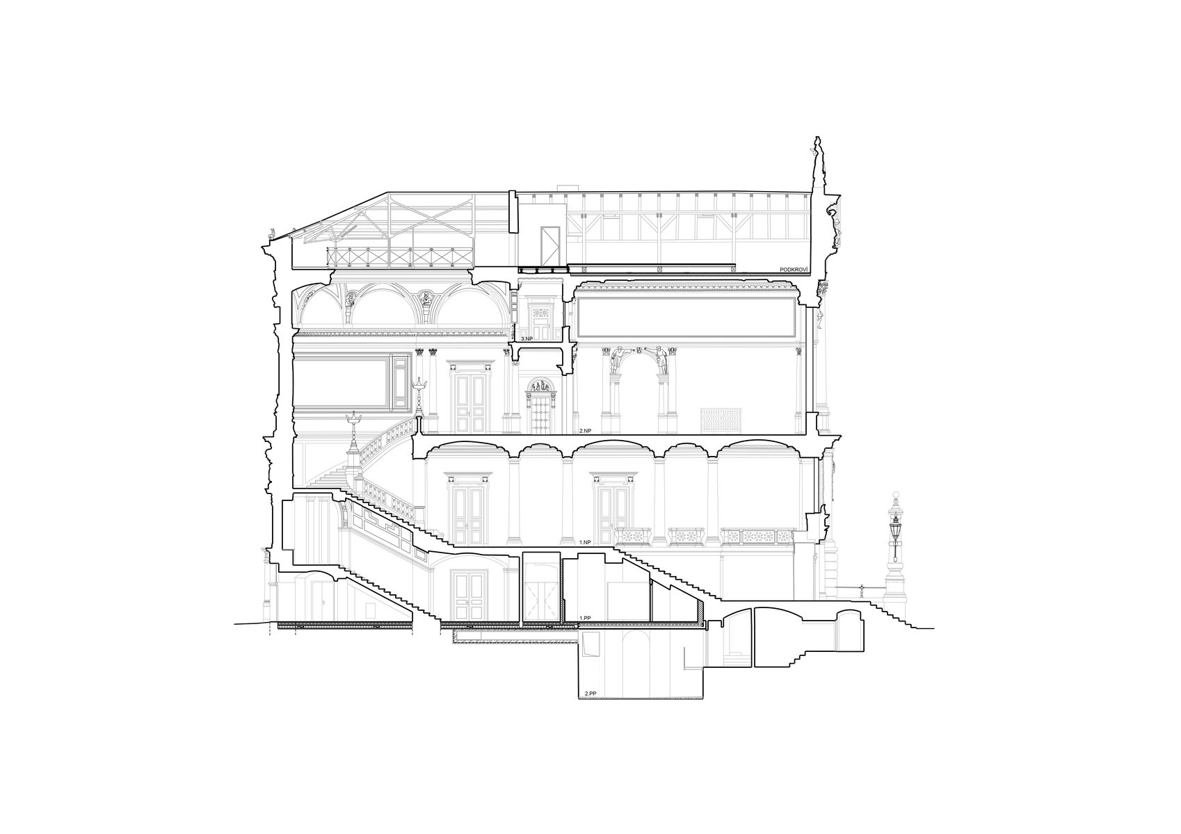
Rekonstrukce zahrnovala kompletní odkopání objektu a novou hydroizolaci proti zemní vlhkosti včetně drenážního systému, koordinovanou s paralelní obnovou přilehlé stanice metra. Podlahy v 1. PP byly odstraněny a nahrazeny novou skladbou s provětrávaným systémem z IGLU tvarovek. V rámci této konstrukce vznikly podlahové kanály pro vedení vzduchotechniky, vytápění, kanalizace, vody i plynu. Původní cementová dlažba byla rozebrána a znovu položena v původním kladecím plánu; část byla nahrazena replikou.

Kompletní výměnou prošel střešní plášť i degradované části krovu, zejména pozednice. Do podkroví byly nově umístěny strojovny vzduchotechniky a chlazení. Dodatečné zatížení si vyžádalo vložení ocelových nosníků nesoucích novou betonovou podlahu na trapézovém plechu. Nasávání a výdech vzduchu byly integrovány do čelních valeb střech prostřednictvím speciálně navrženého žaluziového systému s měděným oplechováním, který zůstává pohledově skryt za atikou.
„Obnova Jiřího Javůrka s maximální možnou empatií respektovala památkovou objektu. Velkolepě působící prostory, zejména schodišťová hala a dekorativní prvky interiéru, prošly precizní restaurátorskou obnovou. Projekt nesměřoval k odstranění cenných historických vrstev, ale k jejich konzervaci a rehabilitaci, aby opět mohly vyniknout.“ Regenerace, která nepřepsala identitu stavby, Petr Volf, více v časopise STAVBA 1/2026

Veškeré nové rozvody byly vedeny v původních trasách nebo komínových průduších bez zásahů do historického zdiva. Hydranty a rozvaděče jsou zapuštěny ve stěnách a kryty dvířky v barvě výmalby. Výstavní sály jsou nově klimatizovány pomocí vzduchotechniky s fancoily; zdrojem tepla je kaskáda plynových kotlů umístěná v 2. PP. Stabilitu vnitřního prostředí doplňují stínící rolety v oknech. Současně proběhla rozsáhlá restaurátorská obnova reprezentativních interiérů na základě stavebně-historického průzkumu. Restaurován byl světlík nad schodišťovým rizalitem, obnoveny parketové podlahy i další hodnotné prvky. Langweilův model byl po dobu rekonstrukce demontován a uložen v depozitáři.

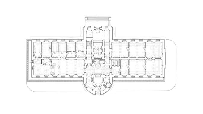
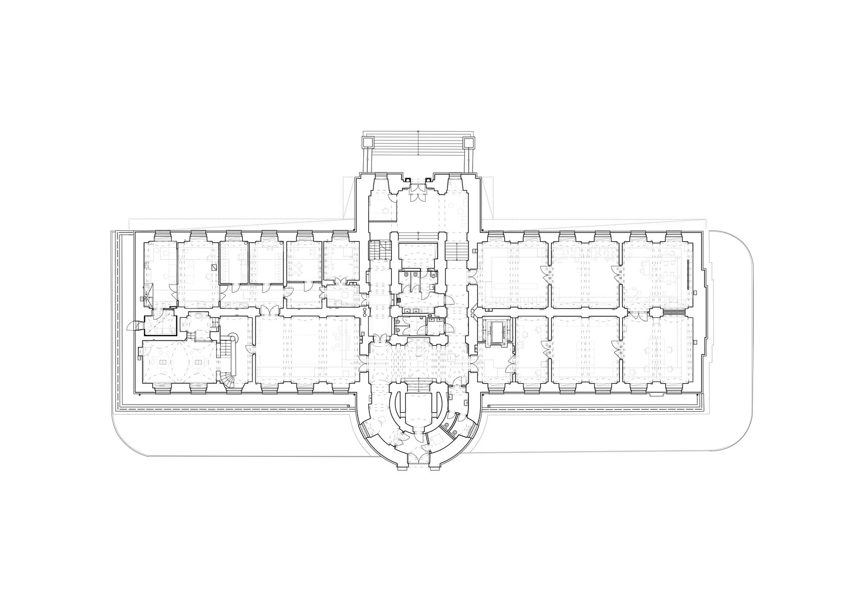
Zásadní proměnou prošlo také provozní uspořádání budovy. Bylo odděleno návštěvnické a zaměstnanecké zázemí, technické provozy byly přesunuty do suterénu a vzniklo nové návštěvnické centrum s kavárnou. Ústřední hala v úrovni zvýšeného přízemí dnes funguje jako foyer s pokladnou a muzejním obchodem. Klíčovým tématem byla bezbariérovost. Nový výtah byl po dohodě s památkovou péčí umístěn do východního křídla tak, aby nenarušil hlavní halu. Jeho šachta je obložena černě eloxovaným hliníkem s gravírovaným motivem pražských fasád, odkazujícím na Langweilův model.

Rekonstrukce Muzea hlavního města Prahy nepřináší výraznou novou architektonickou vrstvu, ale představuje mimořádně komplexní technický zásah do památkově chráněného objektu. Její podstatou je konstrukční stabilizace, technologická modernizace a kultivace provozu při maximálním respektu k historické podstatě budovy.
Podle autorské zprávy
Místo stavby: Na Poříčí 52/1554, Praha 8
Autoři: SGL projekt / Jiří Javůrek, Jakub Žák, Silvie Bednaříková
Spolupráce: Tereza Karásková
Stavebně-technické řešení: Starý a partner / Jiří Starý, David Starý
Investor: Muzeum Prahy
Zastavěná plocha: 1327 m²
Hrubá podlažní plocha: 4150 m²
Užitná plocha: 1955 m²
Plocha pozemku: 2429 m²
Obestavěný prostor: 23 000 m3
Projekt: 2015–2019
Realizace: 2021–2023
Foto: archiv SGL Projekt






































👍