Apartmánový dům Lebenski obnovený podle návrhu studia Atrium Architekti stojí na okraji horského lesního pásma, za kterým se majestátně tyčí Vysoké Tatry. Jeho výlučná pozice příznačně zvaná Pekná vyhliadka z něj dělá dominantu viditelnou už od Popradu.

I proto bylo snahou architektů, aby v prostředí působil klidně a pozornost přitahoval svou formální jednoduchostí a čistotou. Jméno Lebenski odkazuje k původní zotavovně Nový život postavené na počátku 60. let 20. století. Objekt, který od 90. let chátral a ztrácel architektonické i funkční kvality, zakoupila společnost Bukna & Laurinčík a v roce 2023 započala jeho kompletní přeměnu na apartmánový dům, kterou svěřila studiu atrium architekti. Navázali tím na předchozí úspěšný projekt v Dolném Kubíně, nominovaný na cenu CEZAAR.

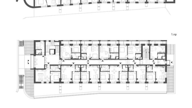
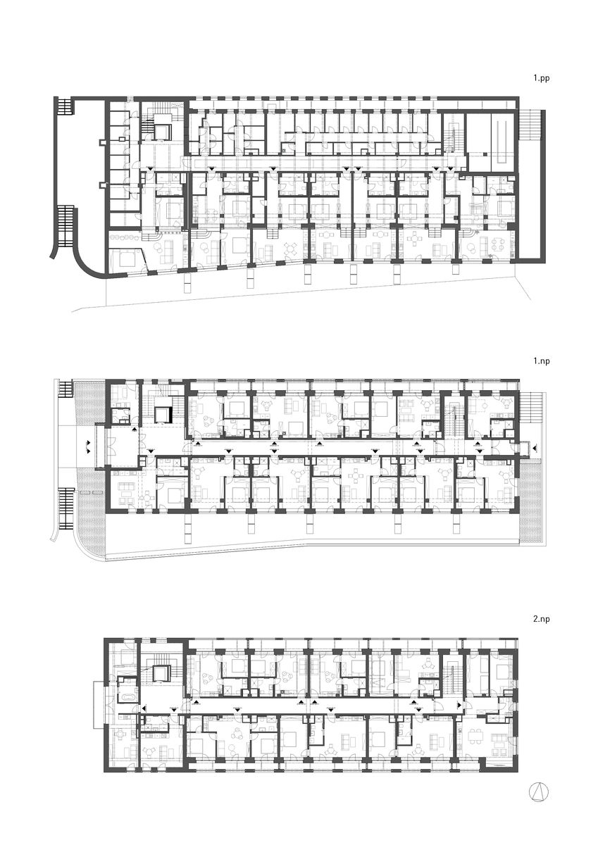
Rámec pro rekonstrukci určily jednak přísné regulace Národního parku TANAP a města Vysoké Tatry, jednak zadání investora na maximální využití všech prostor. Záměrem architektů bylo navrátit stavbě účelnou eleganci inspirovanou architekturou tatranského horského hotelu. Ubytovací kapacitu nového apartmánového domu navýšili zobytněním podkroví a suterénu, přičemž původní výška, zastavěnost i silueta domu zůstala zachována.

Původní železobetonová konstrukce trojpodlažní budovy byla při rekonstrukci odhalena až na nosný skelet a staticky přeřešena zejména v podkroví a suterénu. Největší výzvou projektu bylo zobytnění suterénu, a to i pod nově řešenou terasou. Ta byla původně umístěna přímo na terénu, proto musela být po stranách rozšířena a doplněna o systém nových základů. Apartmány jsou zde řešeny jako dvouúrovňové, aby byla zajištěna optimální světlá výška.

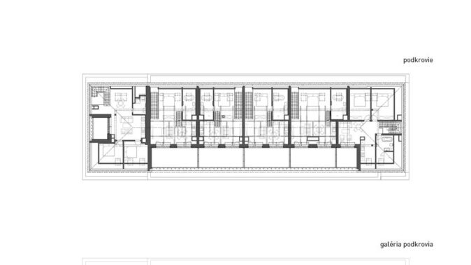
Citlivé proměny architektonického výrazu bylo dosaženo nahrazením původní sedlové střechy nadstavbou se střechou valbovou, která zůstává dominantním prvkem typickým pro tradiční horskou architekturu. Střecha nově pojmula mezonetové apartmány s obytnými galeriemi a zapuštěnými terasami, orientovanými na jih. Po obvodu objektu vznikly balkony a lodžie, zvětšení oken otevřelo ještě více výhledy na okolní krajinu Vysokých Tater.

Podobu objektu respektuje i materiálové řešení. Ve třetím podlaží a v podkroví byl použit titanzinkový plášť, první a druhé podlaží má omítanou fasádu. Investor se i přes značnou finanční náročnost rozhodl pro obnovu soklu z masivních žulových bloků o hloubce přibližně 40 cm, jehož rozebrání a opětovné uložení představovalo mimořádně komplikovanou kamenickou práci.

Byty mají různé velikosti, od menších jednotek až po mezonetové apartmány s galerijními prostory. Architekti v interiéru definovali základní dispoziční řešení, výšky prostor a klíčové prvky, jako je materiálová paleta neutrálních barev, světlé podlahy v kombinaci se dřevem. Samotné zařízení a finální podoba interiérů jednotlivých bytů je ponechána na individuálních preferencích majitelů.

Parkování je nově řešeno zatravňovacími tvárnicemi, ale výhodou je alternativní doprava. Tatranská elektrická železnice je blíže než 100 metrů a poskytuje snadné spojení s dalšími horskými středisky i rychlíkem do Popradu. Přímo pod domem vede také chodník podél Cesty slobody, táhnoucí se od Tatranské Lomnice až po Tatranskou Polianku.
Autorská zpráva, kráceno
Místo stavby: Starý Smokovec, Vysoké Tatry, Slovensko
Autoři: Atrium Architekti / Michal Burák
Spoluautoři: Dušan Burák, Jana Varchola Buráková, Matúš Gomolčák, Anton Lukáč, Martina Schmidt, Marek Dubiel
Projekt: 2022
Realizace: 2024
Zastavěná plocha: 1076 m²
Hrubá podlažní plocha: 4600 m²
Užitná plocha: 3843 m²
Plocha pozemku: 3950 m²
Foto: Matej Hakár








































Výtvarně malebné, ale jak se bude odstraňovat sníh z těch zapuštěných teras?