Intervencí do původního prostředí je vestavba sportovního areálu určeného pro padel tenis od studia Apostrof architekti. Padel je jedním z nejrychleji se rozvíjejících „nových“ sportů na světě. Stáří sportu je prakticky totožné se stářím haly.

Padel tenis je hra pro čtyři hráče, která se hraje na hřišti o rozměrech 10 × 20 m a potřebuje 8 m světlé výšky. Záměrem investora bylo co nejefektivněji využít polovinu haly a vybudovat adekvátního zázemí. Vlastník objektu se na základě prostorových potřeb padel tenisu a výše zmíněnému přístupu rozhodl, že stávající prostor rozdělí novou železobetonovou deskou na dvě části. Přízemí s konstrukční výškou 4 m a patro se světu výškou 8 m. V přízemí se bude skladovat, v patře sportovat. Nová konstrukce stropu je podepřena sloupy o čtvercovém průřezu v základním modulu prefabrikované haly 6 × 6 m. Nášlapný povrch nové konstrukce je kletovaný beton. Patro bylo rozděleno požární stěnou na dvě části. V první bude sportoviště padel tenisu, ve druhé sportoviště horolezců ve formě boulderových stěn.

Způsob nového využití výrobní haly odpovídá všeobecnému vývoji prostředí. Technické prostředí posledních dvou set let lze velmi zjednodušeně rozdělit na část strojové techniky, která byla v 70. letech 20. století transformována do informační techniky stojící na zprostředkování informací pomocí binárního jazyku a polovodiče/tranzistoru. U nás byl tento vývoj zpomalen vládnoucím režim před rokem 1989, který se primárně orientoval na strojovou techniku a těžký průmysl. V rámci současného města je tento průmysl postavený na výrobě, tedy fyzickém produktu, nahrazen průmyslem služeb a vývoje, postaveným na nefyzickému produktu. V rámci našeho projektu došlo k této substituci. V původním místě výroby jsou nově umístěny dvě stěžejní služby pro fungování stávajícího prostředí – volnočasová aktivita ve formě sportu s klubovým zázemím a skladování, tj. rychlá distribuce čehokoli, co si trh žádá.

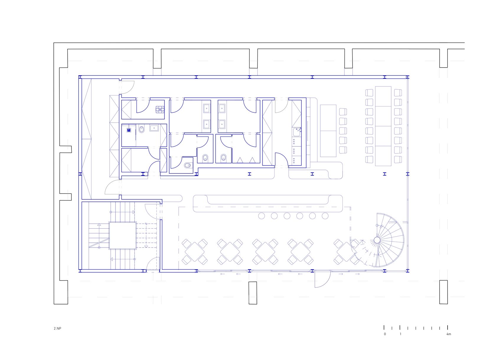
Stavební program byl sestaven na základě referenčních zahraničních projektů převedených do českého právního prostředí a upraven na základě vlastností haly. Hlavní částí návrhu je 8 padelových kurtů, zázemí obsahující klubovou kavárnu s přidruženými provozy (toalety, kuchyň, sklady, technické místnosti, zasedací místnost atp.) a zázemí sportovců (šatny, sprchy, toalety atp.). Z hlediska prostorového uspořádání tvoří kurty a objekt zázemí šachovnici 3 × 3, vsazenou do podélných os stávající haly. Místo jednoho kurtu je věnováno objektu zázemí v půdorysné stopě kurtu. Primárním cílem návrhu bylo zachovat, tj. nezničit existující prostor a konstrukce. Vše nové si od stávajícího udržuje odstup, vrstvení nového typu odpovídající technickému prostředí. Nové může být kdykoli odstraněno/upraveno/doplněno bez vlivu na původní kvality. Nové může být v případě změny smluvních vztahů či oblíbenosti volnočasové aktivity sbaleno jako stanové město a přesunuto do vhodnějšího prostředí.

Konstrukce koncipujeme v duchu existujícího prostředí jako „retromyšlení“. Veškeré zásahy jsou modulární, prefabrikované, v originální materialitě a barevnosti průmyslově zpracovaných materiálů a výrobků. Nosná konstrukce zázemí je tvořena modulárním ocelovým skeletem z HEB/IPE/UPE profilů. Svislé konstrukce jsou tvořeny sloupy z HEB profilů v modulu 6 m v podélném směru a 3 m v příčném směru. Vodorovné konstrukce jsou tvořeny nosníky IPE ve středu konstrukce a UPE v jejích krajích. Povrchem je požární nátěr v základové šedé barvě. Spoje jsou přiznané, tvořené pomocí pozinkovaných prvků. Skelet je vyplněn konstrukcemi se suchou skladbou, plnými a transparentními plochami. Plné výplně tvoří hliníkový rošt zaklopený cementovláknitými deskami bez povrchové úpravy, s přiznaným kotvením pomocí vrutů.

Transparentní plochy jsou tvořeny kalenými skly, vloženými do eloxovaných hliníkových lišt. Dveře jsou pozinkovány a lakovány bezbarvým matným lakem. Stěny jsou buď z překližky nebo cetrisových desek. Podlaha je v přízemí z gletovaného betonu ošetřeného matným lakem, v patře z tmavého. Celé to uzavírá podhled tvořený deskami z heraklithu ukládanými do pravidelného rastru, který zároveň příspívá akustické kvalitě prostoru. Konstrukci baru tvoří jeklový skelet, který jsme z pohledové strany obložili poloprůsvitným a na míru odlitým obložením ze sklolaminátu. Bar je díky tomu možné prosvítit lineárními LED pásky, které zvýrazňují zlatavě vláknitou strukturu materiálu. Odolná masivní pracovní deska je z tmavého litého terazza. Nábytek na míru je ze zalakované překližky v přírodním odstínu. Židle jsou tonky z druhé ruky. Za řetěz zavěšená objemná svítidla jsou původní, byly repasovány a opět použity jako dominantní prvek do převýšeného prostoru. Tato svítidla kontrastně doplňují drobné retro žárovky s porcelánovými objímkami. Kurty jsou tvořeny systémovým ocelovým nosným skeletem v šedé barvě, doplněny o samonosné prosklené plochy a osvětlení. Povrch je tvořen modrou umělou trávou s pískovým vsypem.
Autorská zpráva
Místo stavby: ul Křížová a Dobříšská, Praha 5
Autoři: Apostrof architekti / Martin Štrouf, Petr Portych
Spoluautoři: Jaroslav Schwarz, Albert Machek
Spolupráce: Jana Bartalošová, Tomáš Lebeda, Martin Uher (Optim projekt)
Foto: Martin Štrouf






































Z mého pohledu je fajn vidět, jak se i u tak „běžné“ věci, jako jsou překlady, řeší systémovost a přesnost!
Praktické řešení, hlavně z pohledu rychlosti výstavby a přesnosti👍 U těchto systémových prvků dává smysl, že zjednodušují realizaci a pomáhají…
Zajímavý posun ve stavebnictví, je vidět, že se dnes klade velký důraz hlavně na rychlost výstavby a přesnost provedení. Systémové…
Jako problém vidím hlavně "lavičky" v prostoru sdíleném s cyklisty. Neměly by mít třeba tyče s praporky, jako dětské nákupní…
Zdravím, děkuji za informaci o výstavbě v areálu i zmínku o vile, žel chybí aspoň informace, zda vila stojí a…