Při úvahách o rekonstrukci bylo architektům ze studia Atelier Štěpán vodítkem historické využívání domu. Dům fungoval jako residence kanovníka se zázemím jako kuchyně, stáje a sklady. Nové využití se k těmto funkcím vrací a přetavuje je na soudobý standard a komfort.

Kanovnický dům stojí ve zcela výjimečné lokalitě na pahorku Petrova v nejtěsnějším sousedství brněnské katedrály a bývalého probošství. Je součástí národní kulturní památky Areál kostela sv. Petra a Pavla vč. děkanství, stavebně navazuje na sousední objekty. Dům má fragmenty ze 13. století, po poškození při obležení města v 17. století byl přestavěn, ve druhé polovině 20. století byl proveden nový krov.

Soutěž Interiér roku, kterou pořádá Institut bytového designu, každoročně oceňuje výjimečné soukromé i veřejné interiéry navržené českými a slovenskými architekty. Do 11. ročníku soutěže mohou designéři a architekti přihlašovat své nově realizované interiéry do 28.2.2026, více se dozvíte na interierroku.cz. Časopis STAVBA a stavbaweb.cz je mediálním partnerem soutěže.

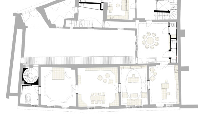
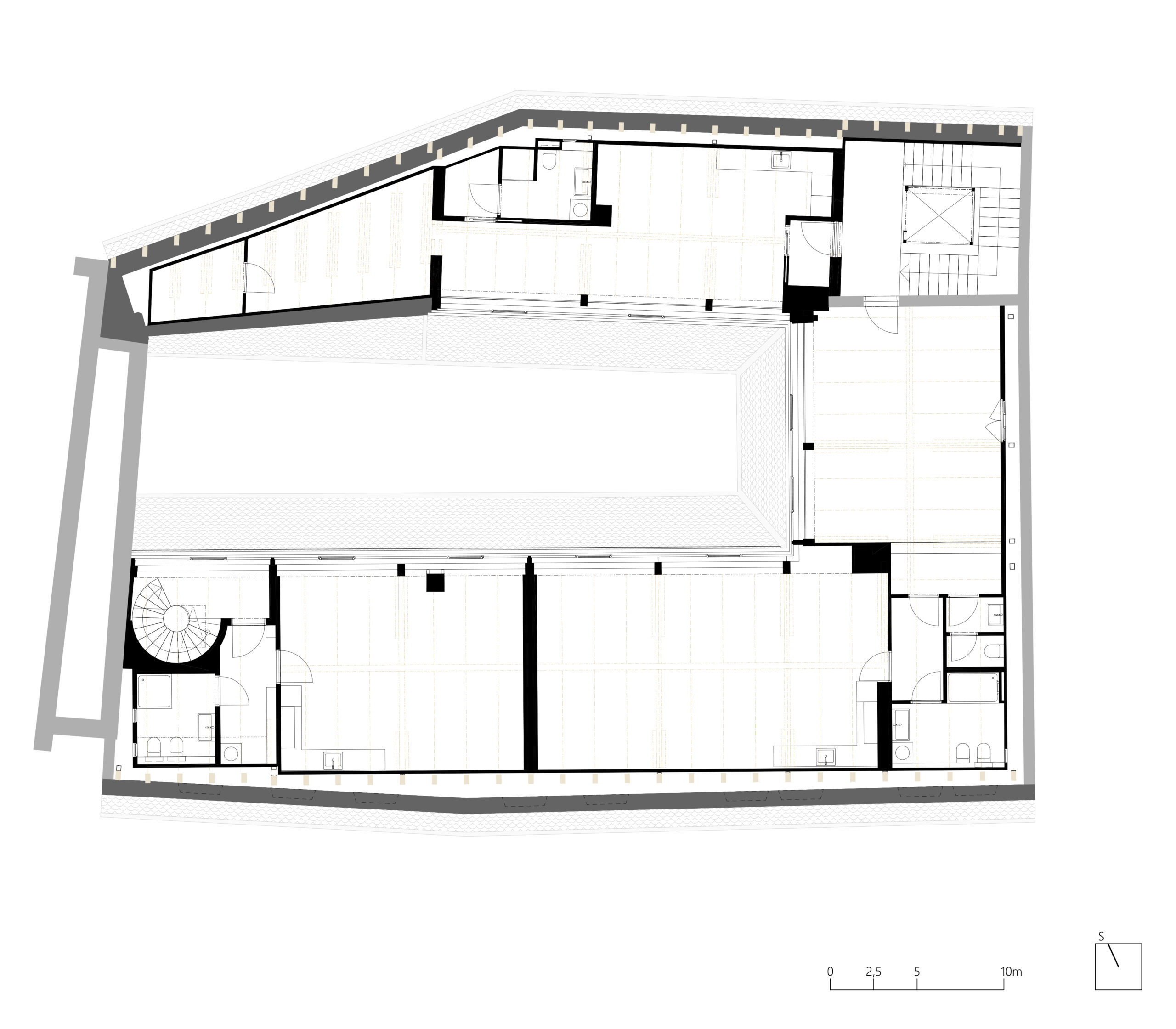
V hlavním obytném patře, které fungovalo jako piano nobile, je opět reprezentativní byt. O patro výš v podkroví je pak přidán ještě jeden obdobné velikosti. Přízemí pak slouží jako provozní zázemí, v jižním křídle je umístěno bydlení a sala terrena. Aby se daly tyto potřebné funkce harmonizovat se strukturou domu, vzniklo několik nezbytně vložených prvků. Tyto jsou koncepčně a materiálově odlišeny od historických konstrukcí. Zároveň lze říci, že přízemí a patro respektuje historický charakter budovy, zatímco podkroví je nově řešená konstrukce, kde jsou uplatněny současné architektonické principy.

Půdorysně̌ tvoři písmeno U s podlouhlým a úzkým vnitřním dvorem. Podlouhlou stopu vtiskly domu hradby, které zde probíhaly a jsou nyní jeho součástí. Záměr celé rekonstrukce a obnovy bylo opětovně do domu umístit residenční funkci, kterou časem ztratil. To se projevilo jako velká výhoda, protože měřítka a proporce jednotlivých místnosti byly ve značné shodě s předpokládaným stavebním programem. Nebyly nutné větší zásahy do dispozice, ale pouze její lokální úpravy.

Velikost stavebního programu ovlivnila expanzi obytné funkce i do podkroví. Analýzou vyplynula i nedostatečnost komunikací, zvláště vertikálních. Samozřejmým zadáním bylo zlepšit stavebně technickou kondici domu a přizpůsobit jej současným standardům. Aby se daly soudobé požadavky harmonizovat se strukturou domu, vzniklo několik nezbytně vložených nových prvků. Jedním z nich je propojovací pavlač – schodiště. Tato pavlač propojuje jednak místnosti v tomto domě, ale i domy sousední (což bylo dříve, jak se při realizaci ukázalo).

Nově je koncipováno dřevěné podkroví s novou statickou koncepcí krovu, kde jsou uplatněny současné architektonické prvky. Hlavním zásahem do původních konstrukcí byla úprava vertikální komunikace ve vstupní části a instalace výtahu. Dále pak rozebrání stávající střechy a nahrazení novu dřevěnou konstrukcí s ocelovými prvky, umožňující využití podkroví. V rámci úprav byly vyřešeny statické problémy stropů nad 2.NP a celkové ztužení objektu.

Použité materiály byly tradiční – keramická, kámen, dřevo, ocel, sklo a trocha betonu. Subtilní tektoniku prosklené pavlače bylo možné přiznat v exteriéru vzhledem k tomu, že prostor pavlače je nevytápěný. Jemnost a pravdivost výsledné konstrukce nechává vyznít zemitosti původního historického domu.
Autorská zpráva
Místo stavby: Kanovnický dům, Petrov 7, Brno
Autoři: Atelier Štěpán / Vanda a Marek Jan Štěpánovi
Spolupráce: Jana Rosová
Investor: Biskupství brněnské
Projekt: 2015–2020
Realizace 2021–2023
Foto: Filip Sibor




































Povedený projekt 👍 Takových realizací by mohlo vznikat víc.
Kaskády Hranice jsou skvělým příkladem toho, že i bytová výstavba může mít kvalitní architekturu, promyšlený urbanismus a příjemný prostor pro…
Architektura musí souviset s místem, nikoli místo s architekturou. Proto jakékoli stavby umožňující realizaci na různých místech nejsou ARCHITEKTUROU.
Z mého pohledu je fajn vidět, jak se i u tak „běžné“ věci, jako jsou překlady, řeší systémovost a přesnost!
Praktické řešení, hlavně z pohledu rychlosti výstavby a přesnosti👍 U těchto systémových prvků dává smysl, že zjednodušují realizaci a pomáhají…