Liebiegův palác byl adaptován studiem ateliér Masák & Partner pro potřeby polyfunkčního komunitního centra – Centra aktivního života. Stavba je památkově chráněným příkladem náročně pojaté průmyslnické vily inspirované pozdně renesančními italskými paláci. Vyšlo v časopise Stavba 1/2023 s recenzí Petra Šmídka.

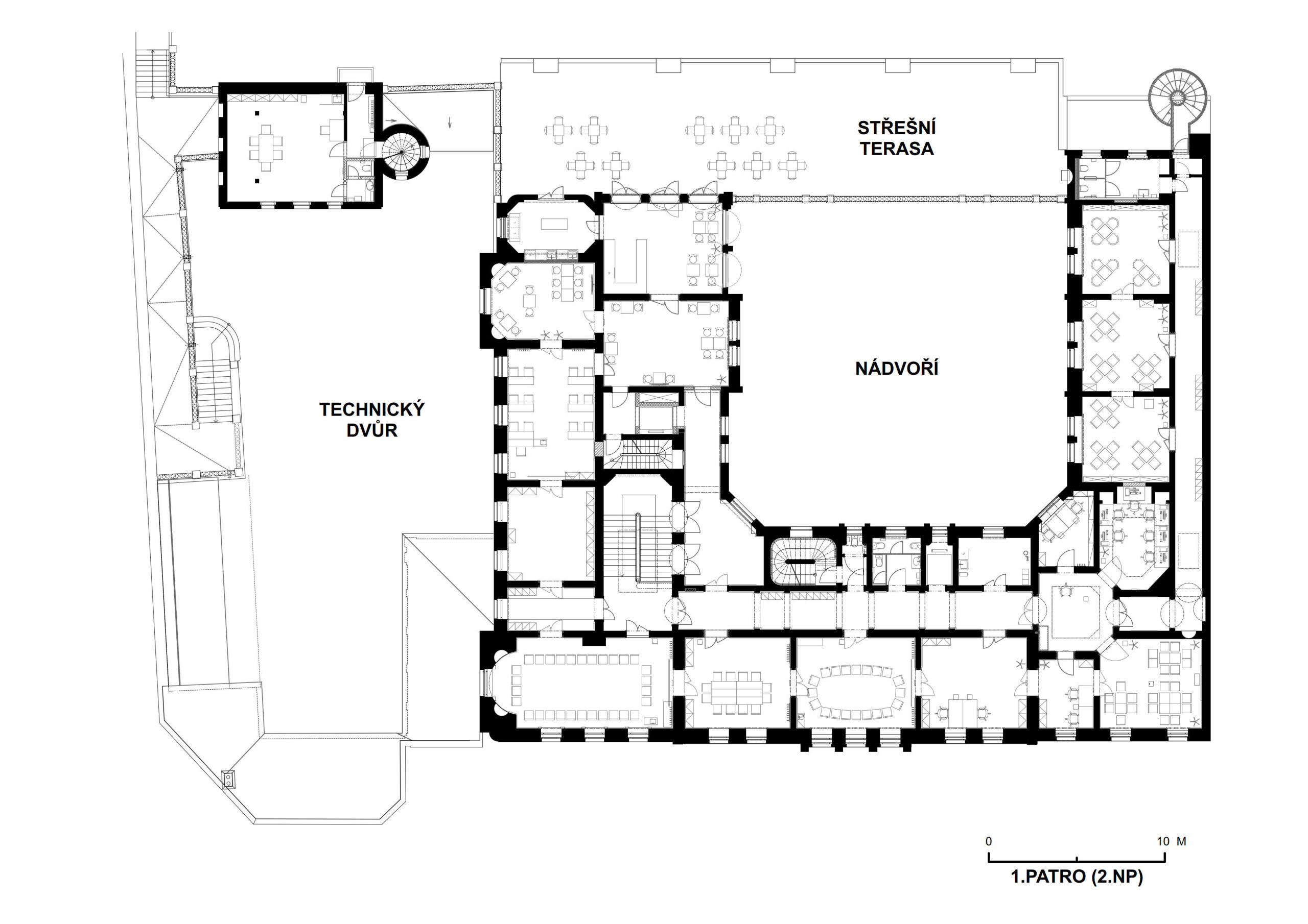
Rodinná vila Johanna Liebiega ml. vznikla v letech 1871–1872 dle návrhu Gustava Sacherse. Areál s nástupním předpolím s parkovou úpravou se skládá z vily na čtyřkřídlém půdorysu, provozního zázemí obslužných budov a uzavřené soukromé zahrady. Od roku 1953 až do roku 2013 byla vila využívána jako Oblastní galerie Liberec.

Vila má tři nadzemní podlaží a je částečně podsklepena. Jihovýchodní křídlo je jednopodlažní a jeho strop tvoří terasu v úrovni vyvýšené zadní zahrady. Interiér s vysokou úrovní uměleckořemeslných detailů je prosvětlen řadou velkoryse dimenzovaných světlíků.

Stavební program se kromě s investorskými a památkovými požadavky musel vypořádat s potřebnými parametry pro získání dotace. To obnášelo centrální bezbariérový vstup s kontrolou pohybu, bezbariérové řešení včetně výtahů a sociální zařízení v dostatečném počtu. Areál po komplexní památkové obnově nabízí veřejnosti multifunkční společenský sál s kapacitou 50 osob, kavárnu se vstupem na terasu, výstavní prostory, spolkové místnosti a klubovny, počítačovou učebnu, výtvarný ateliér, dětský koutek se zázemím, tělocvičny a zpřístupněnou zahradu.
Autorská zpráva
Místo: U Tiskárny 81/1, Liberec V – Kristiánov
Autoři: ateliér Masák & Partner
Zastavěná plocha: 1670 m2
Užitná plocha: 2 940 m2
Plocha pozemku: 7036 m2
Obestavěný prostor: 19 200 m3
Projekt: 2017–2020
Realizace: 2020–2022
Foto: archiv ateliér Masák & Partner
































Kaskády Hranice jsou skvělým příkladem toho, že i bytová výstavba může mít kvalitní architekturu, promyšlený urbanismus a příjemný prostor pro…
Architektura musí souviset s místem, nikoli místo s architekturou. Proto jakékoli stavby umožňující realizaci na různých místech nejsou ARCHITEKTUROU.
Z mého pohledu je fajn vidět, jak se i u tak „běžné“ věci, jako jsou překlady, řeší systémovost a přesnost!
Praktické řešení, hlavně z pohledu rychlosti výstavby a přesnosti👍 U těchto systémových prvků dává smysl, že zjednodušují realizaci a pomáhají…
Zajímavý posun ve stavebnictví, je vidět, že se dnes klade velký důraz hlavně na rychlost výstavby a přesnost provedení. Systémové…