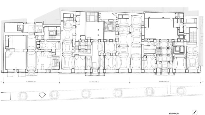
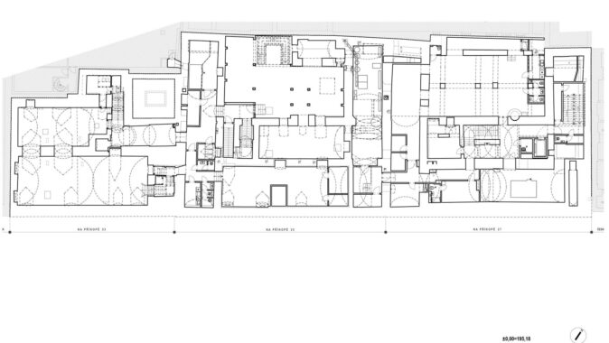
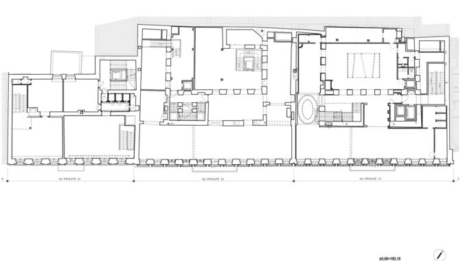
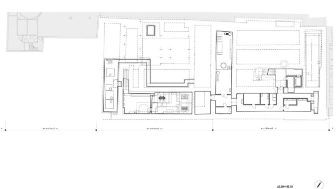
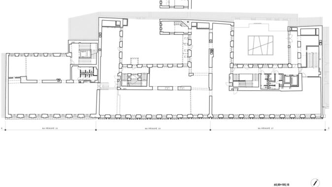
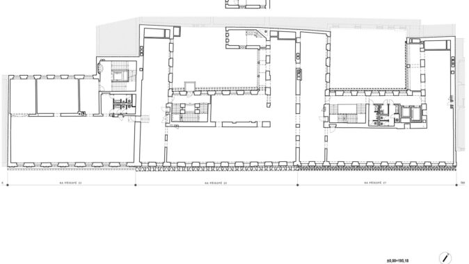
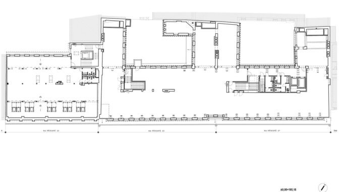
Projekt 100 Yards představuje rekonstrukci trojice historických domů na pražské třídě Na Příkopě, která přináší maloobchodní a kancelářské prostory. Autorem návrhu je studio acht, které pracovalo s komplikovaným zadáním i památkovou ochranou.

Rekonstrukce vychází z potřeby odstranit nánosy utilitárních zásahů a vrátit domům čitelnost při zachování současného technického standardu. Původní stav byl zatížen nevyhovujícími konstrukcemi, roztříštěnými výškovými úrovněmi a zastaralými technologiemi. Zásah proto zahrnoval reorganizaci dispozic, sjednocení podlah a přesun technického zázemí mimo hodnotné prostory.

Důležitým motivem je práce s vnitroblokem. Nová atria přivádějí do domů světlo a vytvářejí klidové zázemí pro kanceláře. Reprezentativní vstup s autorským mobiliářem přitom odkazuje k historii místa, aniž by sklouzával k doslovné rekonstrukci. Historická vrstva je spíše odhalována než rekonstruována. Dochovala se část vestibulu se schodištěm z 20. let 20. století od Matěje Blechy a Josefa Zasche, která byla v projektu znovu interpretována. V suterénech byly odkryty i fragmenty středověké hradby připomínající původní hranici Starého Města.

Technologické řešení odpovídá současnému standardu, ale zůstává disciplinované. Vytápění a chlazení kombinují tepelná čerpadla s doplňkovým plynovým zdrojem a využívají i odpadní teplo. Větrání s rekuperací, řízení podle koncentrace CO₂ a úsporné osvětlení přispívají k efektivnímu provozu. Environmentální strategie stojí především na adaptaci existující struktury. Zachování konstrukcí, opětovné využití materiálů a hospodaření s dešťovou i studniční vodou představují pragmatický přístup k udržitelnosti. Limity památkové ochrany jsou zde kompenzovány optimalizací provozu a využíváním energie z obnovitelných zdrojů na úrovni dodavatele.
Podle autorské zprávy
Lokalita: ul. Na Příkopě, Praha 1 – Nové Město
Autoři: studio acht
Projekt: 2022–2024
Realizace: 2022–2024
Foto: Tomáš Slavík




































Akustika je často podceňovaný, ale zásadní aspekt kvality bydlení... Článek dobře ukazuje, že nejde jen o samotný materiál, ale hlavně…
Oceňuji hlavně důraz na kvalitu provedení, nestačí jen dobrý materiál, ale i správná realizace. V praxi právě detaily často rozhodují…
Skvělý článek o akustické kvalitě staveb, která je často opomíjená, ale velmi důležitá. Systémy Heluz nabízejí dobrá řešení pro zvukovou…
Zajímavé téma, díky za sdílení. Tyhle novinky z praxe mají vždycky největší přínos 👍
Zajímavý webinář zaměřený na novinky od společnosti Heluz. Oceňuji hlavně představení cihel Heluz AKU a jejich výsledků v oblasti zvukové…