Projekt 100 Yards představuje rekonstrukci trojice historických domů na pražské třídě Na Příkopě, která přináší maloobchodní a kancelářské prostory. Autorem návrhu je studio acht, které pracovalo s komplikovaným zadáním i památkovou ochranou.

Rekonstrukce vychází z potřeby odstranit nánosy utilitárních zásahů a vrátit domům čitelnost při zachování současného technického standardu. Původní stav byl zatížen nevyhovujícími konstrukcemi, roztříštěnými výškovými úrovněmi a zastaralými technologiemi. Zásah proto zahrnoval reorganizaci dispozic, sjednocení podlah a přesun technického zázemí mimo hodnotné prostory.

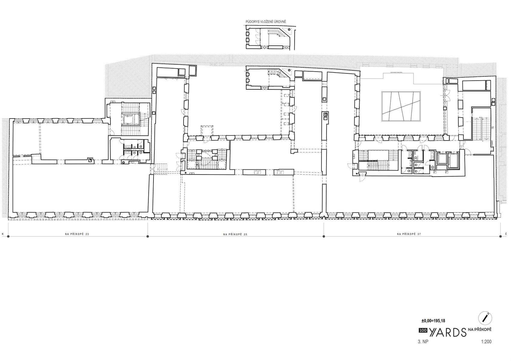
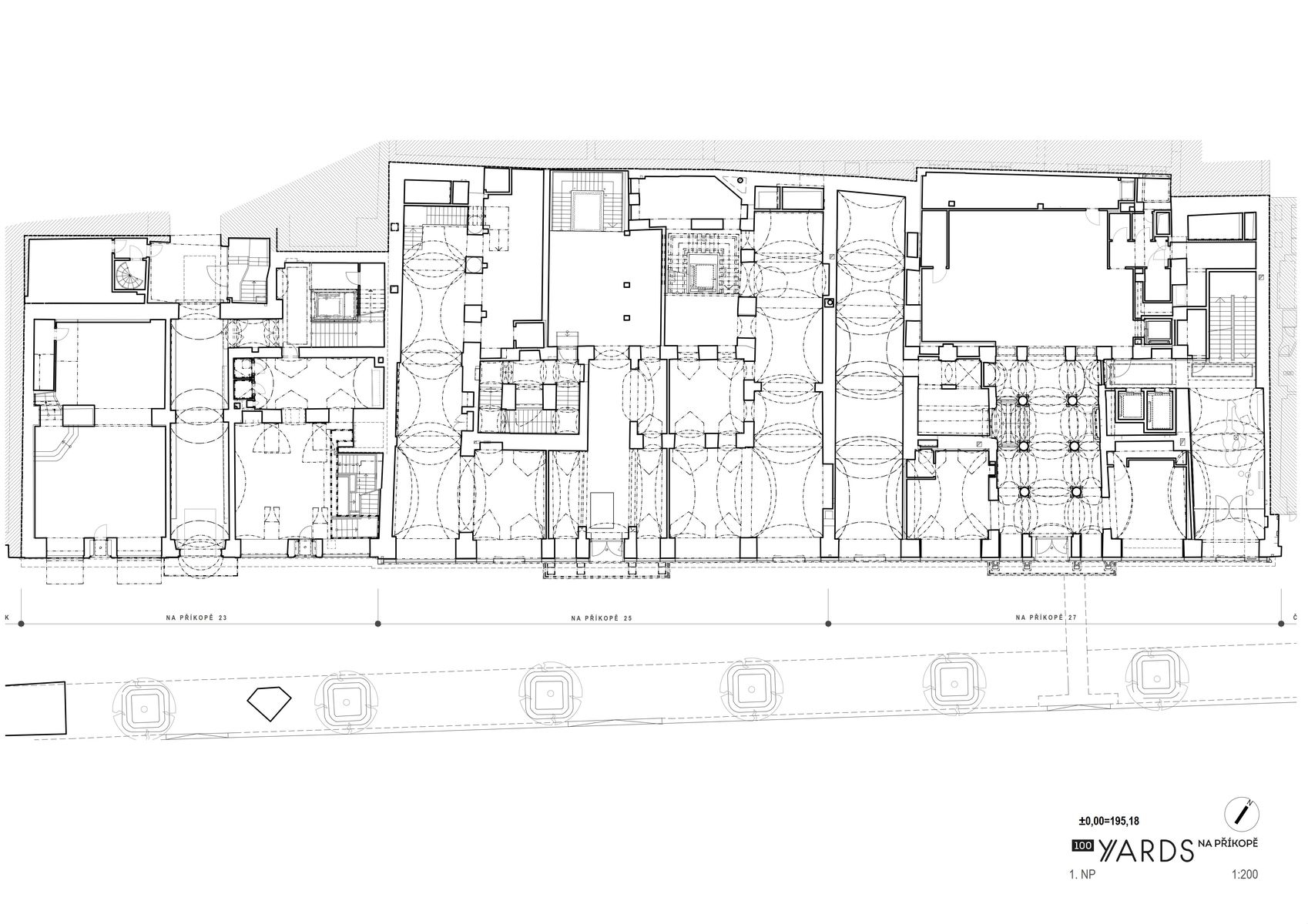
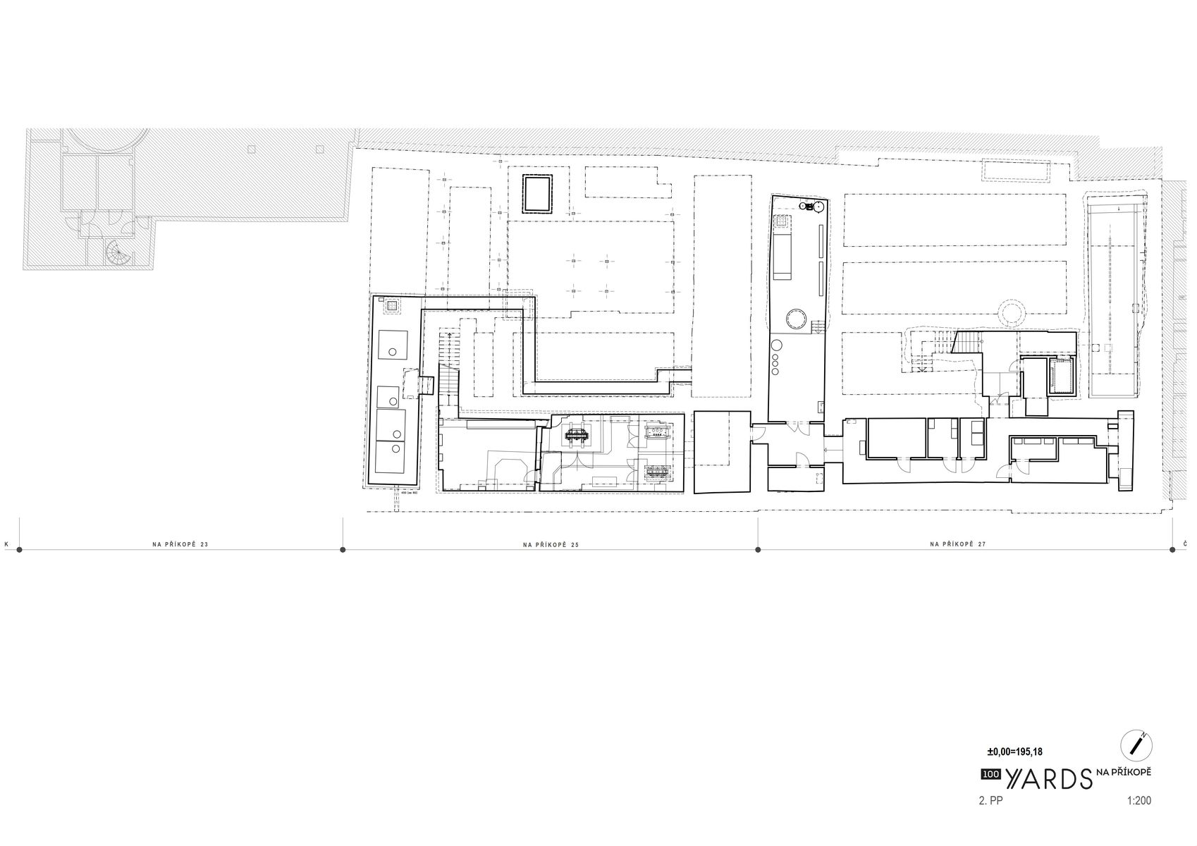
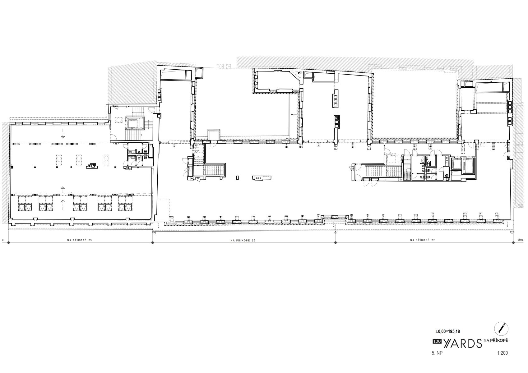
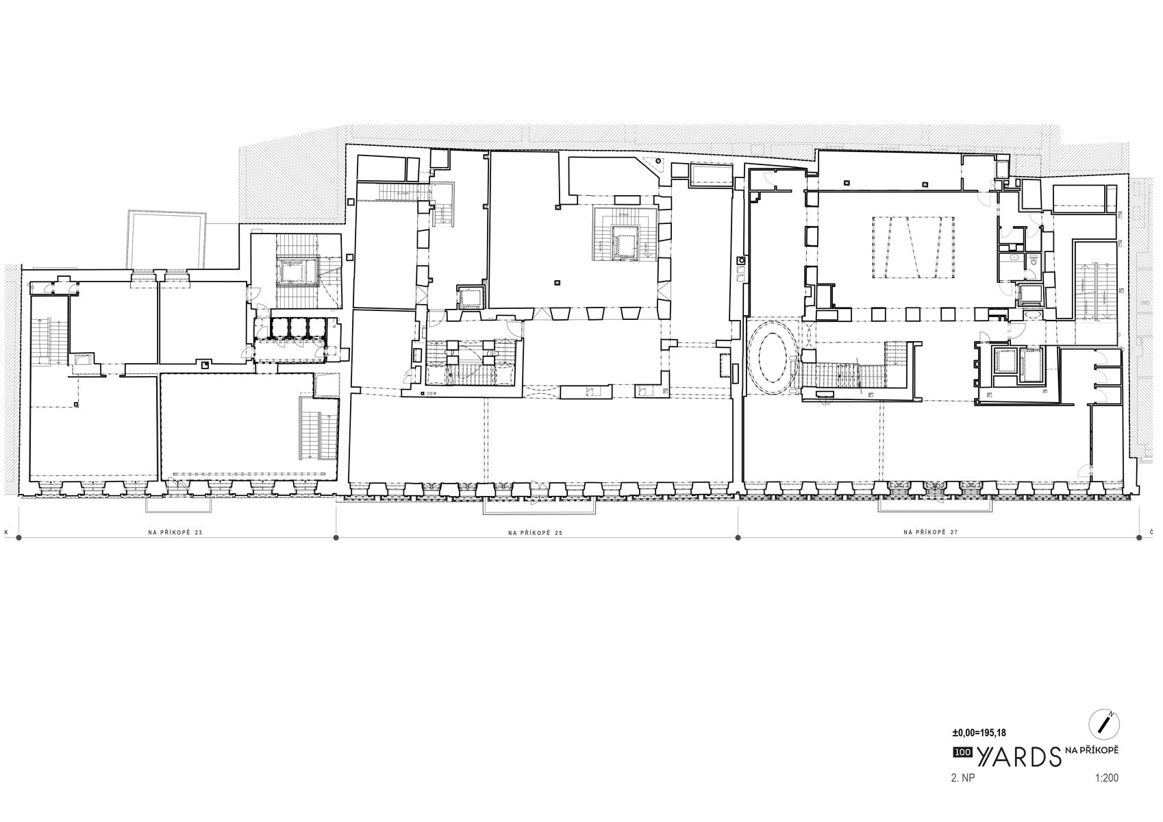
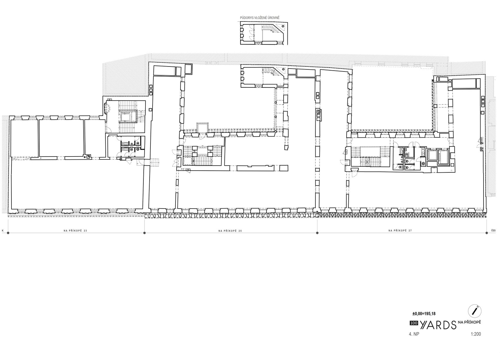
Důležitým motivem je práce s vnitroblokem. Nová atria přivádějí do domů světlo a vytvářejí klidové zázemí pro kanceláře. Reprezentativní vstup s autorským mobiliářem přitom odkazuje k historii místa, aniž by sklouzával k doslovné rekonstrukci. Historická vrstva je spíše odhalována než rekonstruována. Dochovala se část vestibulu se schodištěm z 20. let 20. století od Matěje Blechy a Josefa Zasche, která byla v projektu znovu interpretována. V suterénech byly odkryty i fragmenty středověké hradby připomínající původní hranici Starého Města.

Technologické řešení odpovídá současnému standardu, ale zůstává disciplinované. Vytápění a chlazení kombinují tepelná čerpadla s doplňkovým plynovým zdrojem a využívají i odpadní teplo. Větrání s rekuperací, řízení podle koncentrace CO₂ a úsporné osvětlení přispívají k efektivnímu provozu. Environmentální strategie stojí především na adaptaci existující struktury. Zachování konstrukcí, opětovné využití materiálů a hospodaření s dešťovou i studniční vodou představují pragmatický přístup k udržitelnosti. Limity památkové ochrany jsou zde kompenzovány optimalizací provozu a využíváním energie z obnovitelných zdrojů na úrovni dodavatele.
Podle autorské zprávy
Lokalita: ul. Na Příkopě, Praha 1 – Nové Město
Autoři: studio acht
Projekt: 2022–2024
Realizace: 2022–2024
Foto: Tomáš Slavík




































Z mého pohledu je fajn vidět, jak se i u tak „běžné“ věci, jako jsou překlady, řeší systémovost a přesnost!
Praktické řešení, hlavně z pohledu rychlosti výstavby a přesnosti👍 U těchto systémových prvků dává smysl, že zjednodušují realizaci a pomáhají…
Zajímavý posun ve stavebnictví, je vidět, že se dnes klade velký důraz hlavně na rychlost výstavby a přesnost provedení. Systémové…
Jako problém vidím hlavně "lavičky" v prostoru sdíleném s cyklisty. Neměly by mít třeba tyče s praporky, jako dětské nákupní…
Zdravím, děkuji za informaci o výstavbě v areálu i zmínku o vile, žel chybí aspoň informace, zda vila stojí a…