Dům z počátku 20. století v památkové zóně v Roudnici nad Labem prošel rekonstrukcí a byl rozšířen do zahrady. Návrh architektky Štěpánky Hájkové respektuje charakter původní vily, nová přístavba je v soudobém kontrastu. Prosklená hmota s fasádou z šedého falcovaného plechu a střechou s extenzivní zelení rozšiřuje obytný prostor.

Impulsem přestavby byla nevyhovující dispozice vstupní části domu. Původní stísněný vstup nahradila prostorná hala, která propojuje historickou část domu s novou přístavbou a může fungovat také jako samostatná část pro hosty. Architekti respektovali hmotu, proporce i materiálové řešení prvorepublikové vily. Zachována zůstala béžová fasáda, světlá okna i vikýř na severní straně. Ostatní vikýře byly sjednoceny oplechováním shodným s přístavbou. Výška domu se změnila pouze minimálně v souvislosti s použitím nadkrokevního zateplení.

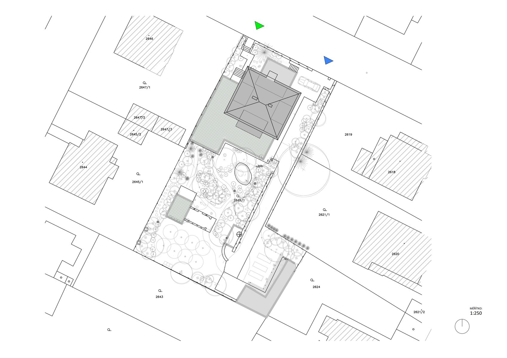
V prvním nadzemním podlaží se nachází hlavní obytný prostor s kuchyní a jídelnou, pokoj pro hosty, pracovna, šatna a koupelna. Tato část je přímo propojena se zahradou. V podkroví je klidová zóna s ložnicí, pracovnou, šatnou a koupelnou. Suterén slouží technickému zázemí domu, prádelně a skladům, zatímco na místě původního vstupu vznikla garáž. Dům se nachází v městské památkové zóně, projekt proto musel splnit řadu požadavků památkové péče. Zachovány musely být architektonické prvky fasád i charakter střešní krytiny.

Nová přístavba je založena na železobetonové desce na základových pasech. Nosné zdivo tvoří vápenopískové tvárnice doplněné ocelovými sloupky a monolitické železobetonové stropy. Součástí domu je také akusticky upravená poslechová místnost. Technické zařízení domu zahrnuje tepelné čerpadlo vzduch–voda s rekuperací a systém hospodaření s dešťovou vodou, která je akumulována v nádržích a využívána pro zavlažování zahrady.
Podle podkladů časopisu Materiály pro stavbu
Lokalita: Roudnice nad Labem
Autoři: Štěpánka Hájková, Petr Lédl
Generální projektant: Petr Lédl
Konstrukce: Jan Tvardík
Návrh zahrady: Karolína Štědrá
Dodavatel: SP stavební
Zastavěná plocha: 339 m²
Obestavěný prostor: 1100 m³
Plocha pozemku: 1265 m²
Foto: Gabriela Čapková


























Akustika je často podceňovaný, ale zásadní aspekt kvality bydlení... Článek dobře ukazuje, že nejde jen o samotný materiál, ale hlavně…
Oceňuji hlavně důraz na kvalitu provedení, nestačí jen dobrý materiál, ale i správná realizace. V praxi právě detaily často rozhodují…
Skvělý článek o akustické kvalitě staveb, která je často opomíjená, ale velmi důležitá. Systémy Heluz nabízejí dobrá řešení pro zvukovou…
Zajímavé téma, díky za sdílení. Tyhle novinky z praxe mají vždycky největší přínos 👍
Zajímavý webinář zaměřený na novinky od společnosti Heluz. Oceňuji hlavně představení cihel Heluz AKU a jejich výsledků v oblasti zvukové…