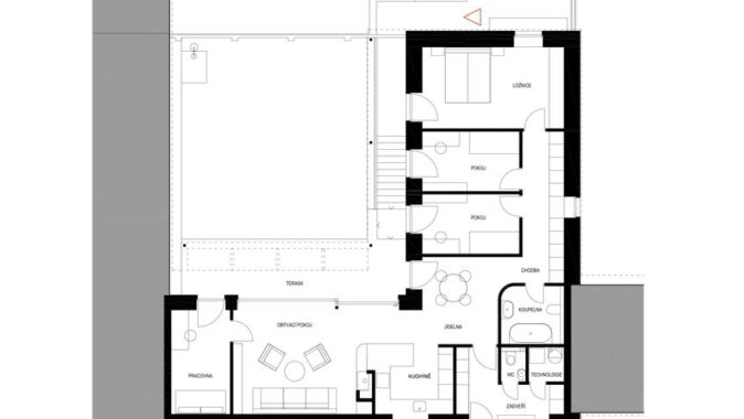
Hlavním cílem rekonstrukce podle návrhu studia Modulora bylo dům i jeho vnitřní prostor co nejvíce otevřít směrem do atria o ploše 8 × 10 metrů a přivést do interiéru přirozené světlo, jehož měnící se intenzita bude umocňovat život v domě.

V 70. letech 20. století, v době socialistického budování, vznikl v Plzni soubor rodinných domů s vnitřními otevřenými atrii, který měl na tu dobu skvělou architektonicko-urbanistickou kvalitu inspirovanou v daleké Skandinávii. Mladí investoři, lékaři, zakoupili jeden z těchto domů a rozhodli se pro jeho kompletní rekonstrukci. Svou zálibu v moderní architektuře chtěli přenést do svého nového domova.

V rámci dispozičních úprav, zahrnujících hlavně propojení obytného prostoru s jídelnou a kuchyní, zvětšení koupelny, vytvoření dvou samostatných dětských pokojů a pracovny, vzniklo komfortní bydlení pro čtyřčlennou rodinu. Okenní otvory orientované do atria byly zbaveny parapetů, v hlavním obytném prostoru vznikl vybouráním pilíře velký okenní otvor šířky 6 m s posuvným křídlem pro maximální propojení interiéru s exteriérem.

Na obytný prostor navazuje venkovní pobytová terasa, nad kterou levituje ocelová pergola s textilním baldachýnem pro zastínění ve slunných letních dnech. Ta je již součástí atria, další „obytné místnosti“ v domě. Exteriér i interiér sjednocuje neutrální bílá barva. Doplňuje ji bezespárá polyuretanová stěrka ve světle béžovém odstínu propojující všechny obytné místnosti v domě, přírodní kámen travertin použitý jako obklad u krbu, v koupelně, na WC a dubová dýha na nábytku vyrobeném na míru. Interiér doplňují křesla od Halabaly a židle Thonet z ohýbaného dřeva v černém provedení.
Autorská zpráva




































Architektura musí souviset s místem, nikoli místo s architekturou. Proto jakékoli stavby umožňující realizaci na různých místech nejsou ARCHITEKTUROU.
Z mého pohledu je fajn vidět, jak se i u tak „běžné“ věci, jako jsou překlady, řeší systémovost a přesnost!
Praktické řešení, hlavně z pohledu rychlosti výstavby a přesnosti👍 U těchto systémových prvků dává smysl, že zjednodušují realizaci a pomáhají…
Zajímavý posun ve stavebnictví, je vidět, že se dnes klade velký důraz hlavně na rychlost výstavby a přesnost provedení. Systémové…
Jako problém vidím hlavně "lavičky" v prostoru sdíleném s cyklisty. Neměly by mít třeba tyče s praporky, jako dětské nákupní…