Rodinný dům od studia atelierSAD a Ivety Zachariášové se nachází na jižním svahu Ještědského hřbetu s nádherným výhledem do krajiny. Výhled a propojení s krajinou byl jedním z určujících motivů návrhu.

Vyšlo v časopise Stavba 3/2022 s recenzí Petra Volfa.
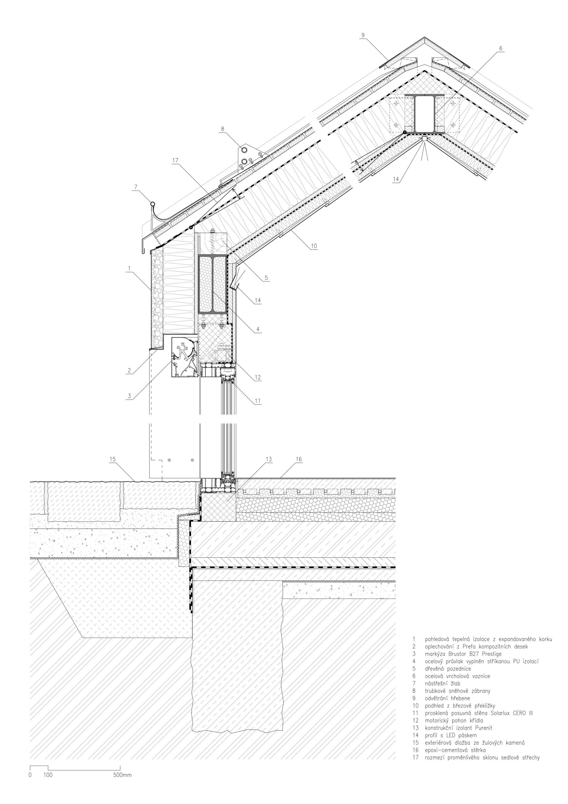
Půdorysně je dům obdélníkového tvaru, orientován po vrstevnici. Úroveň přízemí i hlavní plocha zahrady jsou cca 4,5 m pod úrovní komunikace. Nad většinou objektu je sedlová střecha s proměnným sklonem, od 43° po 30° na východním štítu. Štíhlá hmota domu se zešikma zařezává do strmého svahu a hřeben se pomyslně sklání po svahu dolů do zahrady.

Hlavní vstup je na západní straně. Přístup je po terénním schodišti podél porostlé kamenné zdi. Jinak kompaktní hmota domu je na východním štítu otevřená a její celoprosklená stěna je zešikma ustoupena za obrysovou hranu. Maximalizuje se tak plocha výhledu a vzniká zastřešená terasa. Ta přiléhá k jižní straně, kde je do hmoty domu prolomen další otvor na celou výšku podlaží. Prosklení se potkává ve dvou třetinách tohoto otvoru s prosklením východního štítu. Roh tvoří posuvné portály, které je možné roztáhnout a přes terasu zcela spojit hlavní obytný prostor se zahradou.

Reliéfní fasádu tvoří desky z expandovaného korku proměnlivé tloušťky, které se střídají ve vertikálních pásech. Sedlová střecha je z falcovaného hliníkového plechu antracitové barvy. Stropy a obvodové stěny byly odlity z pohledového železobetonu, vnitřní příčky jsou cihlové omítané. Podhled střechy je obložen bělenou březovou překližkou. Zpevněné plochy kolem domu jsou vyskládány do ztracena ze žulových desek pocházejících z okolních měst, kde v minulosti sloužily jako chodníky.
Autorská zpráva

Místo stavby Na Rašovce, Rašovka, Šimonovice, Liberecký kraj
Autoři Adam Jirkal, Tomáš Kubák / atelierSAD a Iveta Zachariášová
Spolupráce Partero (zahradní architekti)
Zastavěná plocha 158 m2
Plocha pozemku 1685 m2
Obestavěný prostor 640 m3
Projekt 2016–19
Realizace 2020–21
Foto BoysPlayNice

RECENZE Daleké výhledy
Petr Volf
Adam Jirkal a Jerry Koza jsou všestranní architekti, kteří rádi experimentují, upozornili na sebe kupříkladu hojně publikovanou benzinovou pumpou ve slovenském Matúškovu (objevně použili organickou houbovitou formu a druhdy bezduchému utilitárnímu objektu dodali nečekané charisma) nebo hausbótem schopným plnohodnotné existence na vodě i na souši. Stejně tak se věnují relativně tradiční architektonické agendě, tedy novostavbám, rekonstrukcím, interiérům. Domem místopisně spadajícím pod osadu Rašovka, v horském prostředí Ještědského hřebenu, se jim podařilo svrchovaně využít možnosti nabízené neobyčejnou lokalitou. Jejich pojetí se nedá nic vytknout, dokonale soucítí s místem, uplatnili empatii a zvolenou formu dokázali podpořit propracovanými detaily.

Stavbu přesně napojili těsně pod hlavní silnici, takže je z ní patrná pouze část sedlové střechy kombinované s menší plochou vydlážděnou kameny, která se používá k parkování. Nástup do domu je určující pro další děj. Splývá s terénem, nijak neruší, působí, jako by tady byl odnepaměti, což je zvláště v takto cenném prostředí vysoká hodnota. Tento dojem nenarušuje ani korkový obklad fasády, který na sebe hladce vztahuje mimikry okolního prostředí: osobně oceňuji, že architekti odolali pokušení (měli-li je vůbec) a neuplatili nyní velmi módní opalovaná prkna. Koncepce domu je podřízena jeho určení. Ze dvou stran se plně otevírá prosklenými plochami, které se dají důmyslně posunovat, aby si obyvatelé mohli užít neomezený výhled do rozlehlé krajiny. Jsme svědky souhry určené prostředím, orientací, návrhem, a z něho vycházející klasickou, přesto však veskrze soudobou siluetou. Ačkoliv je dům propracovaný, dotažený do maximální možné podoby, tak to, jak je prosklenými stěnami přitahován do dotyku s okolními pastvinami, mu dodává zvláštní syrovost. Je to neviditelná rozhledna, v níž se dá pohodlně bydlet.









































Kaskády Hranice jsou skvělým příkladem toho, že i bytová výstavba může mít kvalitní architekturu, promyšlený urbanismus a příjemný prostor pro…
Architektura musí souviset s místem, nikoli místo s architekturou. Proto jakékoli stavby umožňující realizaci na různých místech nejsou ARCHITEKTUROU.
Z mého pohledu je fajn vidět, jak se i u tak „běžné“ věci, jako jsou překlady, řeší systémovost a přesnost!
Praktické řešení, hlavně z pohledu rychlosti výstavby a přesnosti👍 U těchto systémových prvků dává smysl, že zjednodušují realizaci a pomáhají…
Zajímavý posun ve stavebnictví, je vidět, že se dnes klade velký důraz hlavně na rychlost výstavby a přesnost provedení. Systémové…