Původní dům z 50. let 20. století byl na přelomu milénia zrekonstruován pro potřeby pětičlenné rodiny. Současná rekonstrukce podle studia Mimosa architekti jej transformuje na komfortní bydlení manželského páru s prostory pro setkávání.

Kromě dispozic a kompletní proměny interiéru byly upraveny i povrchy, barvy a materiály exteriéru. Navenek nedává dům zásadní rekonstrukci vnitřních prostor příliš znát. Barevně tlumená fasáda, kombinující omítku jemnozrnnou a hrubou se vstřikovaným kamenným zrnem, zklidnila celkový výraz domu. Soudobé řešení oken nahradilo původní historizující členění a výrazně prosvětlilo interiér. Okna různých konstrukčních a materiálových řešení – dubová, s překrytím vnějším sklem, bezrámová nebo s bělenými smrkovými rámy – přímo reagují na charakter jednotlivých místností. Rozsah původních a současných oken dává tušit jejich materiál. Nejvýrazněji se do exteriéru propsaly dispoziční úpravy patra, kde velkorysý vikýř s bezrámovým zasklením směrem do zahrady nahradil původní dva malé.

Domy mají dlouhý život. Většinou si je začnou plánovat dva. Než se postaví, jsou ze dvou tři i víc. Pak dům žije podle plánu, aby na něj zanedlouho zase „zbyli“ jen dva. Není to špatně, spíše naopak. Ale až sem plány sahají málokdy. Dům na pražském Břevnově došel až sem. Co dále? Žít nostalgií? Nebo prostě žít?

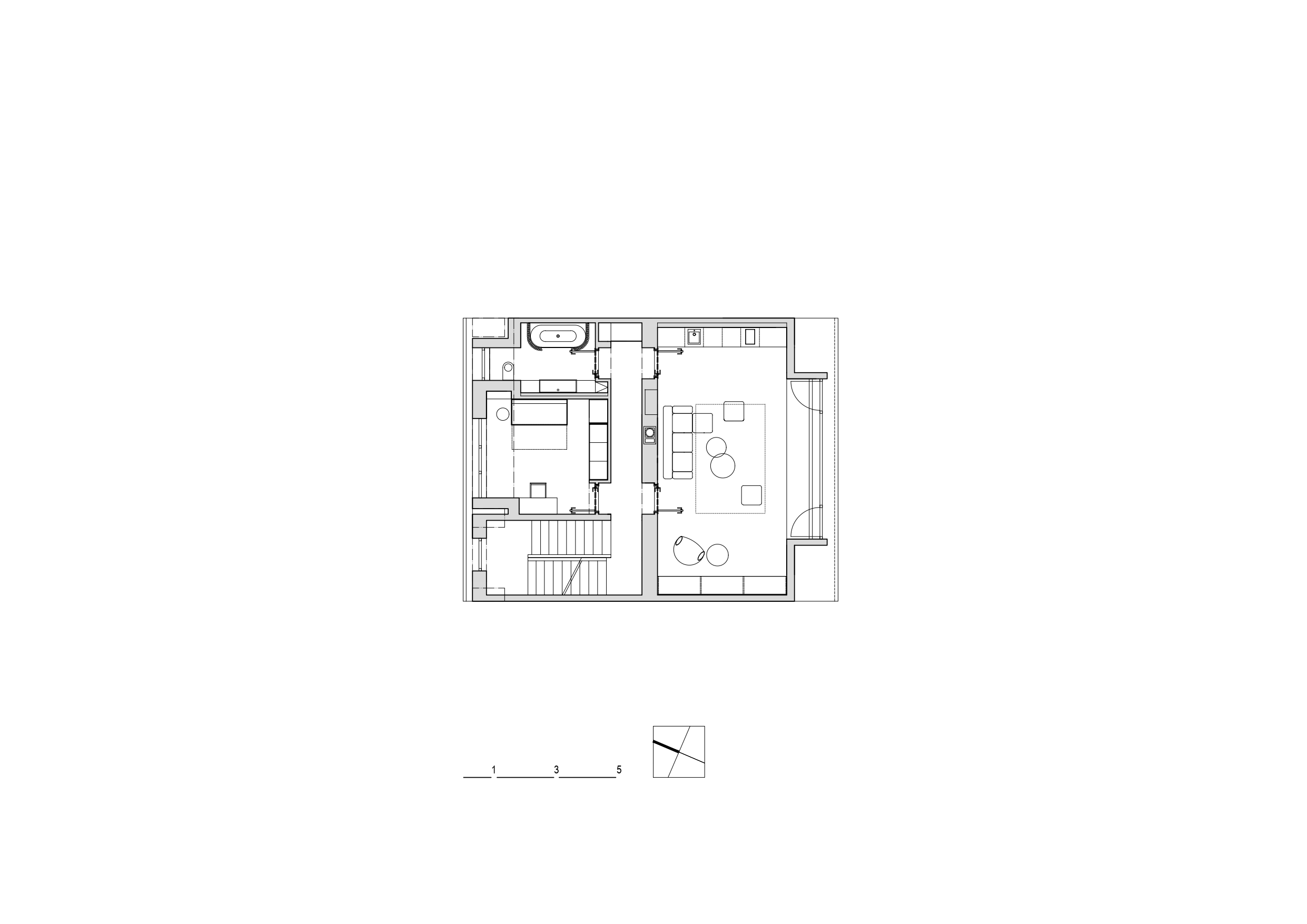
Vnitřní členění domu bylo výrazně upraveno. Vstup na nejnižší úrovni domu byl celkově zvětšen a prosvětlen díky proskleným dveřím, odstranění podhledů a proměně materiálů i barev. V přízemí se v kontaktu se zahradou odehrávají hlavní prostory – obývací pokoj, kuchyň s jídelnou a ložnice s koupelnou. Pro tu se podařilo vyšetřit místo zmenšením průchodu na zahradu a drobnými souvisejícími změnami. V patře se prostory, které dříve sloužily jako dětské pokoje, proměnily v „salón“ pro setkání rodiny při slavnostních příležitostech a současně v domácí kinosál a pokoj pro hosty. Zásadní proměnou prošlo také podkroví, které nyní umožňuje pobyt hostů i po delší dobu při zachování soukromí jak jejich, tak hostitelů.

V interiéru jsou ponechány a doplněny některé původní prvky, například pozinkované zábradlí, které propojením na hlavních a vedlejších podestách jednotlivých ramen získalo „neprašovský“ charakter. Renovovány a doplněny byly původní parkety a podlahové „lišty“ z pozinkovaného plechu. Stěny barevně ztlumené do bílé a šedé dávají vyniknout obrazům, část je obložena překližkou v přírodním tónu. Také koupelny byly změněny jak prostorově, tak celkovým laděním. Bílé velkoformátové obklady (3 x 1 m) doplňuje teracová dlažba a truhlářské kusy z dubového masivu. Původní vnitřní dveře s nadsvětlíky prošly renovací, nové jsou provedeny se skrytými zárubněmi.

Interiér je především sbírkou věcí shromažďovaných s citem a rozmyslem po celý život. Věcí poutajících investora k lidem a událostem. Spíše než sbírkou předmětů je tak sbírkou lidí skrze předměty. Kamna v obývacím pokoji vytvořil přítel Jürgen Rajh, truhlářské vybavení z masivu vyrobil syn Jakub. Skleněná socha spočívající na kamnech je dílem kamarádky Dany Vachtové. Textilní prvky interiéru ušila investorka z vlny přivezené ze Skotska, světla nad jídelním stolem pořídil investor na dánském bazaru. Betonové dlaždice terasy jsou z betonárny nedaleko Javornické palírny, dalšího investorova „příběhu“. Stejně jako první, i druhá rekonstrukce domu je nepřekvapivě spojena s kamarády architekty. Každý centimetr domu je „pokryt příběhy“, racionálními i impulzivními rozhodnutími, je zrcadlem jeho obyvatel.
Autorská zpráva
Místo stavby: Praha-Břevnov
Autoři: Mimosa architekti / Jana Zoubková, Petr Moráček, Pavel Matyska
Autoři rekonstrukce z r. 1999: ADR
Zastavěná plocha: 190 m²
Užitná plocha: 314 m²
Plocha pozemku: 390 m²
Projekt: 2021
Realizace: 2025
Foto: Petr Polák




































Z mého pohledu je fajn vidět, jak se i u tak „běžné“ věci, jako jsou překlady, řeší systémovost a přesnost!
Praktické řešení, hlavně z pohledu rychlosti výstavby a přesnosti👍 U těchto systémových prvků dává smysl, že zjednodušují realizaci a pomáhají…
Zajímavý posun ve stavebnictví, je vidět, že se dnes klade velký důraz hlavně na rychlost výstavby a přesnost provedení. Systémové…
Jako problém vidím hlavně "lavičky" v prostoru sdíleném s cyklisty. Neměly by mít třeba tyče s praporky, jako dětské nákupní…
Zdravím, děkuji za informaci o výstavbě v areálu i zmínku o vile, žel chybí aspoň informace, zda vila stojí a…