Rekonstrukce nejmenší vilky v horní části Liebiegova městečka v Liberci navrací domu z roku 1914 jeho původní rezidenční charakter. Po období kancelářského využití se objekt znovu stává rodinným bydlením, doplněným o současnou zahradní přístavbu.

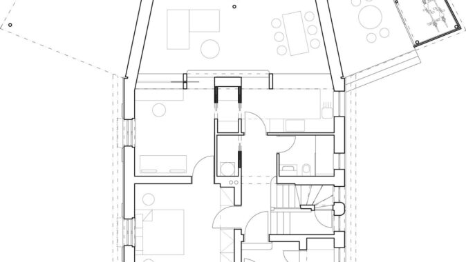
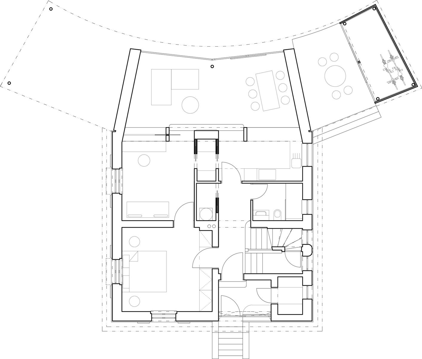
Dům, původně navržený jako součást třetí etapy výstavby kolonie, stojí uprostřed parcely tvaru připomínajícího kapku. Jedním z hlavních záměrů návrhu bylo obnovit jeho původní solitérní postavení, narušené přístavbou garáže z devadesátých let. Ta byla odstraněna a na západní stranu domu navázalo nové křídlo, které se v mírném oblouku rozvíjí po celé šířce pozemku. Hmotově zůstává nízké a z ulice téměř neviditelné, směrem do zahrady se však otevírá velkorysým prosklením.
„Nové zásahy zůstávají z ulice téměř skryté a kolemjdoucí vnímají především citlivě obnovenou historickou část domu. Objekt si zachovává kompaktní rozměry, což vyžadovalo velmi efektivní řešení dispozic včetně vestavěného nábytku na míru.“ Rekonstrukce jako ocenění původních kvalit, Petr Šmídek, více v časopise STAVBA 1/2026

Tenká betonová střešní deska s extenzivní zelení podtrhuje horizontální charakter přístavby a ponechává dominantní roli původnímu domu. Přístavba zároveň proměňuje zahradu: rozděluje ji na dvě části a vytváří chráněnější pobytový prostor v západní části pozemku. V severním segmentu je umístěn zahradní sklad, v jižním kryté stání navazující na stávající vjezd.
„Majitelé s architekty přistoupili k rekonstrukci velmi citlivě a zároveň současně. V zadní části stavbu doplňuje oblouková přístavba s dřevěným obkladem, plochou střechou s výrazným přesahem a velkorysým prosklením, zatímco esence domu a řada detailů exteriéru i interiéru byly obnoveny.“ Obnovená esence domu, Eliška Podholová Varyšová, více v časopise STAVBA 1/2026

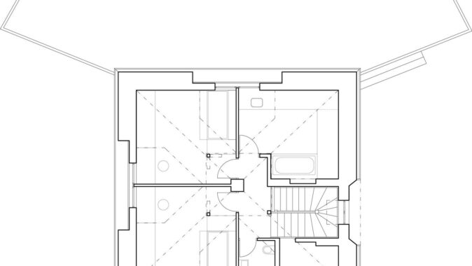
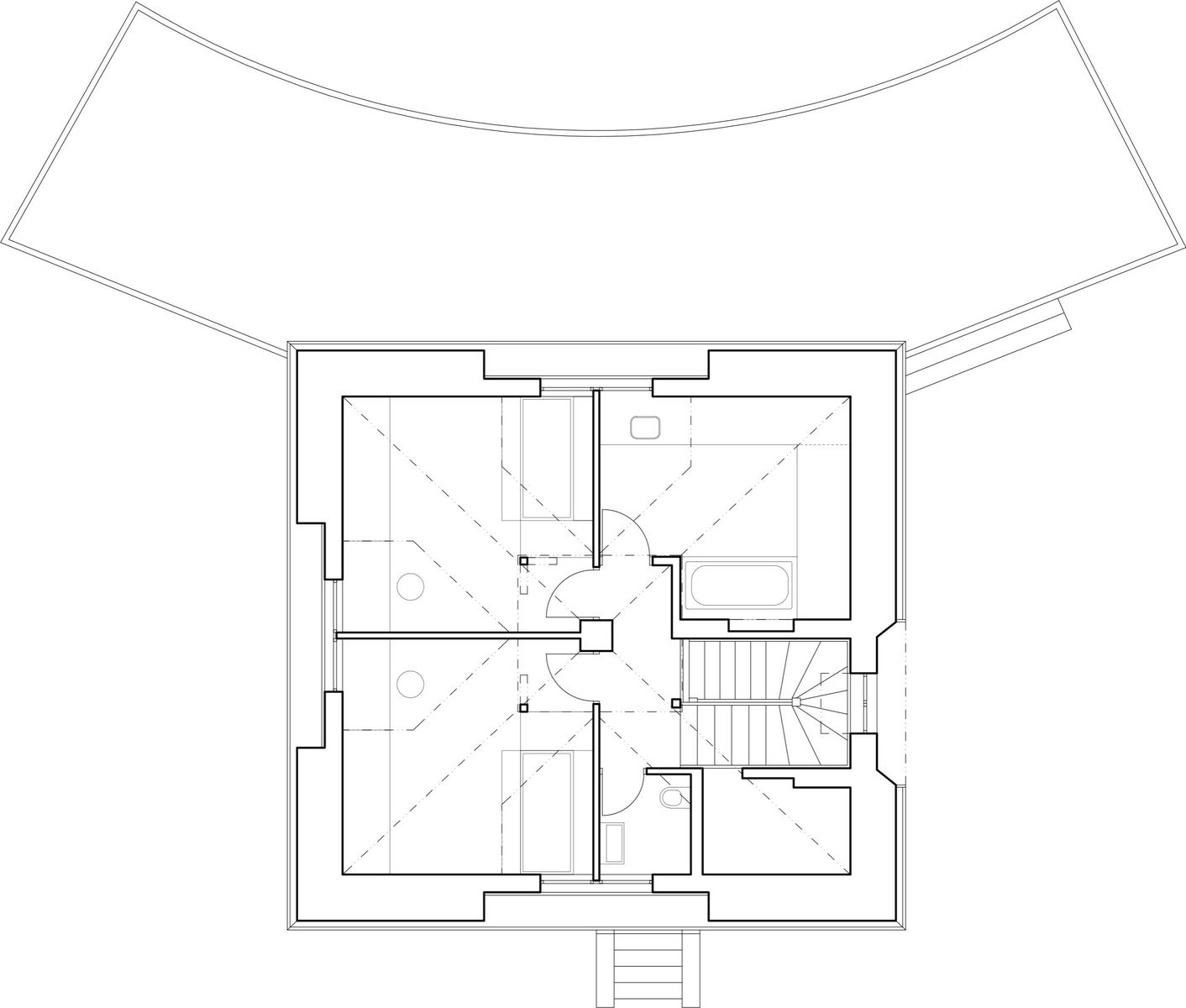
Obnova historického objektu zdůrazňuje jeho charakteristické prvky – návrat bobrovek na stanovou střechu, repliky špaletových oken s okenicemi i úpravu vikýřů. Interiér, dříve přizpůsobený kancelářím, byl přepracován na bytovou jednotku 5+1. Otevřením západní stěny vznikl hlavní obytný prostor propojující kuchyni, jídelnu a obývací pokoj s novou hmotou a zahradou. Projekt spojuje citlivou obnovu historické vrstvy s výrazným, ale měřítkově střídmým současným zásahem.
Podle autorské zprávy
Lokalita: Svatoplukova, Liberec
Autoři: atakarchitekti / Jana Janďourková Medlíková, Michaela Doležalová
Zastavěná plocha: 185 m²
Obestavěný prostor: 767 m³
Plocha pozemku: 591 m²
Návrh a projekt: 2020–2022
Realizace: 2022–2024
Foto: Tomáš Souček






































Kaskády Hranice jsou skvělým příkladem toho, že i bytová výstavba může mít kvalitní architekturu, promyšlený urbanismus a příjemný prostor pro…
Architektura musí souviset s místem, nikoli místo s architekturou. Proto jakékoli stavby umožňující realizaci na různých místech nejsou ARCHITEKTUROU.
Z mého pohledu je fajn vidět, jak se i u tak „běžné“ věci, jako jsou překlady, řeší systémovost a přesnost!
Praktické řešení, hlavně z pohledu rychlosti výstavby a přesnosti👍 U těchto systémových prvků dává smysl, že zjednodušují realizaci a pomáhají…
Zajímavý posun ve stavebnictví, je vidět, že se dnes klade velký důraz hlavně na rychlost výstavby a přesnost provedení. Systémové…