Na vrcholu pražských Záběhlic bude v druhé polovině roku 2025 dokončen unikátní soubor vil podle návrhu Ivana Kroupy. Minimalistické elegantní vily, kvalitní materiály a citlivý urbanismus řadí projekt společnosti CONTI k velkoryse promyšleným vilovým čtvrtím modernismu.

Největší kvalitou lokality jsou její výhledy. Vily jsou navrženy jako velké obrazovky na subtilní podnoži, usazené ve svahu tak, aby jedna druhé nekonkurovala. Celoplošná prosklení spojují obytný prostor s krajinou zahrady i města. Na sever se otevírá panorama Prahy, jižně míří pohledy do zeleně soukromých zahrad. Bohatá zeleň je ostatně jediným dekorativním prvkem, se kterým minimalismus architektury Ivana Kroupy neodmyslitelně pracuje.

Stavba s výrazným převisem prvního patra je materiálově střídmá – beton, sklo a kov. Hrubá struktura omítky v kontrastu s velmi odrazivým sklem zdůrazňuje lapidární formu domu i jeho přirozené propojení s okolní zelení. Krása objektu vychází z čisté geometrie tvarů, autenticity materiálů a jednoduché kompozice následující funkci. Soukromý vstup k vilám navazuje na stávající vilovou zástavbu v slepé ulici. Rezidenti v okolí domova potkávají pouze sousedy, které dobře znají. Citlivý urbanismus mezi nimi podněcuje důvěru a vytváří komunitu lidí, kteří k sobě mají blízko.

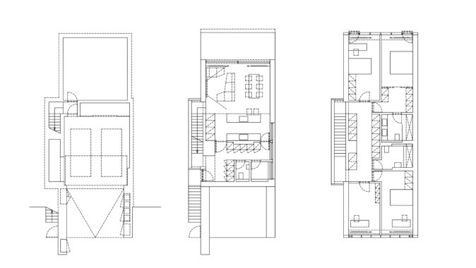
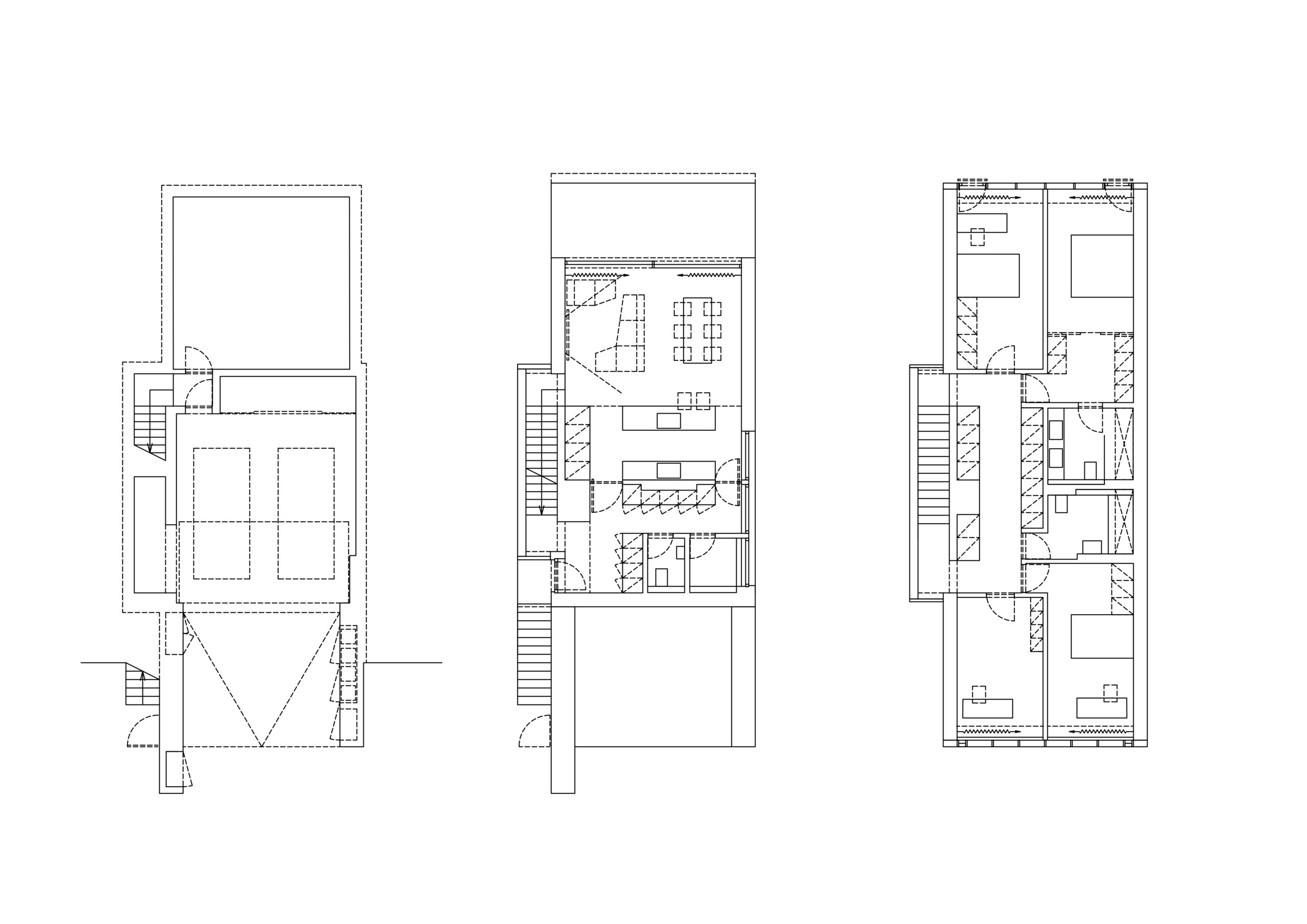
Vily jsou navrženy ve třech velkorysých dispozicích, z nichž každá mistrně pracuje s prostorem a přirozeným světlem. Vzdušné interiéry přízemí a prvního patra plynule přecházejí do exteriéru. Obývací pokoj s kuchyní se přes terasu otevírá do zahrady se vzrostlými stromy i dostatkem prostoru pro jezírko, bazén či venkovní kuchyň. Ve vilách typu B patro s ložnicemi pokračuje do zimní zahrady, kterou otočné skleněné lamely v mžiku naplní svěžím vzduchem a otevřou okolní zeleni. Vizuálně difuzní dům zrcadlí zvenčí stromy a oblohu a zachovává tak naprosté soukromí. Intimní prostředí zahrad zajišťují monolitické stěny, které brzy obrostou přirozenou vegetací.

Pro atmosféru interiéru je určující světlo, které má ve všech místnostech přirozený zdroj. Vychází nejen z velkoplošných prosklení, ale také světlíků na schodišti či v koupelnách. Interiéry jednotlivých vil navrhl ateliér Plus One Architects. Na architekturu Ivana Kroupy navazuje sofistikovanou jednoduchostí, která nechá vyniknout ušlechtilým přírodním materiálům a nerušeným výhledům.

Vizuálně je interiér pojat na šest různých způsobů, kterým střídavě dominuje dřevo, keramika, kov, sklo, ale i akcent v podobě kamene nebo odhaleného betonu. K pocitu exkluzivity přispívají pivotové dveře s detailem elegantních klik. V kombinaci s jedinečným charakterem světla dopadajícího ze střešních světlíků vzniká až sakrální dojem. Technickým a úložným zázemím domu je prostorný suterén, který pojme kromě několika vozů i domácí wellness, hernu, kino nebo vinotéku.
Tisková zpráva
Autor Ivan Kroupa architekti / Ivan Kroupa (architektura, urbanismus)
Interiér: Plus One Architects / Petra Ciencialová, Kateřina Průchová
Spoluautoři Steiner a Malíková krajinářští architekti
Místo Záběhlice, Praha
Rok projektu 2023–2026
Rok dokončení 1. etapa podzim/zima 2025, 2. etapa podzim/zima 2026
Užitná plocha 257 m² vila A / 5+kk, 307 m² vila B / 5+kk, 403 m² vila C/ 7+kk
Plocha pozemku vila A: 233-345 m², vila B: 390-560 m², vila C: 486-833 m²
Developer a klient: CONTI
Vizualizace: Monolot



















































Kaskády Hranice jsou skvělým příkladem toho, že i bytová výstavba může mít kvalitní architekturu, promyšlený urbanismus a příjemný prostor pro…
Architektura musí souviset s místem, nikoli místo s architekturou. Proto jakékoli stavby umožňující realizaci na různých místech nejsou ARCHITEKTUROU.
Z mého pohledu je fajn vidět, jak se i u tak „běžné“ věci, jako jsou překlady, řeší systémovost a přesnost!
Praktické řešení, hlavně z pohledu rychlosti výstavby a přesnosti👍 U těchto systémových prvků dává smysl, že zjednodušují realizaci a pomáhají…
Zajímavý posun ve stavebnictví, je vidět, že se dnes klade velký důraz hlavně na rychlost výstavby a přesnost provedení. Systémové…