Kmeny bříz a kameny z nedalekých Pusteven jsou součástí příběhu, který již více než 200 let vypráví stavení v Trojanovicích. Po rekonstrukci podle studia Kamil Mrva Architects je dům při úpatí Moravskoslezských Beskyd místem, kde lze vnímat přírodu, a zároveň si užívat komfortu.

První písemně doložená zmínka o domu pochází z roku 1811, dohledatelný je na mapách z roku 1833. Původně se jednalo se o zemědělskou usedlost, pasekářský dům z části sloužící k ustájení hospodářských zvířat a z části k bydlení. Ke stavení náležely rozsáhlé polnosti a součástí byl také vodní mlýn, který byl časem přestavěn v malou vodní elektrárnu. Usedlost byla významná i v komunitním životě obce, jelikož se zde odehrávaly nejrůznější slavnosti, jako třeba dožínky. Bohatá historie s sebou navíc nese i zajímavé osobní příběhy předchozích majitelů a zdroje finančních prostředků použitých na koupi domu dvou z nich.

Majitelé dům přetvářeli téměř patnáct let k obrazu svému, a když už měli konečně hotovo, rozhodli se začít nanovo. Již od prvotní myšlenky na rekonstrukci měli jasno v tom, komu její návrh svěří. „Trojanovice již léta vzkvétají pod taktovkou dlouholetého starosty a také architektonického studia Kamil Mrva Architects, takže nebylo o kom jiném přemýšlet,“ vysvětluje majitel. Studio oslovil na přelomu roku 2022 a 2023 s velmi minimalistickým zadáním – architekti se původně měli ujmout pouze dispozic samotných pokojů. Nakonec ale vzájemná spolupráce přerostla v celkovou rekonstrukci objektu. Základním přáním majitelů bylo zachovat domu historického ducha a akcentovat v něm okolní ráz krajiny.

Nosnou myšlenkou interiéru se stalo propojení architektury a přírody, a proto celý dům prolínají přírodní materiály i barvy. Jedním z hlavních materiálů bylo dřevo, a to jednak v podobě ručně tesaných, překládaných trámových stropů, a jednak v té nejčistší, přírodní formě – neopracovaných kmenů. Přírodní podoba dřeva svoji podstatnou roli hraje také na nábytkovém vybavení. Všechny prvky jsou minimalistické a z kvalitního dřeva a oceli. Druhým významným materiálem užitým v interiéru se stal kámen, a to i proto, že majitel stavby má s jeho opracováním bohaté zkušenosti ze své profesní praxe.

Přestože se jedná o historický objekt, majitelé se rozhodli jej pro komfort dnešního života „protkat“ moderními technologiemi. Celý dům je řízený a ovládaný systémem inteligentního řízení značky Control4, a několika tablety, ze kterých lze ovládat například světla, topení, televizi i hudbu. Dům má pro poslech hudby ve stěnách zabudované reproduktory, veškerá aparatura je ukryta v technické místnost. Moderní technologie nejsou opomenuty ani v exteriéru, kde lze pomocí inteligentního systému skrze tablet ovládat lesní wellness, bar i kino. Tabletem se spouští například i vodopád umístěný na prostorné terase lemované okrasnou skalkou, nebo hudba z outdoorových reproduktorů.
Tisková zpráva, kráceno
Místo stavby: Trojanovice
Autoři: Kamil Mrva Architects / Kamil Mrva, Filip Ciahotný
Realizace: 2023–2024
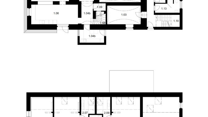
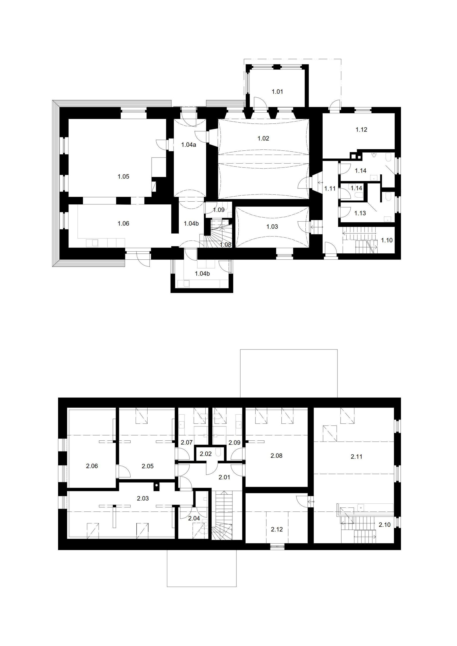
Zastavěná plocha: dům – 322 m2, hospodářská budova – 515 m2
Vytápění: tepelné čerpadlo Forester, 23 kW
Střešní krytina: krytina SATJAM Roof v prémiové polyuretanové povrchové úpravě
Foto: Filip Ciahotný pro SATJAM












































Akustika je často podceňovaný, ale zásadní aspekt kvality bydlení... Článek dobře ukazuje, že nejde jen o samotný materiál, ale hlavně…
Oceňuji hlavně důraz na kvalitu provedení, nestačí jen dobrý materiál, ale i správná realizace. V praxi právě detaily často rozhodují…
Skvělý článek o akustické kvalitě staveb, která je často opomíjená, ale velmi důležitá. Systémy Heluz nabízejí dobrá řešení pro zvukovou…
Zajímavé téma, díky za sdílení. Tyhle novinky z praxe mají vždycky největší přínos 👍
Zajímavý webinář zaměřený na novinky od společnosti Heluz. Oceňuji hlavně představení cihel Heluz AKU a jejich výsledků v oblasti zvukové…