Rodinný dům v Polance nad Odrou, který bydloarchitekti navrhli a postavili pro svou rodinu, se nachází v jihozápadní části Ostravy. Jednoduše tvarovaný bílý objekt v okolí vyniká. Možná i proto se stal finalistou České ceny za architekturu 2025.

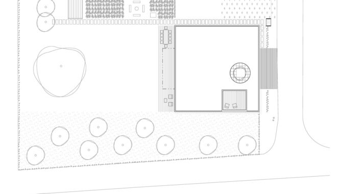
Dům pro dva architekty a jejich děti, dům pro nás. Na místě cihlového domu po praprababičce. Nenáročný na metry čtvereční a technologie. Náročný na kompaktnost, jednoduché hmoty a přiznané materiály.

Po stranách jsou dva cihelné bloky, jeden s ložnicí otevřenou do atria se saunou, druhý s dětskými pokoji a kůlnou. Mezi nimi proplouvá denní život. Od ulice vstupním nádvořím se stromkem a krytým stáním, kolem kuchyně a koupelen do obýváku s jídelnou až na terasu do zahrady.

Betonový strop vybíhá ven nad jižní prosklenou stěnou, kterou chrání proti přehřívání. Podlaha je z hlazeného betonu. Plné cihly jsou v interiéru doplněny nábytkem a obklady z překližky.

Někdo se diví, že nám je vidět až do talíře. Nám to ale nevadí. Užíváme si výhledu do krajiny, psa povalujícího se na terase, květinové louky, ovocných stromů v sadu, vůně bylinek a šumění rákosí.
Autorská zpráva
Autoři: bydloarchitekti / Pavla Vymetálková, Martin Vymetálek
Zastavěná plocha: 218 m2
Obestavěný prostor: 815 m3
Plocha bytu: 95 m2
Plocha pozemku: 1125 m2
Projekt: 2016
Realizace: 2017–2020
Náklady: 3 mil. Kč při stavbě svépomocí
Foto: Robert Žákovič




































Do 4/1 jsou Mockerovy domy přístupné v rámci akce Vánoční putování Pražským hradem https://www.hrad.cz/cs/kultura-na-hrade/program/vanocni-putovani-prazskym-hradem-1-13462
Hodně mě překvapilo, že je v areálu Pražského hrad tahle zanedbaný dvorek. Na leteckých snímcích to vypadá líp, jako že…
Díky za odkaz, opravdu zajímavý projekt! Rekonstrukce za plného provozu je vždycky náročná, a je skvělé vidět, jak se to…
Ano, továrna v Pardubicích je velmi zajímavá. Kromě jiného rekonstrukce probíhala za plného provozu. Přikládám odkaz na celou stavbu, je…
V rámci Prahy jde o jednu z nejhlučnějších lokalit, které lze v centru najít. ideální pro drahé kanceláře a bydlení.…