Zadáním pro architektku Annu Nižňanskou bylo rekonstruovat a dostavět rodinný dům. Původní dům, jeden z prvních v lokalitě, nebylo možné z důvodu špatného statického stavu zachovat. Projekt proto pracuje s kombinací replikované uliční fasády a nově navržené zadní části domu s ateliérem.

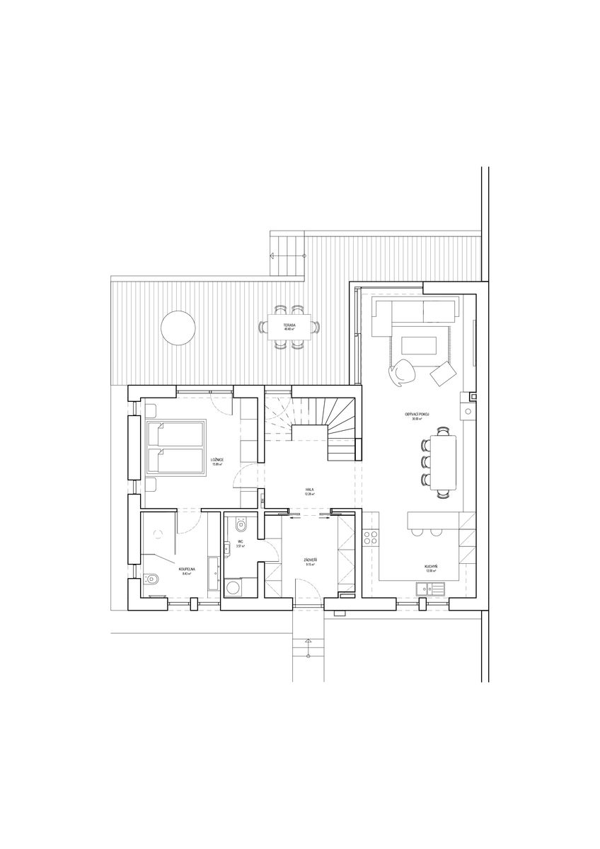
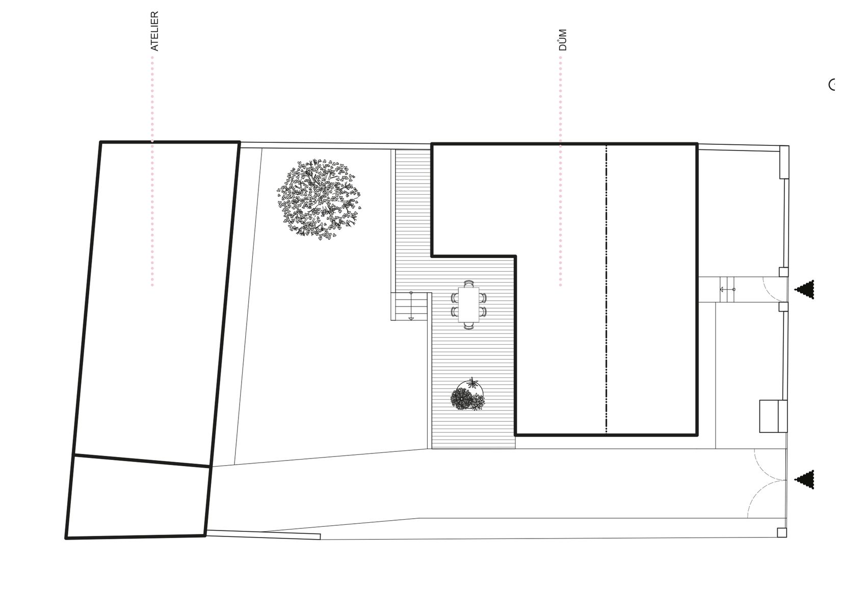
Čelní fasáda se sádrovými štuky byla pečlivě obnovena v původním výrazu. Zadní část domu je řešena soudobě, s ohledem na potřeby investorů i charakter původní stavby. Hmota domu směrem do zahrady ustupuje a vytváří klidový vnitřní prostor. Základním principem návrhu je propojení interiéru se zahradou. Hlavní obytný prostor je otevřen velkoformátovými okny a HS portálem na terasu, která je navržena ve stejné úrovni jako podlaha interiéru. Terasa je provedena z garapy.

Dům je určen pro starší manželský pár s požadavkem na bezbariérové řešení části dispozice a možnost ubytování rodiny a hostů. V přízemí se nachází hlavní obytný prostor s kuchyní, jídelnou a obývacím pokojem, dále ložnice s vlastní bezbariérovou koupelnou a samostatné WC. V patře jsou situovány další ložnice, pracovna, pokoj pro hosty a druhá koupelna. Interiér je řešen v neutrální materiálové paletě s důrazem na přirozené světlo a variabilitu prostoru. Součástí návrhu je práce s původními motivy domu, například špaletovými okny, zdobnou fasádou či kamennou cestou z pražské mozaiky lemující objekt.

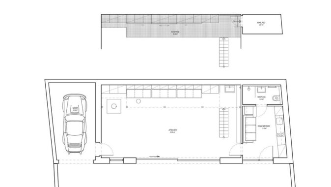
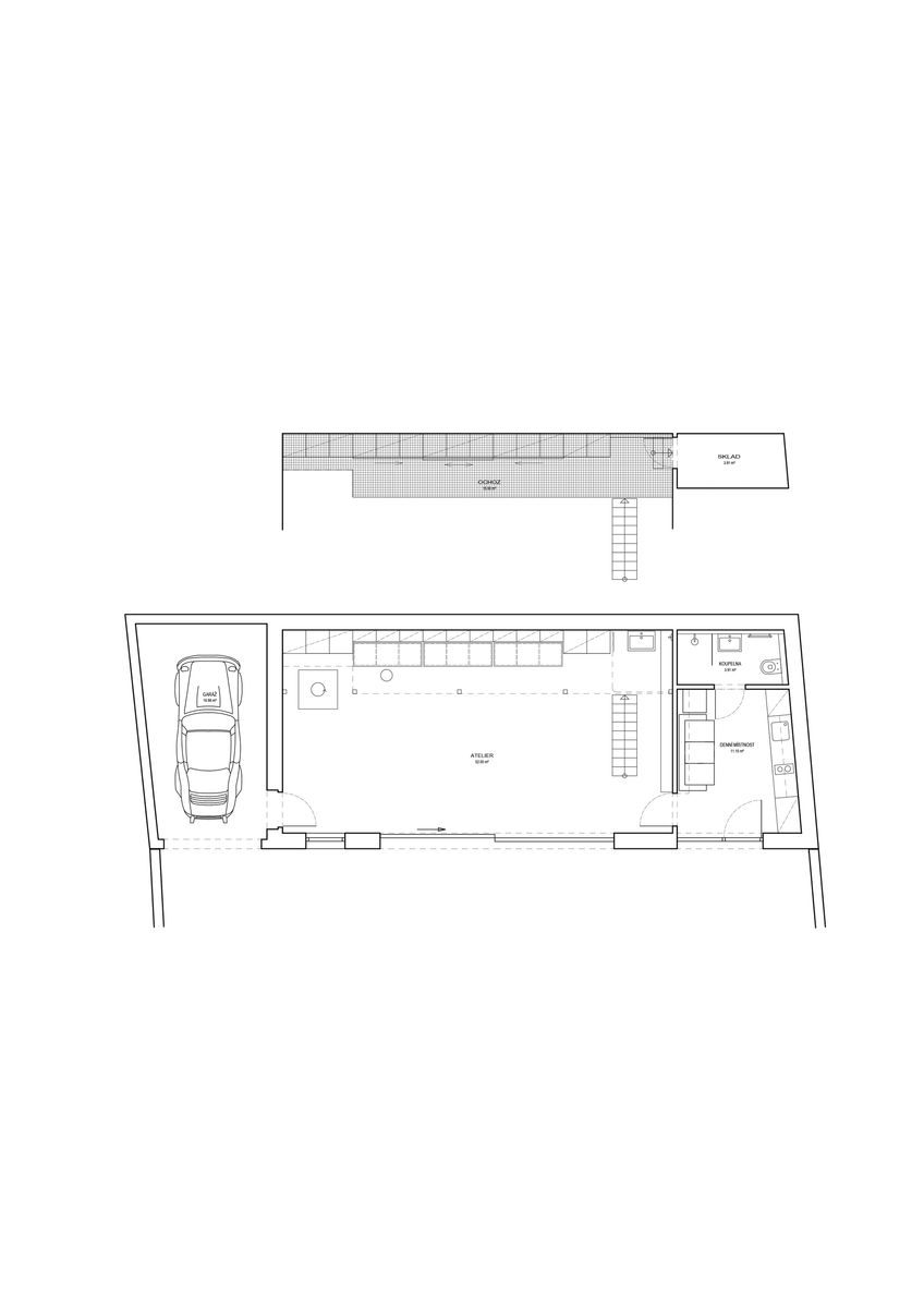
Dům je vybaven tepelným čerpadlem, solárními panely, řízeným větráním s rekuperací, venkovními žaluziemi, trojskly a retenční nádrží na dešťovou vodu pro zavlažování zahrady. Na obytnou část navazuje samostatný sochařský ateliér. Prostor o výšce 4 m je navržen jako flexibilní pracovní zóna s dostatečnými úložnými kapacitami. Podél zadní stěny je vloženo pochozí patro z pororoštů na konzolové ocelové konstrukci s přístupem k vestavěným úložným skříním. V hlavním prostoru jsou mobilní pracovní stoly, spodní úložné moduly a manipulační technika včetně zvedací kladky a pojízdné točny.

Ateliér je vybaven výlevkou s ruční sprškou a odtokovým kanálkem pro práci se sádrovými formami. Součástí je také denní místnost s kuchyňským zázemím, koupelna se sprchou a WC, sklad a garáž s přípravou pro nabíjení elektromobilu. Interiér pracuje s minimalistickou paletou – bílé kovové konstrukce a úložné prvky doplňuje světle šedá podlaha.
Autorská zpráva
Místo stavby: Praha-Lysolaje
Autorka: Anna Nižňanská
Spolupráce: Studio Moa / Andrej Kozánek, Peter Úradník (projekt pro DSP)
Zahrada: Lanka Dřevjana,Ferdinand Leffler
Další spolupráce: Anna Podroužková (3D render)
Plocha: 182 m² + terasa 40 m² + zahrada 300 m² + sochařský ateliér 84 m²
Foto: Václav Novák
















































Ten dům vypadá z ulice celý jako sádrová maketa. Není to nemoc z povolání 🙂 ?