Rekreační chata v Prosečnici nahrazuje původní objekt zničený požárem a využívá jeho kamennou podezdívku. Návrh studia Mimosa architekti pracuje s polohou mezi řekou Sázavou a skalním svahem a staví na kontrastu lehké dřevěné konstrukce a robustního podkladu.

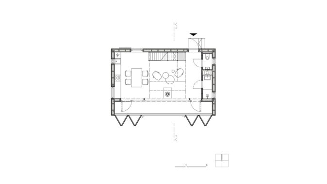
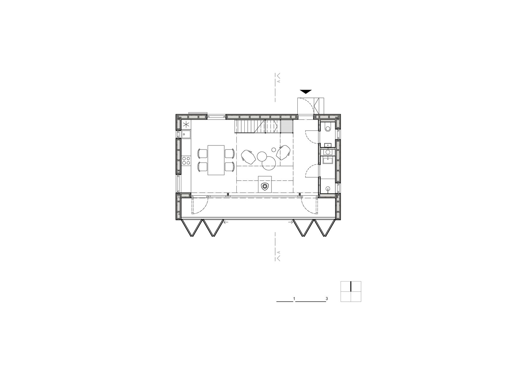
Nová stavba zachovává půdorysnou stopu původní chaty a přebírá její kamennou podezdívku, která zajišťuje ochranu před povodní a zároveň vymezuje odstup od terénu. Na ní je osazena lehká dřevěná konstrukce s jednoduchým objemem reagujícím na úzký prostor mezi řekou a svahem. Nosnou konstrukci tvoří dřevěný skelet, který je z interiéru opláštěn smrkovou biodeskou. Vnější plášť je z opálených modřínových prken, jejichž úprava zvyšuje odolnost materiálu a sjednocuje výraz stavby. Směrem ke svahu je objekt chráněn falcovaným plechem odolným vůči stékající vodě.

Dispozice je organizována kolem hlavního obytného prostoru otevřeného přes dvě podlaží. Minimalizované ložnice v patře slouží pouze pro přespání a umožňují věnovat většinu objemu společnému pobytovému prostoru. Ten je orientován k řece a po celé délce prosklen, s návazností na vyvýšenou terasu. Terasa nahrazuje přímý kontakt s terénem a poskytuje výhled na řeku. Je možné ji uzavřít skládací okenicí, která reguluje oslunění a zároveň umožňuje objekt zcela uzavřít mimo dobu užívání.

Interiér je řešen jako kompaktní prostor sjednocený materiálově i barevně. Kombinace světlé biodesky a černých kovových prvků – kamen, schodiště a detailů – navazuje na výraz exteriéru a motiv ohně spojený s historií místa. Objekt funguje s vysokou mírou soběstačnosti. Voda je čerpána ze studny na pozemku, odpadní vody jsou akumulovány v nádrži v podezdívce. Vytápění zajišťují krbová kamna doplněná elektrickými přímotopy.
Podle autorské zprávy
Lokalita: Prosečnice
Autoři: Mimosa architekti / Petr Moráček, Jana Zoubková, Pavel Matyska, Dalibor Pospíšil
Projekt: 2020
Realizace: 2025
Foto: Petr Polák








































Kaskády Hranice jsou skvělým příkladem toho, že i bytová výstavba může mít kvalitní architekturu, promyšlený urbanismus a příjemný prostor pro…
Architektura musí souviset s místem, nikoli místo s architekturou. Proto jakékoli stavby umožňující realizaci na různých místech nejsou ARCHITEKTUROU.
Z mého pohledu je fajn vidět, jak se i u tak „běžné“ věci, jako jsou překlady, řeší systémovost a přesnost!
Praktické řešení, hlavně z pohledu rychlosti výstavby a přesnosti👍 U těchto systémových prvků dává smysl, že zjednodušují realizaci a pomáhají…
Zajímavý posun ve stavebnictví, je vidět, že se dnes klade velký důraz hlavně na rychlost výstavby a přesnost provedení. Systémové…