Rodinný dům od studia Fránek Architects pro milovníka umění leží na pozemku svažujícím se k jihu a na tuto morfologii přirozeně reaguje.

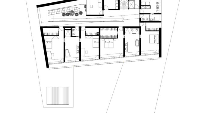
Dům má půdorysný tvar písmene C tak, aby ochránil soukromí a zvýšil míru intimity. Do vnitřního dvora je dům obložen vápencem, částečně průchozí střechy pokrývá extenzivní zeleň. Přístup denního světla zajišťují velkoformátová okna, směrem na jih na celou výšku podlaží.

Dům je rozdělen do několika celků, které na sebe přirozeně navazují a jsou mezi sebou propojeny. Přízemí navazuje na zahradu a otevírá se k jihu, horní patro vede na úroveň komunikace z ulice. Objekt je částečně podsklepen v místě bazénového křídla.

V dolní části zahrady je koupací biotop. Koupací jezírko je určeno pro koupání v letních měsících. Voda v jezírku je čištěna přírodními procesy.
Autorská zpráva
Autoři Fránek architects
Projekt 2014
Realizace 2019
Užitná plocha 935 m2
Zastavěná plocha 605 m2
Plocha pozemku 2810 m2
Foto Petr Polák








































Architektura musí souviset s místem, nikoli místo s architekturou. Proto jakékoli stavby umožňující realizaci na různých místech nejsou ARCHITEKTUROU.
Z mého pohledu je fajn vidět, jak se i u tak „běžné“ věci, jako jsou překlady, řeší systémovost a přesnost!
Praktické řešení, hlavně z pohledu rychlosti výstavby a přesnosti👍 U těchto systémových prvků dává smysl, že zjednodušují realizaci a pomáhají…
Zajímavý posun ve stavebnictví, je vidět, že se dnes klade velký důraz hlavně na rychlost výstavby a přesnost provedení. Systémové…
Jako problém vidím hlavně "lavičky" v prostoru sdíleném s cyklisty. Neměly by mít třeba tyče s praporky, jako dětské nákupní…