Ve stínu Krušných hor, kde každá stavba podléhá výzvám krajiny i klimatu, stojí dvojdům podle návrhu ateliéru BekArch. Klíčovou inspirací návrhu byly pohledy do okolní krajiny.

Architektonický přístup k budově stojí na kombinaci soudobého minimalismu s tradicí horské architektury a zároveň pracuje s detaily, které zvyšují komfort bydlení. Hrubá stavba je založená na tradičně spolehlivých materiálech s důrazem na pevnost, stabilitu a akustický komfort. Celek spojuje tradiční zděnou technologii s moderními prefabrikovanými prvky. Střecha jez falcovaného plechu v barevné shodě s přízemím domu. To celou stavbu vizuálně uzemňuje a vytváří pevný základ.

Návrh dvojdomu byl od počátku formován jeho lokalitou – horským prostředím, které klade na stavbu specifické technické i estetické nároky. Architekti proto přizpůsobili podobu domu nejen panoramatům, ale také klimatickým podmínkám, jež určily výběr materiálů i konstrukční řešení. Dřevěný obklad umožňuje stavbě splynout s okolní krajinou. Nepravidelný rytmus prken dvou šířek se propisuje i do interiéru, a to v podobě podlah, či stěn společných prostor. Suterénní podlaží naopak kombinuje plechový obklad a gabionové koše.

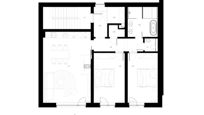
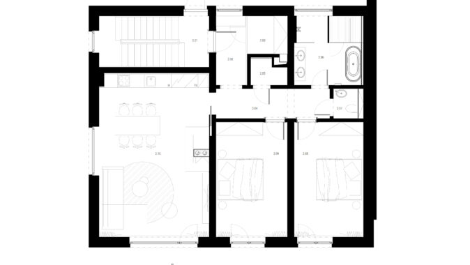
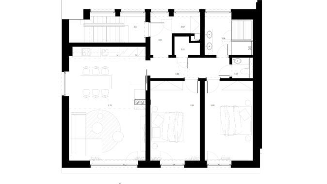
V suterénu obou domů se nacházejí garáže a technické zázemí. Přízemní byty jsou v přímém kontaktu s terénem, podél celé délky bytové jednotky je možné využít k odpočinku soukromou terasu s vířivkou. Architekti zvolili speciální terasovou dřevinu thermojasan. První patro disponuje vlastním zadním vstupem na zahradu. Podkrovní byty nabízejí kouzlo starých chalup, interpretované moderním jazykem. Stropy s přiznanými krovy a velké plochy prosklení vytvářejí prostor, ve kterém se naplno ukazuje ústřední motiv celého domu – výhled.

Jednotlivá patra domů propojuje schodiště ozvláštněné netradičním detailem, znázorňujícím nadmořskou výšku, ve které se člověk zrovna nachází. Dům je dále vybaven podlahovým vytápěním ve všech obytných podlažích, které zajišťuje rovnoměrnou tepelnou pohodu bez vizuálního zatížení prostoru. Interiéry vycházejí z jednotného koncepčního stylu, existují mezi nimi však jemné nuance, které jim dodávají osobitost.

Skryté bezobložkové zárubně interiérových dveří umožnily vzniknout na pohled ničím nerušenému jednolitému povrchu betonové stěrky. Z chodby lze vstoupit do dvou oddělených ložnic, koupelny i toalety. Ložnice je zařízena účelně a jednoduše. Velkoformátový okenní portál nechává vyniknout proměnlivé scenérii za sklem. Vybrané stěny interiéru, například za čelem postele či následně v hlavní obytné zóně za televizí, byly záměrně upraveny tradiční technikou nahazované vápenné omítky.

Hlavní obytný prostor je příkladem minimalistického designu, který stojí na harmonii přírodních materiálů, čistých linií a tlumené barevnosti. Propojuje kuchyň, jídelnu a obývací část do jednoho plynulého celku, aniž by jednotlivé zóny ztrácely vlastní charakter. Opět zde dominují zemité tóny a přírodní dřevo, které společně vytvářejí klidnou, vyváženou atmosféru. Praktický jídelní stůl, k němuž se pohodlně vejde i větší společnost, zaujme robustní dřevěnou deskou a kovovým podnožím.
Tisková zpráva, kráceno
Místo stavby: Krušné hory
Autoři: BekArch / Jan Bek, Martin Kříž, Štěpán Schich
Realizace: 2025
Podlahová plocha: každé 3+kk o rozloze 103 m²
Foto: Ondřej Holub










































Zajímavé, že HELUZ pořád tlačí nejen produktové novinky, ale i sdílení zkušeností z praxe 👍 Právě tohle mi dává největší…
Akustika je často podceňovaný, ale zásadní aspekt kvality bydlení... Článek dobře ukazuje, že nejde jen o samotný materiál, ale hlavně…
Oceňuji hlavně důraz na kvalitu provedení, nestačí jen dobrý materiál, ale i správná realizace. V praxi právě detaily často rozhodují…
Skvělý článek o akustické kvalitě staveb, která je často opomíjená, ale velmi důležitá. Systémy Heluz nabízejí dobrá řešení pro zvukovou…
Zajímavé téma, díky za sdílení. Tyhle novinky z praxe mají vždycky největší přínos 👍