Budova Mikulášského gymnázia v Plzni pochází z roku 1913 a je památkově chráněná. V původním návrhu se s jídelnou nepočítalo a tak žáci vždy docházeli na obědy do jiných škol. S přístavbou nové jídelny si nakonec poradili architekti ze studia PRO-STORY.

V době covidu se situace zkomplikovala a tak bylo nutné vyřešit vlastní stravování alespoň pro první stupeň. Uvnitř budovy nebylo místo a tak bylo rozhodnuto zastavět malý asfaltový dvorek a co nejmenší část školní zahrady.

Zahradu má pronajatou dlouhodobě Alpinum klub Plzeň. Klub se stavěl k přístavbě negativně, ale ředitel oponoval, že je to přeci školní pozemek. Nakonec vznikl kompromis, kdy jsme návrh minimalizovali s ohledem na rostliny a děti mají úžasný výhled krásné zahrady. Díky velkému prosklení můžou strávníci naplno vnímat přírodu a klub nemusí mít obavy z narušování křehké rovnováhy v zahradě.

Přístavba je z udržitelných, recyklovaných a recyklovatelných, materiálů. Vlastní jídelna je lehce vykonzolovaná nad zahradu a měla by působit tak, že jí tam někdo opatrně položil. Stejně tak řešení detailu napojení na historickou fasádu je minimalistické. Pokud v budoucnu vznikne na jiném místě jiná, větší jídelna, tak tato stavba se jednoduše od gymnázia odpojí.

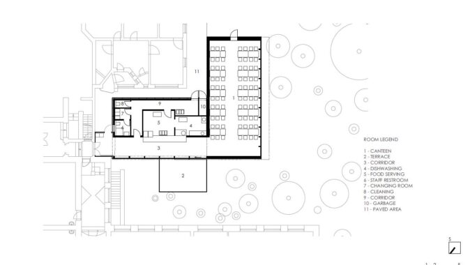
Výdejna s jídelnou je přízemní stavba s kapacitou 300 obědů a 70 míst. Jedná se o dřevostavbu, která je opláštěná plechem. Vytápění je zajištěno vzduchotechnickou jednotkou s rekuperací. Interiér je ze dřeva, marmolea a recyklovaného papíru. Při návrhu interiéru bylo dbáno na akustiku a příjemné barevné provedení.
Autorská zpráva
Místo stavby: Mikulášské náměstí 1, Plzeň
Autoři: PRO-STORY / Jiří Zábran, Markéta Šlajsová
Spolupráce: Rudolf Jedlička
Realizace: 2024
Foto: Tomáš Hejzlar






























Hodně mě překvapilo, že je v areálu Pražského hrad tahle zanedbaný dvorek. Na leteckých snímcích to vypadá líp, jako že…
Díky za odkaz, opravdu zajímavý projekt! Rekonstrukce za plného provozu je vždycky náročná, a je skvělé vidět, jak se to…
Ano, továrna v Pardubicích je velmi zajímavá. Kromě jiného rekonstrukce probíhala za plného provozu. Přikládám odkaz na celou stavbu, je…
V rámci Prahy jde o jednu z nejhlučnějších lokalit, které lze v centru najít. ideální pro drahé kanceláře a bydlení.…
Nejvíce mě oslovila stavba – Továrna v Pardubicích, a myslel jsem to spíše designově, že se mi některé ty stavby…