Novostavba budovy České zemědělské univerzity v Praze-Suchdole z roku 2023 Praha od studia Origon na své zaměření na první pohled odkazuje výraznou zelenou fasádou. Poskytuje klid na výzkum a studium a podílí se na inspirativním kontextu.

Formálně jde o dostavbu, neboť je pevně propojena s dvěma sousedními budovami, které dosud tvořily neuzavřenou linii a nová budova ji uzavírá nárožím. Na jižní straně se napojuje dvěma subtilními krčky na budovu fakulty životního prostředí. Směrem na sever drží fasáda linii, graduje k nároží a končí organickou křivkou. Gradace je vertikální i horizontální a není zvlášť výrazná.

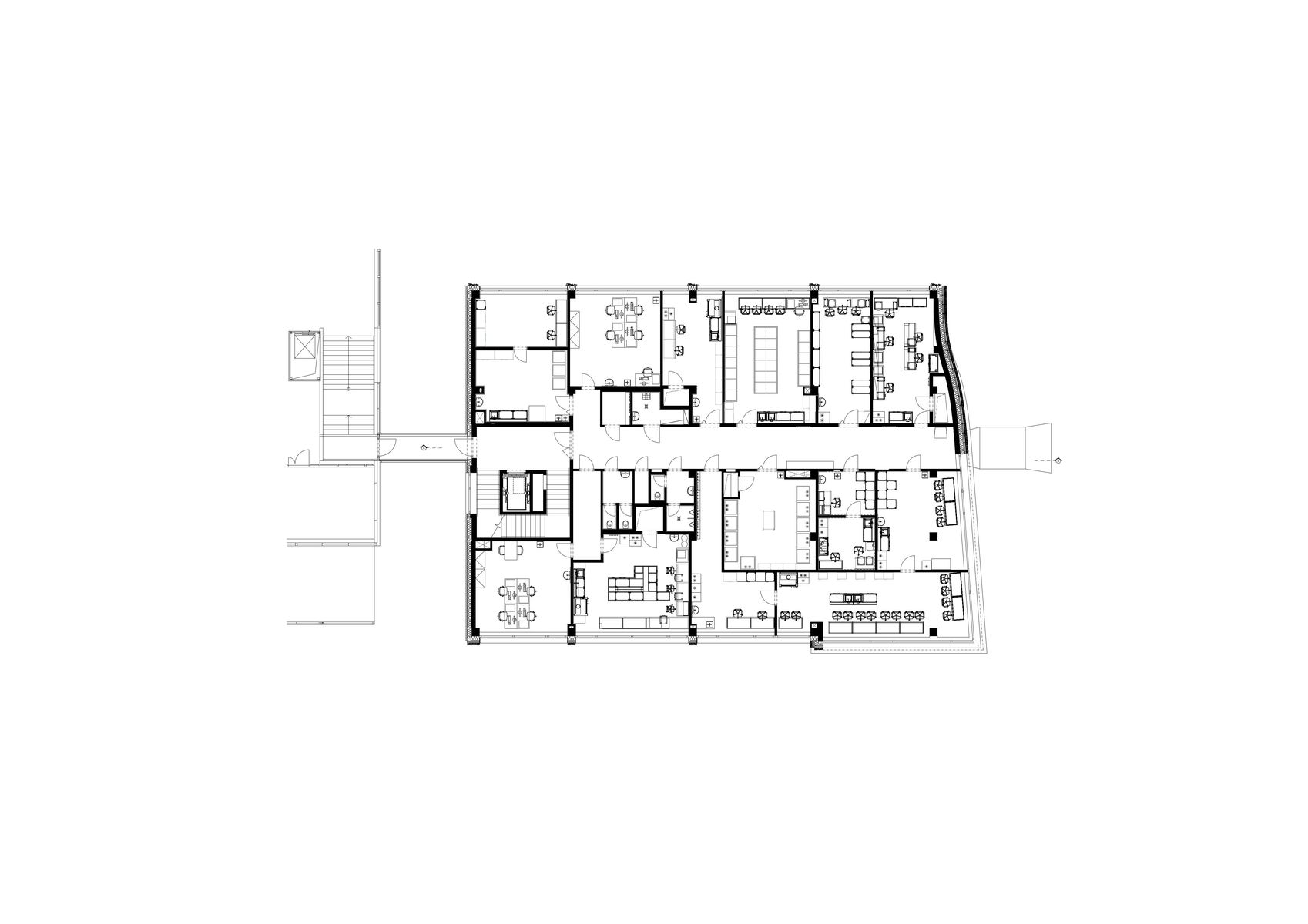
Funkce objektu je tvořena různými jednotkami na malém půdorysu. Objekt je zapuštěn třemi podlažími pod terén a stejný je počet podlaží nad terénem Ve spodních patrech jsou laboratoře, strojovny a archivy, směrem nahoru postupně převažují laboratoře a přibývají kanceláře. Složitost funkčního schématu završují dva bohatě prosvětlené ateliéry pro krajináře. Na ploché střeše je intenzivní zahrada a technologická nástavba.

Složitosti funkce odpovídají fasády. Jsou specifické a vycházejí ze zadání, tj. slouží výzkumu. Zároveň jsou v souladu s kompozičním záměrem – organické je skutečně organické. V pozadí těchto fasád se odehrává koloběh neobvyklých technologií, a dokonce i vodní plocha pod východní fasádou souvisí s vodním hospodářstvím objektu. Nová budova pojímá všechny složitosti a navenek působí pokojně a je součástí různorodého souboru staveb kampusu.
Autorská zpráva, vyšlo v časopise Stavba 4/2023
Místo stavby: Kamýcká 129, Praha-Suchdol
Autoři: Jan Izák, Martin Kristian, Jindřich Cibulka / Origon
Spolupráce: Václav Forman
Investor: Česká zemědělská univerzita v Praze
Zastavěná plocha: 799 m2
Užitná plocha: 4412 m2
Obestavěný prostor: 16 483 m3
Projekt: 2019–2020
Realizace: 2023
Foto: Jan Izák, Martin Kristian






































Okolo stejné fasády jezdím do práce, Minulé léto úplně uschla. Že by taky experiment? V každém případě teď už zase krásně kvete.