Návštěvnické centrum Botanické zahrady Praha od studia AND slouží pro pořádání naučných, prezentačních, společenských a komerčních akcí. Leží v areálu botanické zahrady v místě, kde zahrada sousedí s vilovou zástavbou.

Tím se návštěvnické centrum ocitá na rozhraní dvou zcela odlišných prostředí – z vnější strany rezidenční čtvrť, která má ráda svůj klid a nechce být rušena; z vnitřní strany frekventované návštěvnické centrum s bohatým přírodním, kulturním a společenským programem. Tato výchozí situace zásadně ovlivnila návrh.

Oba objekty jsou navrženy v lapidárních geometrických formách, aby tvořily neutrální pozadí pro centrální veřejný prostor a okolní botanické expozice. Na objektech i okolních plochách jsou použity přírodní materiály – dřevo (sibiřský modřín), kámen, sklo, hliník, nerez.

K multifunkčnímu sálu přiléhá vodní plocha, které je součástí klidové zóny botanické zahrady. Zeleň obklopující nové objekty je již součástí expozic a doplňuje kompozici formou ploch, struktur, textur a barev. Jsou zde navrženy jak domácí, tak introdukované druhy rostlin.

Celý areál demonstruje soudobé ekologicky šetrné přístupy k přírodnímu prostředí a moderní ekologickou architekturu. Objekty jsou provozně velmi úsporné, uživatelsky přívětivé a dlouhodobě udržitelné. Větrání je zajištěno primárně přirozené – okny, v nezbytně nutných případech nuceně s potřebnou úpravou kvality přiváděného vzduchu (rekuperací). Objekty jsou vytápěny kombinací tradičních zdrojů (plynový kotel) a nízkoteplotních zdrojů (tepelná čerpadla).

Na střechách jsou umístěny fotovoltaické panely pro ohřev teplé vody nebo dodávání energie do sítě. Umělé osvětlení zajišťují úsporné LED zdroje. Dešťová kanalizace je dvojí – voda ze střech je sváděna do akumulační nádrže a slouží pro doplňování vody v jezírku, dešťové vody z komunikace a zpevněných ploch jsou vsakovány. Splaškové odpadní vody jsou odváděny kanalizací na městskou čistírnu odpadních vod.
Autorská zpráva
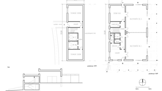
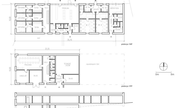
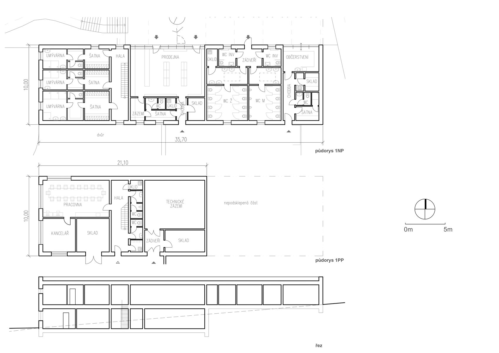
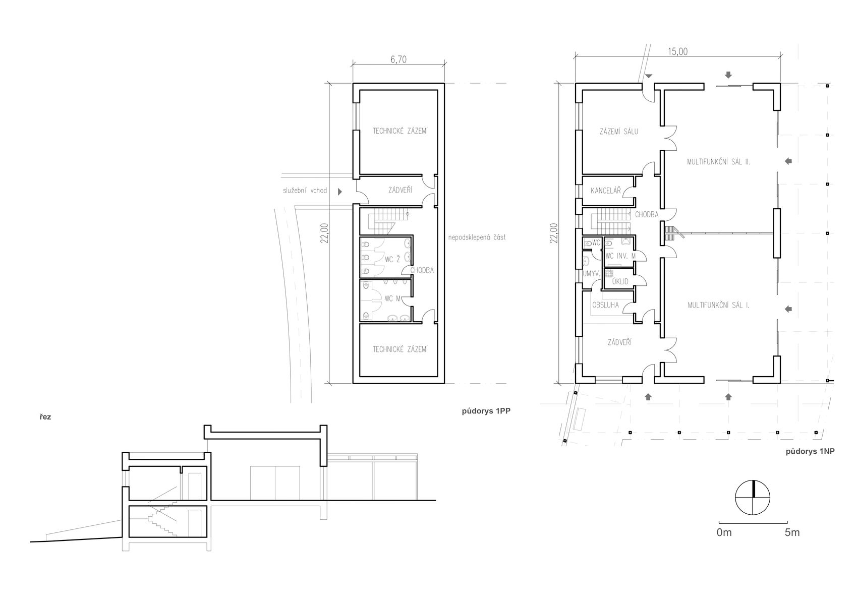
Místo stavby: Nádvorní, Praha-Troja
Autoři: AND / Vratislav Danda, Radovan Kupka
Spolupráce: Milan Pytloun, Jakub Touš, Petr Žalský, Tomáš Křivka
Investor: Botanická zahrada hl. m. Prahy
Náklady: 80 mil. Kč
Zastavěná plocha: 695 m²
Užitná plocha: 840 m²
Obestavěný prostor: 4565 m3
Projekt: 2018–2020
Realizace: 2021–2023
Foto: archiv ateliéru AND























Pěkné, designové a navíc z kvalitního materiálu, palec nahoru!
Perfektní rekonstrukce, vypadá to krásně a bude to mít i lepší využití..
Architektura moje neumožděná studia.
Architektura je moje hoby a neskutečná láska.
Pánové, děláte mi radost. Světlíky, jako na Vinohradech a split level v garážích, jako pod Dostavbou národního divadla. Děkuji