Nová škola v Chýni podle návrhu studia OVA vychází ze současného přístupu k výuce, který klade důraz na rozmanité formy učení i kvalitu prostředí. Společné prostory, vnitřní i vnější, mají při vzdělávání stejně významnou roli jako tradiční učebny.

Neformální výuka může probíhat v zálivech na chodbách, klidná zákoutí slouží ke komorním rozhovorům. Studovny poskytují různé možnosti sezení podporující soustředění. Střecha je určená pro hru i výuku. Škola tak nabízí bohatý vnitřní svět, ve kterém si své místo najde začínající malý školák i náctiletý student. Budova školy slouží nejen základní školní výuce, ale její program je otevřen v odpoledním čase kroužkům pro školáky i edukačním a sportovním programům pro dospělé.

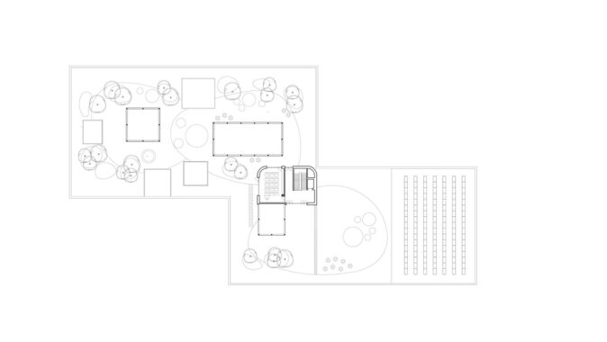
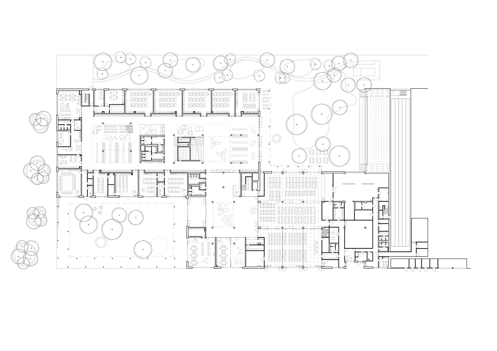
Svažitý pozemek podélného tvaru leží nedaleko centra Chýně, rychle rostoucí obce blízko Prahy. V jeho okolí se předpokládá významný rozvoj rezidenční výstavby. Nová škola může stát delší dobu osamocená na poli, na okraji lokality, po čase se však stane součástí zastavěné struktury obce. Jedním z cílů bylo zvládnout obě polohy a nabídnout místu jasně definovaný, srozumitelný veřejný prostor.
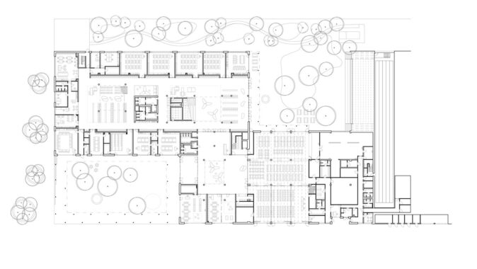
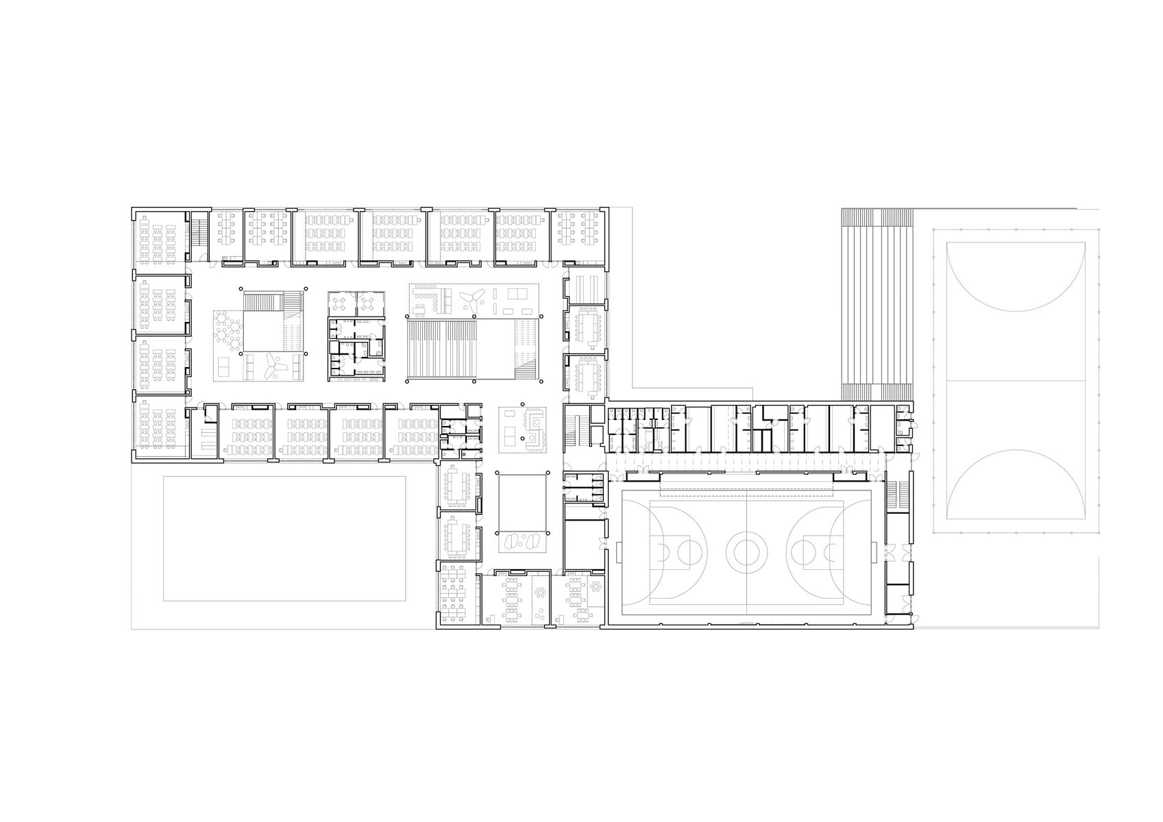
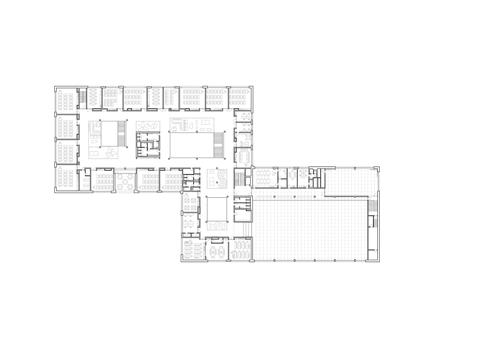
Dvěma dvorům, veřejnému a soukromému, odpovídá základní rozvržení domu. Severní část je definována učebnami a hlavním pobytovým prostorem, jižní část patří sportu, aule a potřebnému zázemím.

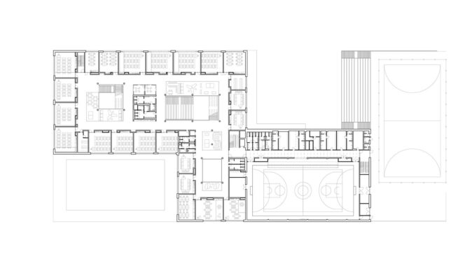
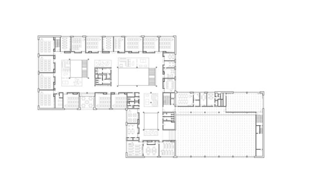
Budova má tři podlaží a její výškové rozvržení využívá sklonu pozemku. Na terén je možné vstoupit nejen z přízemí při příchodu z centra obce, ale i z prvního patra, na které navazuje sportovní areál. Ve třetím podlaží je venkovní učebna a z každého podlaží je tak umožněn přímý přístup do venkovního prostředí. Střecha poskytuje pobytovou plochu, učebny a záhony pro pěstitelské práce. Školu lze provozně rozdělit na dva základní režimy. Dopolední výukový režim využívá plnou kapacitu budovy a škola je přístupná jako celek. V odpoledním zájmovém režimu je pro veřejnost zpřístupněna pouze část budovy – prostory pro kroužky, knihovna, tělocvična a případné kulturní akce pořádané v aule spojené s jídelnou.

Areál školy je na svažitém pozemku členěn do dvou výškových úrovní: první nadzemní podlaží školy s oběma dvory a o jedno podlaží výše situovaný sportovní areál. Sportovní areál obsahuje několik hřišť. Atletický ovál s integrovaným fotbalovým hřištěm má po své východní straně zázemí, atletický tunel a prostor pro občerstvení. Diváci mohou sledovat dění nejen z lavičky v úrovni oválu, ale také ze střechy zázemí, kde je umístěna tribuna. Mezi školou a oválem se nachází druhé, tréninkové hřiště, které je přístupné i o přestávkách v čase výuky.

Vstupní dvůr je prostorem pro školáky, pro návštěvníky zájmových programů i pro veřejnost. V prostoru dvora jsou navržena „válecí“ pódia pro teenagery a sportovní povrchy pro malé školáky. Druhý dvůr obsahuje venkovní jídelní stoly, které rozšiřují kapacitu jídelny. Dále nabízí prostor pro hru o velké přestávce i ve volných chvílích mezi odpoledními aktivitami. Jsou zde umístěny prolézačky, měkké povrchy pro poskakování a běh, lanová pyramida a další vybavení. Do vnitřního dvora je možné vstoupit ze školní haly, z jídelny i z cvičné kuchyňky, takže jej mohou děti i pedagogové snadno využívat.

Škola je navržena v energetickém standardu A. Vytápí se tepelnými čerpadly, všechny prostory mají řízenou výměnu vzduchu, ale každý z vnitřních pobytových prostorů má také možnost přirozeně větrat okny. K celkové energetické bilanci přispívá fotovoltaika na střechách obou budov, školy i sportovního zázemí, vnější stínění oken a kvalitní vrstva zateplení. Konstrukce budovy je železobetonová, vyzdívaná a přispívá tak k celkové tepelné akumulaci stavby. Vnější plášť je obložen keramickými tvarovkami. Střešní markýzy u fasády a hnízda se stromy brání vzniku efektu „tepelného ostrova“.
Autorská zpráva
Místo stavby: Pražská 1111, 253 03 Chýně
Autoři: OVA / Jiří Opočenský, Štěpán Valouch, Ondřej Králík
Design tým: Norbert Lichý, Michaela Křižáková, Barbora Juríčková, Romana Bedrunková, Jakub Masný, Jan Hájek
Investor: Svazek obcí Chýně – Hostivice
Náklady: 1,05 mld. Kč
Projekt: 2021–2023
Realizace: 2025
Zastavěná plocha: 5 175 m²
Hrubá podlažní plocha: 13 170 m²
Plocha pozemku: 61 670 m²
Foto: Alex Shoots Buildings




































Povedený projekt 👍 Takových realizací by mohlo vznikat víc.
Kaskády Hranice jsou skvělým příkladem toho, že i bytová výstavba může mít kvalitní architekturu, promyšlený urbanismus a příjemný prostor pro…
Architektura musí souviset s místem, nikoli místo s architekturou. Proto jakékoli stavby umožňující realizaci na různých místech nejsou ARCHITEKTUROU.
Z mého pohledu je fajn vidět, jak se i u tak „běžné“ věci, jako jsou překlady, řeší systémovost a přesnost!
Praktické řešení, hlavně z pohledu rychlosti výstavby a přesnosti👍 U těchto systémových prvků dává smysl, že zjednodušují realizaci a pomáhají…