Nové objekty pro návštěvníky přehrady od studia Prokš Přikryl architekti navazují na zázemí U Prutu z roku 2023. Nyní prošly úpravami i lokality U Hráze a U Základny – všechny tři vycházejí ze záměru z roku 2020 a vyzvané architektonické soutěže. Jednotný princip je základním spojovacím článkem jinak rozdílných míst.

Stejně jako ostatní navržené objekty, i tyto čerpají ze společných východisek:
– stavby jsou lineární, podélně orientované, přimknuté ke stávajícím cestám
– tmavé fasády kontrastují se světlým vnitřkem a jsou uzavíratelné lámacími dveřmi
– z dálky je díky tomu rozpoznatelné, zda je otevřeno či zavřeno
– mají srozumitelnou dřevěnou konstrukci s krytým zápražím
– vůči vzrostlým stromům vytvářejí protipól svojí horizontální hmotou

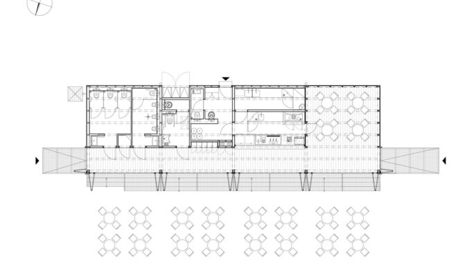
Revitalizace v lokalitě „U Hráze“ měla za cíl nahradit a funkčně spojit letitý kiosek a opodál stojící veřejné WC. Objekt zázemí volně pluje v březovém háji v nové mlatové ploše a s výhodou tak využívá více směrů přístupu i stávajících stromů, které se tím staly součástí celku. Na rozdíl od kiosku „U Prutu“ bude fungovat sezónně. Polovinu ze 4 modulů tvoří kiosek se zázemím a krytým sezením, druhou polovinu veřejné WC. Vše je spojeno do celku krytou a uzavíratelnou pavlačí v čele. Součástí řešení je i nedaleké work-outové hřiště mezi stromy (v místě původních WC) a piknikové místo s grilem.

Na protějším břehu se nachází lokalita „U Základny“. Cílem úprav bylo nahrazení dosloužilých veřejných WC a oprava dětského hřiště. Hřiště je nově vymezeno a zakončeno altánem, který nabízí stín a zpestří pískovou plochu o další prostor. Celá lokalita je přirozeně vysvahovaná směrem k vodní hladině. Tam, kde bylo potřeba zpevnit hranu nebo vytvořit opěrnou zeď, byly použity dubové pražce. Z pražců je vytvořen také lem kolem dětského hřiště. Altán i objekt WC vycházejí ze stejné logiky jako ostatní dřevostavby. Natočením vůči sobě a vzájemným výškovým posunem definují řešené území.
Autorská zpráva
Místo: Jablonec nad Nisou, okolí přehrady Mšeno
Investor: statutární město Jablonec nad Nisou
Autoři: Martin Prokš, Marek Přikryl / Prokš Přikryl architekti
Profese: František Denk (statika), Jan Trafina (PBŘ), Milan Maštálka (ZTI), Michal Hornych (elektro)
Soutěž: 2020
Projekt: 2021–2023
Realizace: 2024
Zastavěná plocha objektů: 125 m2 (U Hráze), 65 m2 (WC U Základny), 35 m2 (Altán)
Obestavěný prostor: 490 m3 (U Hráze), 290 m3 (WC U Základny), 140 m3 (Altán)
Hlavní dodavatel: RD Rýmařov
Foto: Petr Polák








































Do 4/1 jsou Mockerovy domy přístupné v rámci akce Vánoční putování Pražským hradem https://www.hrad.cz/cs/kultura-na-hrade/program/vanocni-putovani-prazskym-hradem-1-13462
Hodně mě překvapilo, že je v areálu Pražského hrad tahle zanedbaný dvorek. Na leteckých snímcích to vypadá líp, jako že…
Díky za odkaz, opravdu zajímavý projekt! Rekonstrukce za plného provozu je vždycky náročná, a je skvělé vidět, jak se to…
Ano, továrna v Pardubicích je velmi zajímavá. Kromě jiného rekonstrukce probíhala za plného provozu. Přikládám odkaz na celou stavbu, je…
V rámci Prahy jde o jednu z nejhlučnějších lokalit, které lze v centru najít. ideální pro drahé kanceláře a bydlení.…