Adaptaci bývalé přádelny v Kežmarku navrhli BEEF ARCHITEKTI jako proměnu národní kulturní památky v nové výrobní a administrativní zázemí výrobce alkoholu, doplněné o veřejné funkce. Projekt propojuje industriální dědictví s novou vrstvou architektury a otevírá areál veřejnosti.

Areál bývalé přádelny v Kežmarku, založené roku 1860 Karolem Weinem, patřil k nejmodernějším továrnám v Uhersku a významným podnikům regionu. Výroba zde probíhala do roku 1946, poté závod fungoval jako Tatraľan – mechanická přádelna a tkalcovna lnu – a zaměstnával až 2 500 pracovníků. Po roce 1989 byla výroba zastavena. Hlavní výrobní objekt je dnes národní kulturní památkou.

Při převzetí současným investorem byl areál v havarijním stavu. Pod budovou protéká potok a část objektu je založena na dřevěných pilotách, které se postupně rozkládaly. Vlhkost a opakované zatékání poškodily zdivo, podlahy i stropy, proto bylo nutné provést rozsáhlá sanační a statická opatření.

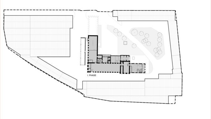
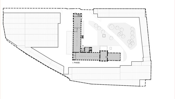
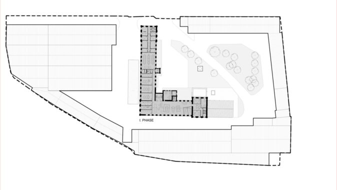
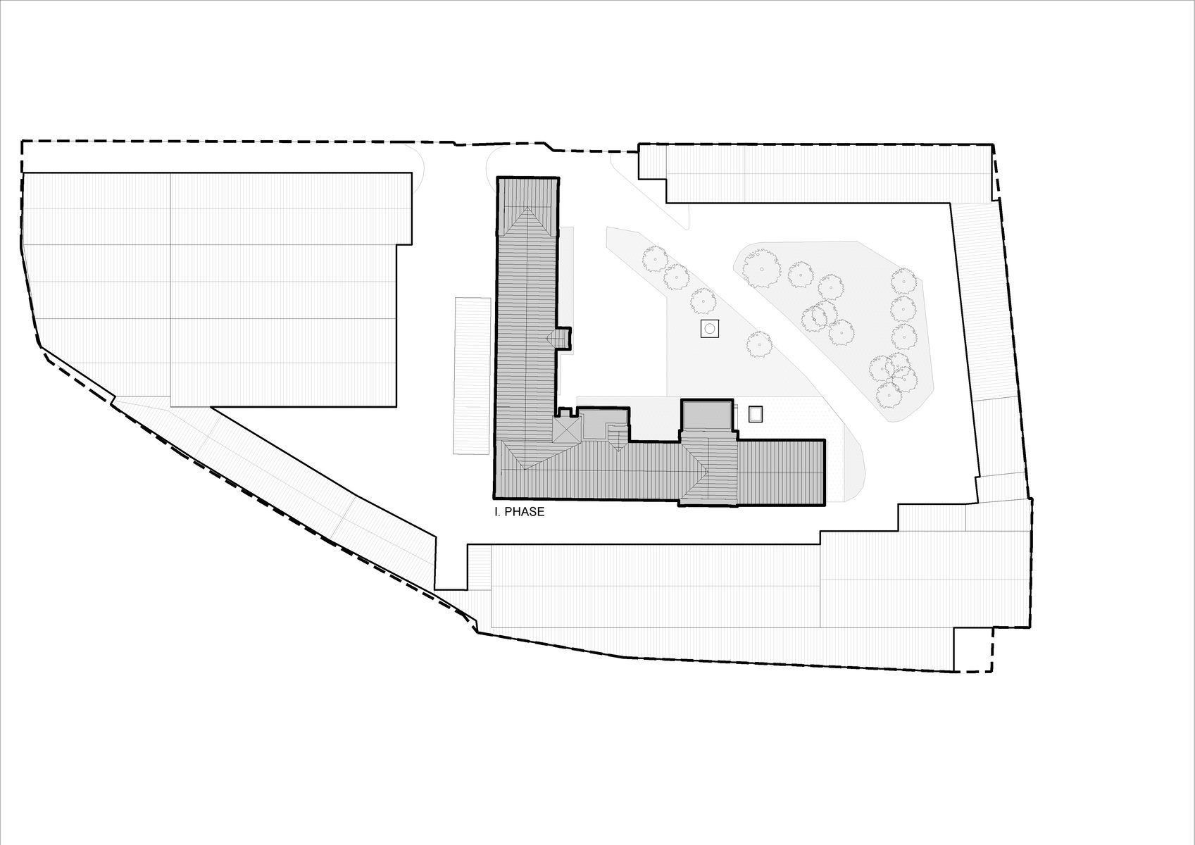
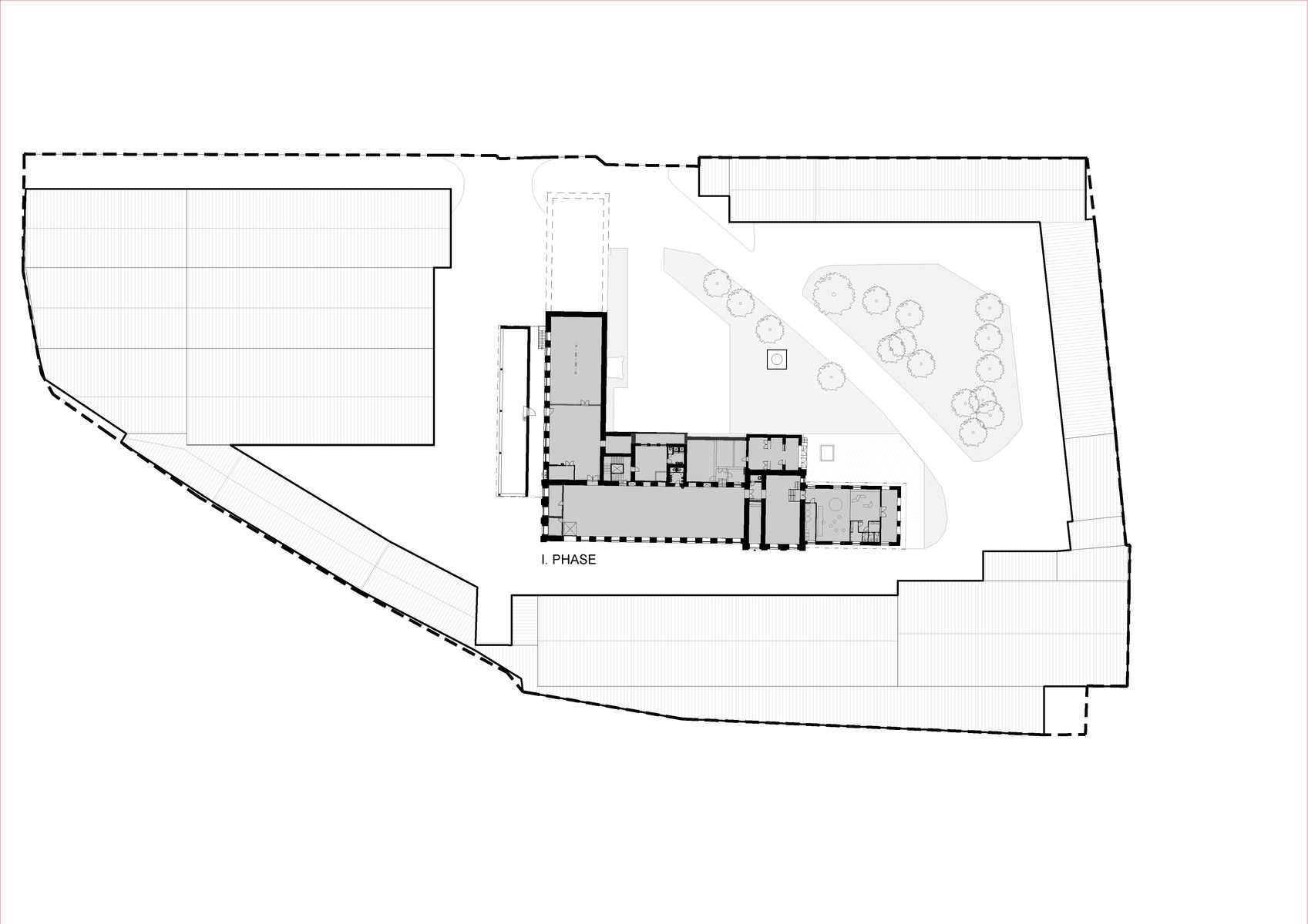
V roce 2019 byla vyhlášena architektonická soutěž na vytvoření moderního výrobního a administrativního zázemí pro výrobce alkoholu integrovaného do historické budovy. Návrh vychází z respektu k industriálnímu charakteru objektu a klade důraz na propojení historické vrstvy s novou funkcí i na zpřístupnění areálu veřejnosti. Přádelna se nachází v průmyslové zóně mimo kompaktní městskou strukturu; projekt ji proto chápe jako potenciální nový urbánní uzel.

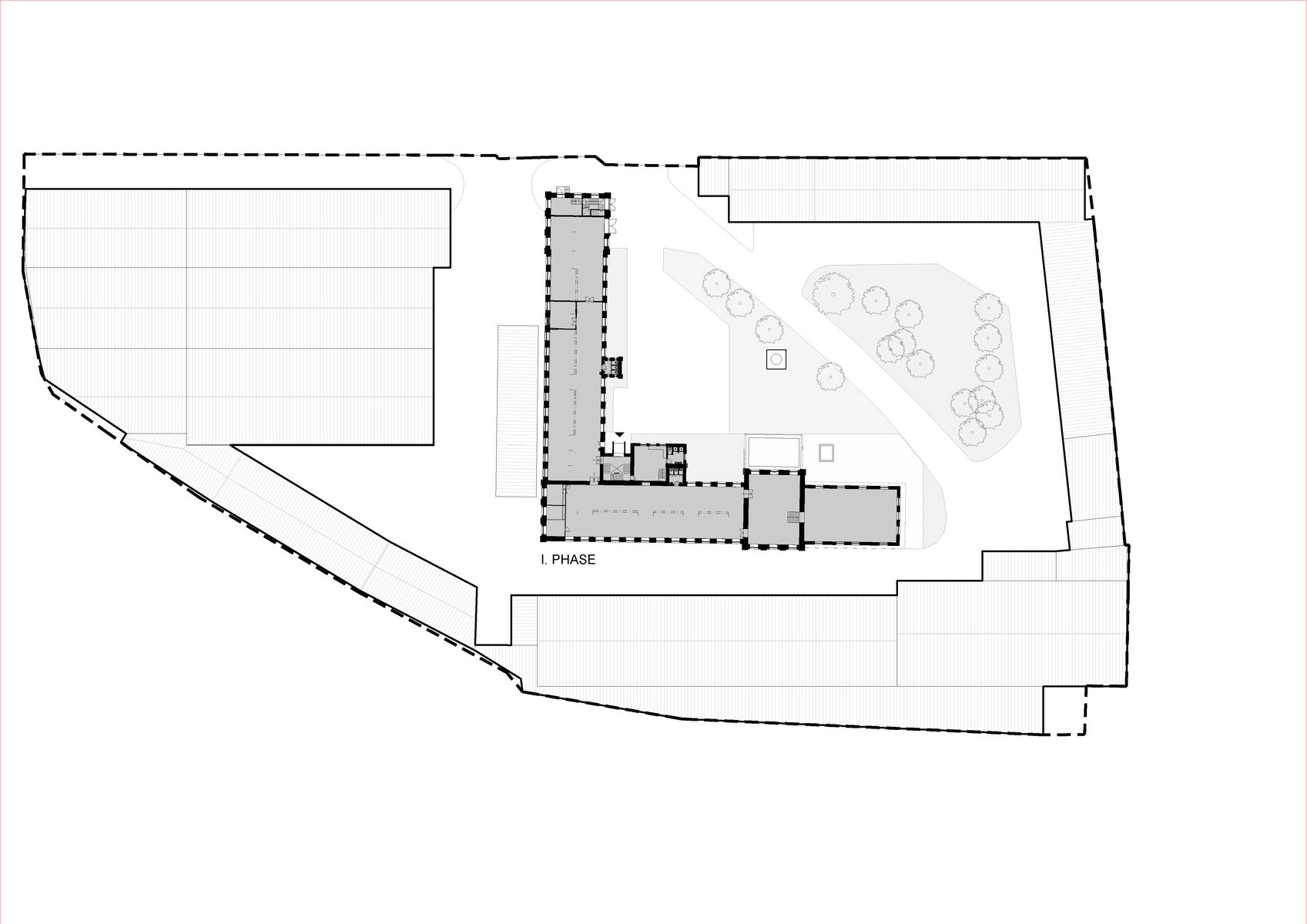
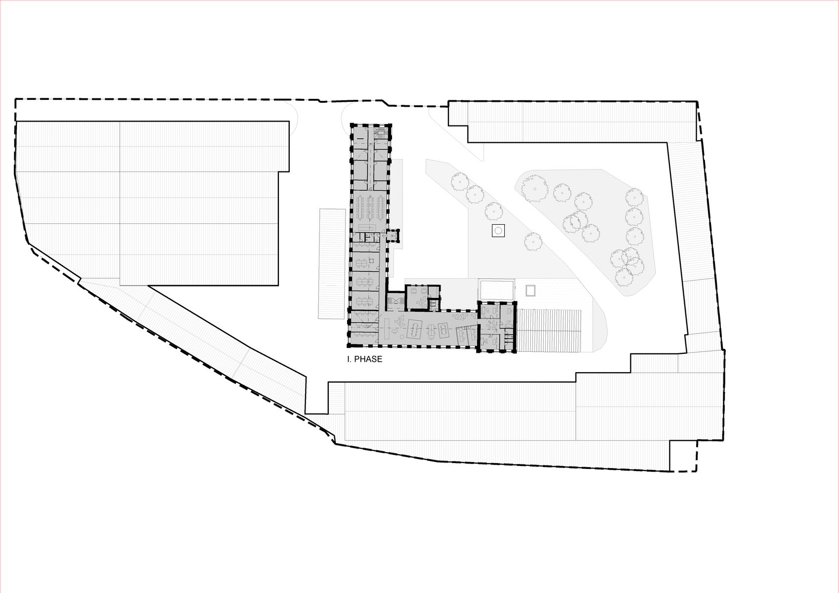
Součástí návrhu je vytvoření veřejného prostoru, který přirozeně propojuje jednotlivé části areálu a otevírá historickou budovu obyvatelům i návštěvníkům. Program kombinuje výrobní, administrativní, kulturní a společenské funkce. V přízemí nové dostavby vznikne kavárna, podniková prodejna a muzeum věnované historii zpracování lnu. První, již dokončená etapa obnovy zahrnovala rekonstrukci původní budovy a adaptaci prostor pro výrobu, administrativu, degustační prostory a apartmány pro hosty.

Projekt vznikal v úzké spolupráci s památkovým úřadem. Důraz byl kladen na zachování autentických detailů – od litinových výztuží s motivem lněného květu až po cihlový komín, který se má stát vyhlídkou s panoramatickým výhledem na Tatry. Odstraněny byly pozdější přístavby, zejména kotelna, které narušovaly proporce a siluetu původního objektu, a budově byl navrácen její původní objem. Jedna z přístaveb zůstala z provozních důvodů jako zázemí pro zaměstnance a byla vizuálně oddělena od historické hmoty.

Materiálové řešení pracuje se střídmou paletou. Obnažená původní konstrukce s litinovými sloupy je doplněna terakotovou dlažbou a světlými omítkami; nové vrstvy jsou záměrně neutrální, aby vynikla původní konstrukce a její patina. Interiér zachovává čitelnost původní statické logiky – litinové sloupy, cihlové klenby a poloklenby zůstaly odkryté, materiálová vrstva byla očištěna a nové prvky (podlahy, zábradlí, svítidla) jsou řešeny jednoduše.

Z technického hlediska bylo zásadní řešení protipožárních opatření vzhledem k přítomnosti lihu a skladových prostor. Veškeré zásahy byly navrženy tak, aby minimalizovaly vizuální dopad na architekturu. Obnova přináší objektu novou funkci bez ztráty identity a doplňuje jej o veřejný prostor, který v této části Kežmarku dosud chyběl. Projekt tak představuje nejen záchranu památky, ale i její aktivní začlenění do současného městského života.
Autorská zpráva, přeloženo a kráceno
Místo stavby: Pradiareň, Kežmarok, Slovensko
Autoři: BEEF ARCHITEKTI / Rado Buzinkay, Andrej Ferenčík
Spoluautor: Lukáš Valenčin
Investor: Karloff
Projekt: 1. fáze 2022, 2. fáze 2025–2026
Realizace: 1. fáze 2024
Užitná plocha: 4 622 m²
Plocha pozemku: 12 199 m²
Foto: Jakub Čaprnka




































Povedený projekt 👍 Takových realizací by mohlo vznikat víc.
Kaskády Hranice jsou skvělým příkladem toho, že i bytová výstavba může mít kvalitní architekturu, promyšlený urbanismus a příjemný prostor pro…
Architektura musí souviset s místem, nikoli místo s architekturou. Proto jakékoli stavby umožňující realizaci na různých místech nejsou ARCHITEKTUROU.
Z mého pohledu je fajn vidět, jak se i u tak „běžné“ věci, jako jsou překlady, řeší systémovost a přesnost!
Praktické řešení, hlavně z pohledu rychlosti výstavby a přesnosti👍 U těchto systémových prvků dává smysl, že zjednodušují realizaci a pomáhají…