Původní výrobní budova, postavená v 90. letech, byla nejstarší součástí areálu továrny v Pardubicích. V roce 2020 se investor rozhodl pro její rekonstrukci a přístavbu. Výsledkem je nová, provozně fungující stavba s jednotným výrazem od studia Bíza architekti.

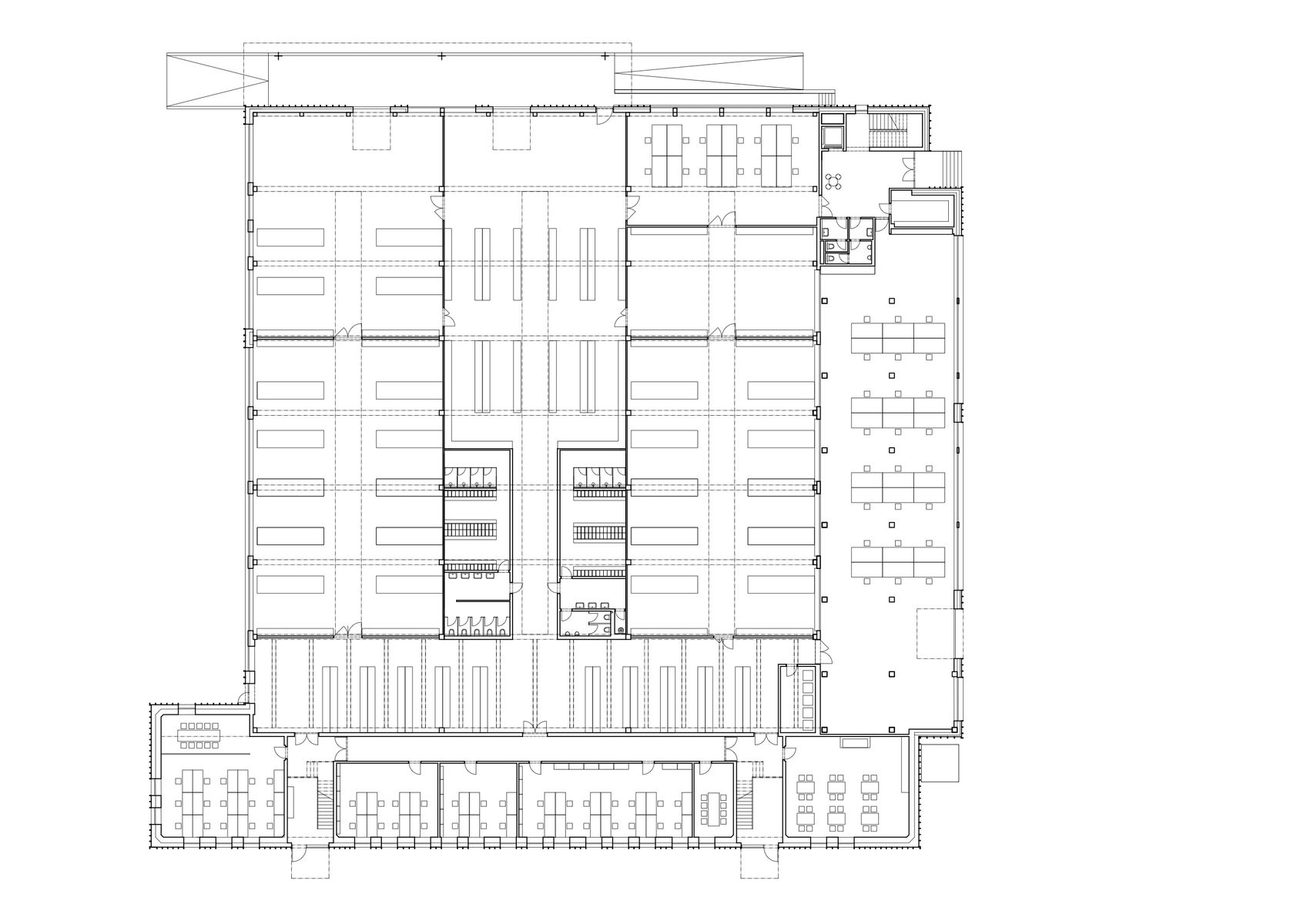
Společnost Era, a.s. je výrobcem systémů zajišťující bezpečnost letového provozu, a to pro vojenské i civilní účely. Její výrobní a administrativní areál se nachází v tradiční průmyslové části Pardubic. V areálu postupně vedle výrobní a administrativní budovy vznikly další objekty. Nejprve dvě montážní haly, pak byla v roce 2017 v areálu dokončena nová administrativní budova (Jiří Bíza, Ondřej Hilský, Pavel Táborský).

Výrobní kapacity areálu přestávaly stačit a stav 30 let staré budovy se zhoršoval. O rekonstrukci a přístavbě haly se proto uvažovalo delší dobu. Bezprostředně po dokončení administrativní budovy v roce 2017 se její autoři zabývali možnostmi rozšíření výrobních prostor formou přístaveb a nástavbou stávajícího administrativního objektu. Tato cesta narážela na limity areálu a zároveň se ukázala jako velmi nákladná.

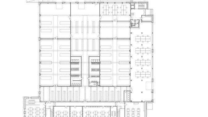
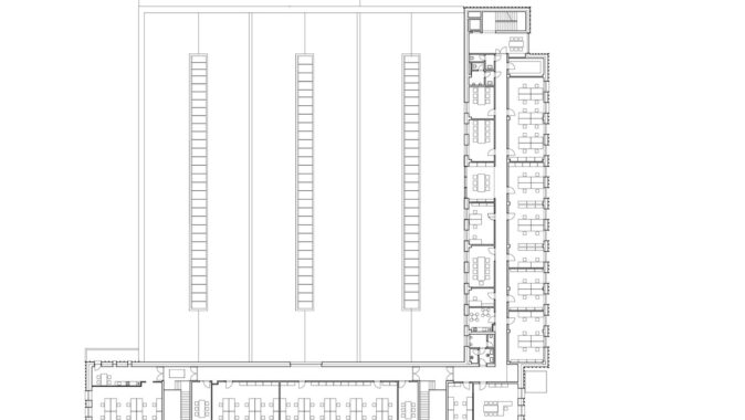
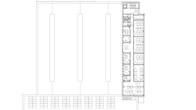
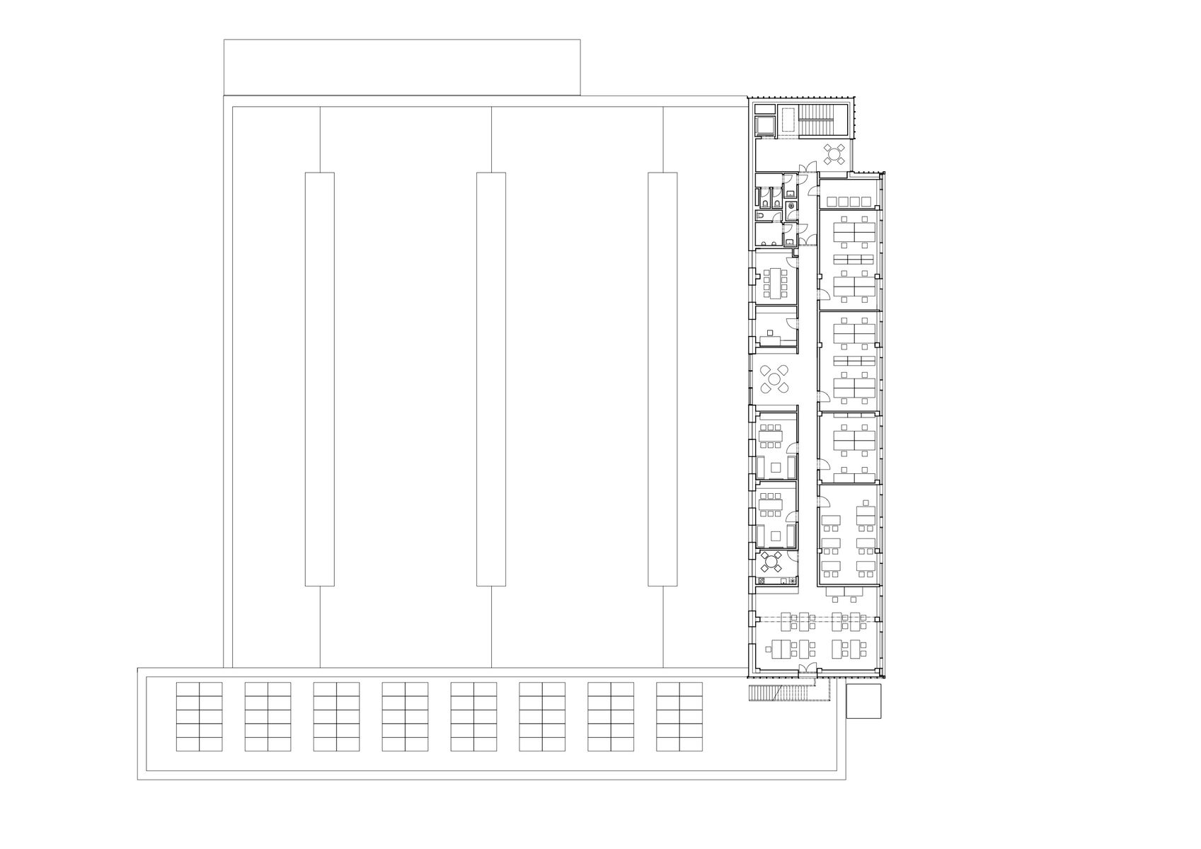
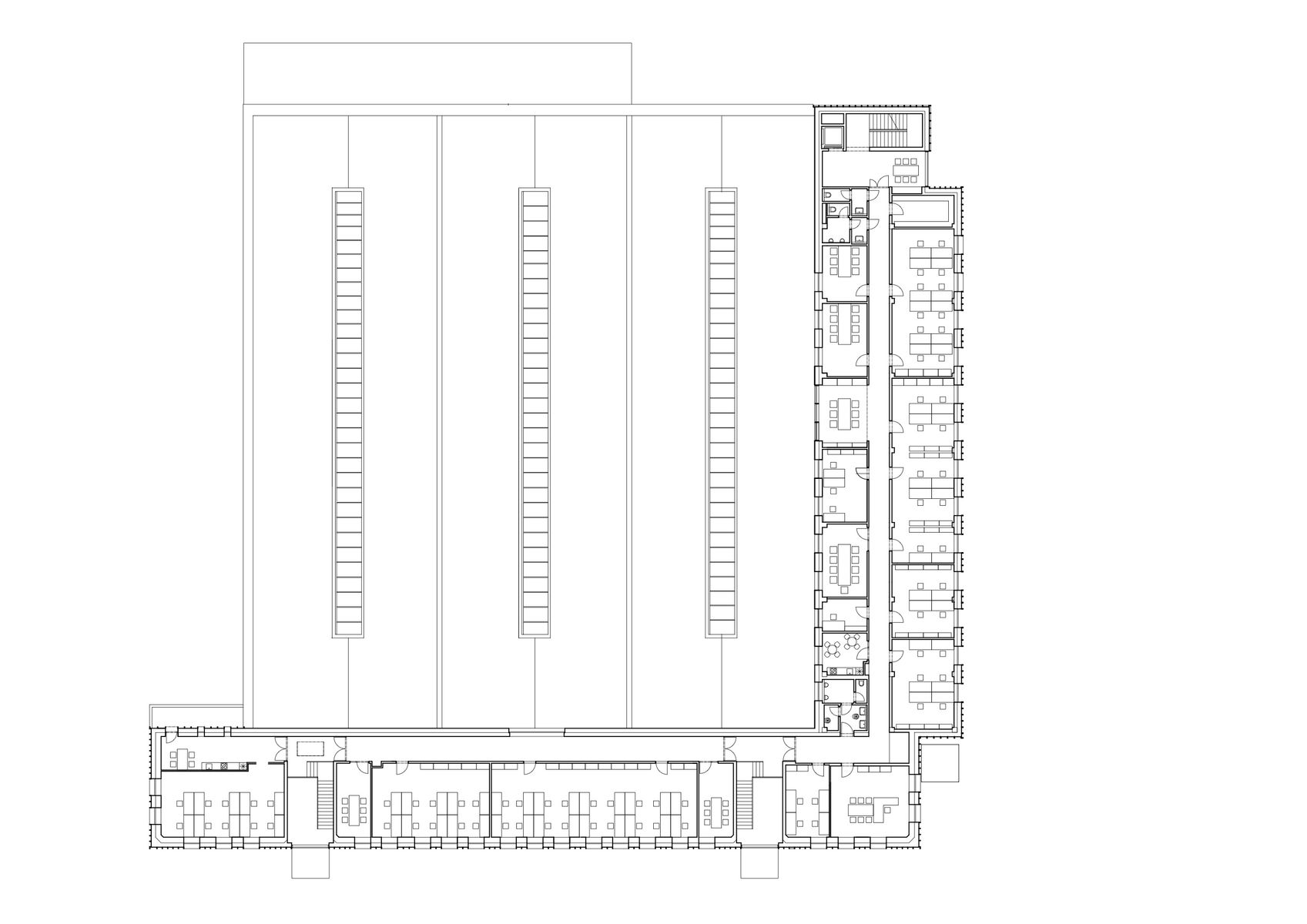
Podmínkou rekonstrukce a přístavby bylo nepřerušení výroby během celého stavebního procesu. Nebylo tak možné celý proces zjednodušit odstraněním stávající budovy a stavbou na zelené louce. Jako první bylo na severní straně stávající budovy přistavěno třípodlažní kancelářské křídlo. Následně prošla postupnou rekonstrukcí trojlodní výrobní hala. Z důvodu nepřerušení, ale také postupnému nárůstu výroby, byly jednotlivé kroky rekonstrukce pečlivě plánovány.

Původní objekt byl konstrukčně řešen jako montovaný skelet, přístavba je skeletová, monolitická. Součástí stavby a výškovou dominantou je stožár sloužící pro testování technologií. Stavba dostala nový obvodový plášť. Členění pláště je inspirováno příhradovými konstrukci stožárů používaných pro instalaci technologií. Výrazem objektu se snažíme reflektovat jeho účel.

Celá stavba je opatřena novým obvodovým pláštěm, který oproti původnímu stavu výrazně zlepšuje tepelně technické vlastnosti budovy. Plášť je zvolen jako těžký obvodový. Princip zdi a menších oken je technologicky méně náročný než prosklená fasáda. Pro potřeby snížení energetické spotřeby budovy jsou na střeše osazeny fotovoltaické panely.
Autorská zpráva
Místo stavby: Průmyslová 462, Pardubice
Autoři: Bíza architekti / Jiří Bíza, Tomáš Novotný
Spolupráce: Ondřej Punda, Barbora Skalová, Iva Jeřábková
Investor: ERA
Zastavěná plocha: 3749 m²
Užitná plocha: 4600 m²
Obestavěný prostor: 23 600 m3
Projekt: 2020
Realizace: 2023
Foto: Peter Fabo












































Článek působí docela věcně a snaží se jít víc po principu než jen po marketingu, což je za mě plus…
Chybí schody z levého břehu na most, takže s Chuchle přijedeme na Lihovar , musíme přejít Strakonickou a pak teprve…
Dobrý den,žádám o informace o novinkách. J.J.Kubát
V jednoduchosti se skrývá přirozená krása, která svým provedením evokuje využití pro společenská setkávání odborné i laické veřejnosti k obdivování…
Cihla nabízí skvělé izolační vlastnosti a dlouhou životnost bez potřeby zateplení. Nicméně vždy záleží na konkrétním projektu a požadavcích na…