Areál se skládá ze čtyř budov a z důvodů financování se dělí na dvě samostatné investiční akce. První je Aplikační centrum BALUO u Fakulty tělesné kultury UP, druhou akcí je Centrum kinantropologického výzkumu, které se bude realizovat v následujících letech. Nový areál bude tedy tvořit jedna rekonstruovaná budova (bývalá prádelna – budova A, která zatím není realizovaná) a tři nové objekty, které na ni navazují.
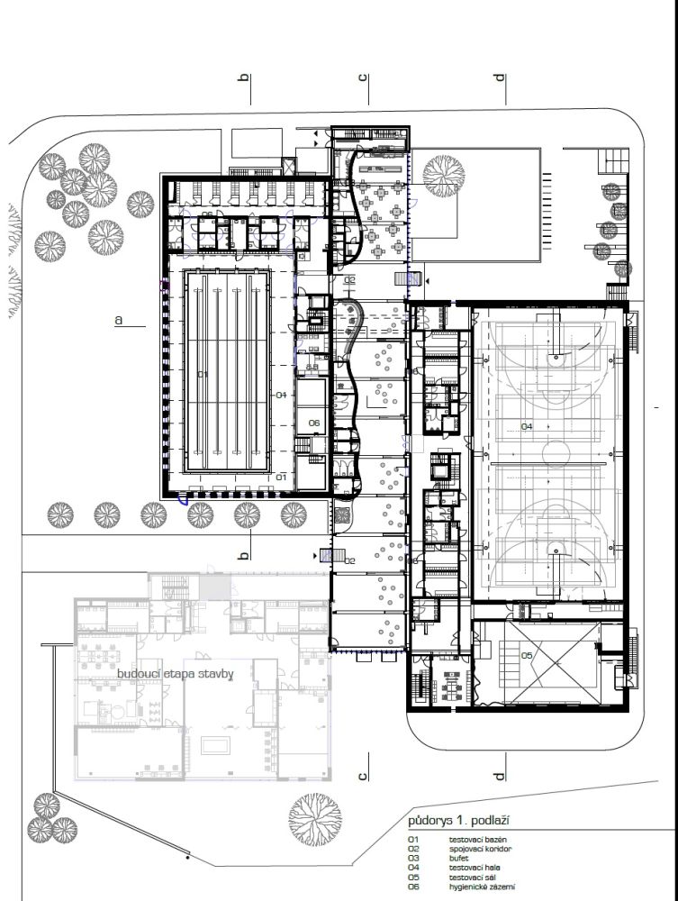
První z prezentovaných budov je hlavní vstupní objekt do komplexu, byť byl realizován nejpozději. Do tohoto spojovacího koridoru vedou dva vstupy, a to od stávajících budov fakulty na východní straně a od parkoviště na západu. Z interiéru jsou pak přístupné navazující objekty C a D.
V přízemí stavby se na severní straně nachází bufet, mezi oběma vstupy do objektů C a D je v organicky tvarované hmotě obložené dřevěnými lamelami umístěna recepce, zbývající plocha slouží jako respirium. Druhé podlaží je rozděleno lehkými prosklenými akustickými příčkami na čtyři cvičební sály s využitím typu spinning, jóga, lehké stroje, meditace. V jižním konci traktu je dětský koutek. Prosvětlení je zajištěno velkoformátovými prosklenými obvodovými stěnami. Část objektu je na jižní straně podsklepena. V těchto prostorech je umístěno technické zázemí.
Na východní straně navazuje na tuto budovu testovací hala, v níž je tělocvična určená pro trénink míčových her. Využívá se tu ojedinělá technologie, kdy lze pomocí snímačů umístěných na obvodových stěnách monitorovat pohyb každého sportovce a analyzovat tak nejrůznější parametry jeho pohybu. Kromě toho je tu také menší testovací gymnastický sál, který je mimo jiné vybaven lezeckou stěnou. Podél velké haly je trojpodlažní trakt obsahující místnosti hygienického zázemí pro sportovní halu v přízemí. Ve vyšších patrech jsou prototypové dílny, testovací laboratoře a pracovny pro výzkum. Jedna z místností musela být navržena s výškou přes dvě podlaží, aby zde bylo možné umístit lyžařský trenažér opatřený speciálním kobercem pro zajištění správného odporu sjezdovky. Příkrost i rychlost jízdy lze dle potřeby nastavovat. Nad menší testovací halou je ve třetím podlaží umístěno administrativní jádro pro správu objektů.
Na západní straně spojovacího koridoru vstupní budovy je v provozní návaznosti objekt, jehož centrem je hala, ve které je plavecký testovací bazén o délce 25 m se čtyřmi drahami a dva menší testovací bazénky. Jeden má funkci plaveckého tunelu a regulovatelným protiproudem, druhý pak funkci rekondiční s vyšší teplotou a bublery. Všechny tři bazény jsou opatřeny okny pod hladinou vody, aby bylo možné pozorovat pohyby trénované osoby. Na tuto prostoru pak opět navazují místnosti hygienického zázemí a šaten. V suterénu je technické zázemí a skladové prostory pro plavecké pomůcky. Druhé podlaží se rozkládá jen přes část zastavěné plochy stavby. Obsahuje strojovnu vzduchotechniky a dvě místnosti pro plaveckou školu a plaveckou laboratoř, které obě mají výhled do bazénové haly.
Architektonicko-výtvarné
řešení
Jednotlivé budovy tvoří čtyři jednoduché kvádry, které se liší provozním využitím a také svými hmotami. Z venkovní strany je jejich odlišnost zdůrazněna materiálem použitým na opláštění – kvádry tedy vytváří čitelnou kompozici.
Vstupní objekt je z velké části uzavřen mezi dalšími dvěma budovami, většina zbývajících fasád je tedy řešená jako prosklená pro prosvětlení interiéru. Prosklení je členěno na úzké vertikály s hliníkovými stínícími lamelami. Na severní straně jsou prostory se zázemím uzavřeny plnými stěnami, které zvenku skrývá červená fasáda.
Betonový kvádr testovací haly má obě kratší fasády prolomené na celou výšku stavby dvěma prosklenými svislými prasklinami. Na jižní straně je doplňuje řada úzkých oken prosvětlujících pracovny administrativního zázemí. Plochy fasád z pohledového betonu doplňují plastové horolezecké chyty. Ty mají funkci estetickou, ale na vybraných místech mohou být skutečně využity k lezení.
Objekt s bazény prosvětlují lineární svislá okna, která pocitově interiéru dodávají potřebnou výšku. Na fasádě je dřevěný obklad, neboť dřevo je materiál související s vodou, s loděmi, s přírodním koupáním. Dřevo evokuje ve hmotě bazénu pocit plovárny v přírodě.
Také v interiérech se opakují shodné materiály: pohledový beton přiznaný ve své surové formě, dřevo a sklo, jak čiré, tak mléčné v případě obkladů.
Konstrukční řešení
Všechny objekty jsou řešeny podobně: založeny byly pomocí vrtaných velkoprůměrových pilot, které jsou ve zhlaví doplněny o základové pasy a základovou desku. Nosné konstrukce tvoří železobetonové monolitické stěny a stropy, které jsou v místě velkých rozponů doplněny o ocelobetonové průvlaky a sloupy. Zastřešení hal v nejvyšších patrech jsou u menších rozponů tvořeny železobetonovými deskami, u velkých rozponů pak ocelovými příhradovými konstrukcemi. Všechny objekty jsou od sebe navzájem dilatovány.
Jednotlivé budovy tvoří čtyři jednoduché kvádry, které se liší provozním využitím a také svými hmotami. Z venkovní strany je jejich odlišnost zdůrazněna materiálem použitým na opláštění – kvádry tedy vytváří čitelnou kompozici.
Vstupní objekt je z velké části uzavřen mezi dalšími dvěma budovami, většina zbývajících fasád je tedy řešená jako prosklená pro prosvětlení interiéru. Prosklení je členěno na úzké vertikály s hliníkovými stínícími lamelami. Na severní straně jsou prostory se zázemím uzavřeny plnými stěnami, které zvenku skrývá červená fasáda.
Betonový kvádr testovací haly má obě kratší fasády prolomené na celou výšku stavby dvěma prosklenými svislými prasklinami. Na jižní straně je doplňuje řada úzkých oken prosvětlujících pracovny administrativního zázemí. Plochy fasád z pohledového betonu doplňují plastové horolezecké chyty. Ty mají funkci estetickou, ale na vybraných místech mohou být skutečně využity k lezení.
Objekt s bazény prosvětlují lineární svislá okna, která pocitově interiéru dodávají potřebnou výšku. Na fasádě je dřevěný obklad, neboť dřevo je materiál související s vodou, s loděmi, s přírodním koupáním. Dřevo evokuje ve hmotě bazénu pocit plovárny v přírodě.
Také v interiérech se opakují shodné materiály: pohledový beton přiznaný ve své surové formě, dřevo a sklo, jak čiré, tak mléčné v případě obkladů.
Konstrukční řešení
Všechny objekty jsou řešeny podobně: založeny byly pomocí vrtaných velkoprůměrových pilot, které jsou ve zhlaví doplněny o základové pasy a základovou desku. Nosné konstrukce tvoří železobetonové monolitické stěny a stropy, které jsou v místě velkých rozponů doplněny o ocelobetonové průvlaky a sloupy. Zastřešení hal v nejvyšších patrech jsou u menších rozponů tvořeny železobetonovými deskami, u velkých rozponů pak ocelovými příhradovými konstrukcemi. Všechny objekty jsou od sebe navzájem dilatovány.
Autorská zpráva
Foto: Lukáš Pelech
Autor: atelier-r, Miroslav Pospíšil; spolupráce Martin Borák, Daria Johanesová, Martin Karlík, Milena Koblihová, Robert Randys
Investor: Univerzita Palackého v Olomouci
Generální dodavatel: GEMO OLOMOUC, spol. s.r.o.
Obestavěný prostor: 38 340 m3
Zastavěná plocha: 3 020m2
Užitná plocha: 5 380 m2
Foto: Lukáš Pelech
Autor: atelier-r, Miroslav Pospíšil; spolupráce Martin Borák, Daria Johanesová, Martin Karlík, Milena Koblihová, Robert Randys
Investor: Univerzita Palackého v Olomouci
Generální dodavatel: GEMO OLOMOUC, spol. s.r.o.
Obestavěný prostor: 38 340 m3
Zastavěná plocha: 3 020m2
Užitná plocha: 5 380 m2












































Souhlasím, akustika se často podceňuje, přitom má velký vliv na celkový komfort bydlení!!!
Zajímavé, že HELUZ pořád tlačí nejen produktové novinky, ale i sdílení zkušeností z praxe 👍 Právě tohle mi dává největší…
Akustika je často podceňovaný, ale zásadní aspekt kvality bydlení... Článek dobře ukazuje, že nejde jen o samotný materiál, ale hlavně…
Oceňuji hlavně důraz na kvalitu provedení, nestačí jen dobrý materiál, ale i správná realizace. V praxi právě detaily často rozhodují…
Skvělý článek o akustické kvalitě staveb, která je často opomíjená, ale velmi důležitá. Systémy Heluz nabízejí dobrá řešení pro zvukovou…