Hasičskou zbrojnici v Dolních Jirčanech navrhlo studio SOA architekti tak, aby tvarem a objemem připomínala typologii venkovských stodol. Sedlová střecha zároveň vytváří vizuální propojení s protilehlou základní školou.

Projekt vytváří půdu pro efektivní fungování dobrovolných hasičů, posilování komunitní soudržnosti a budoucí rozvoj obce. Umístění na obecních pozemcích v severozápadní rozvojové části na okraji obce, s bezprostředním přístupem k dopravní infrastruktuře, zajišťuje hasičům výhodnou polohu pro rychlé a efektivní zásahy. Objekt stojí na téměř trojúhelníkovém pozemku mezi rodinnými domy a základní školou. Jeho tvar a výška byly navrženy tak, aby citlivě reagovaly na okolní zástavbu. Plní tedy nejen funkční, ale i estetickou úlohu – vytváří symbolický přechod mezi charakterem rodinných domů a veřejným rázem školy.

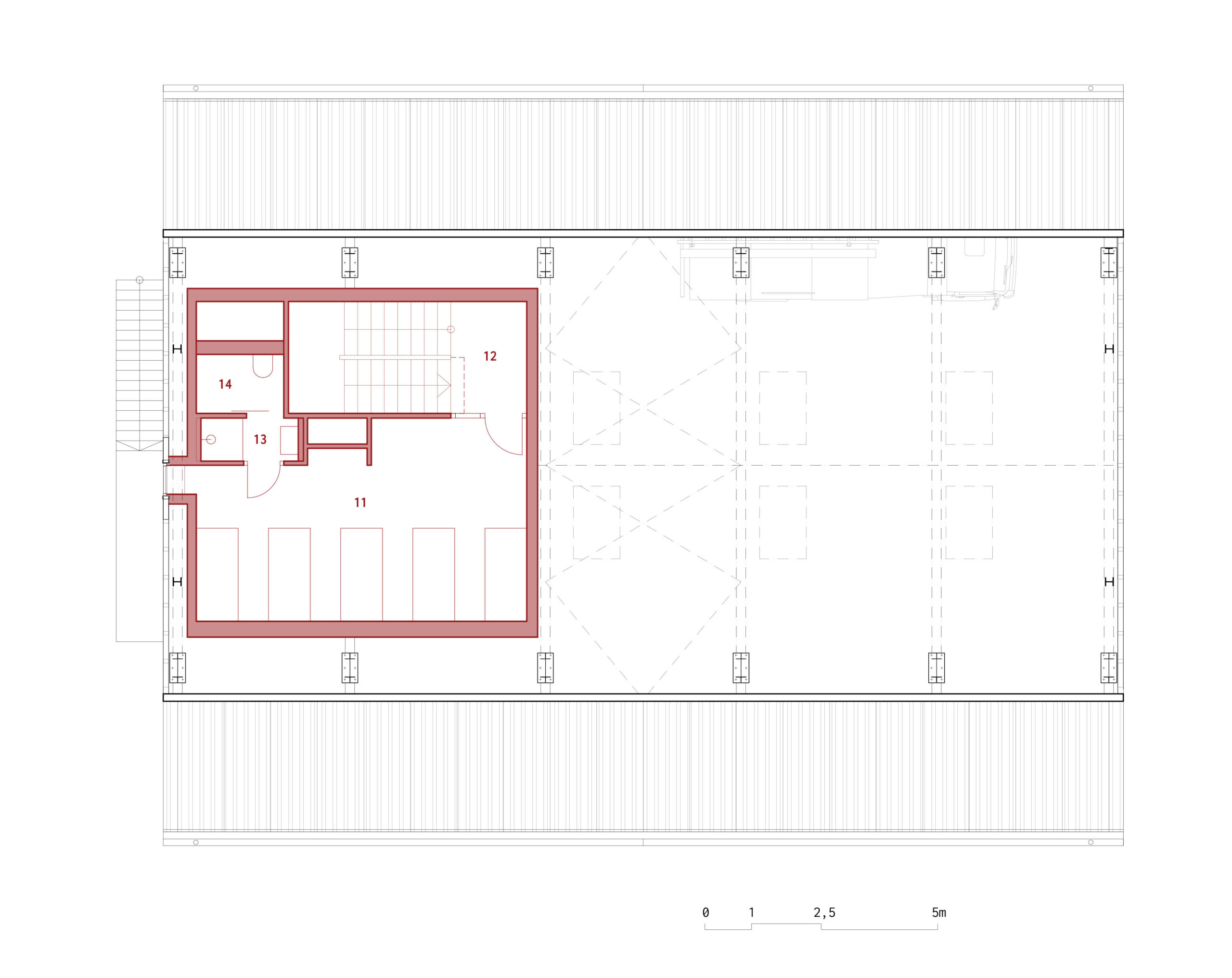
Od první skici návrh pracuje se třemi odlišnými teplotními zónami exteriér-garáž-vestavba. Jejich technické řešení a provozní oddělení jsou neodmyslitelnou součástí architektonického konceptu. Objekt je řešen jako ocelová hala opláštěná průsvitnou polykarbonátovou fasádou, do které je nezávisle umístěna „lehká“ dřevěná vestavba. Polykarbonátová fasáda zajišťuje vizuální propojení s exteriérem a ochranu hasičských vozidel před nepříznivými vlivy. Integrovaný dřevěný vestavek slouží jako zázemí pro hasiče. Na východní fasádě garáže je záměrně umístěno velkoformátové okno směrem do ulice, aby kolemjdoucí mohli nahlédnout do fungování zbrojnice a přiblížit si práci dobrovolných hasičů.

Konstrukce haly je ocelová rámová s vazníky a sloupy obdélného průřezu. Zavětrování je zajištěno ocelovými táhly. Fasáda garáže je tvořena stěnovým polykarbonátovým systémem ve skladbě polykarbonátový panel – vzduchová dutina s vloženou tepelnou izolací – polykarbonátový panel. Střecha se skládá ze sendvičových polyuretanových panelů ve skladbě plech – PUR – plech. Nad prostorem garáže a schodiště jsou ve střeše umístěny prosvětlovací panely.

K lehké a transparentní obálce hasičárny představuje pevný a kompaktní vestavek její protiváhu. Vodorovné i svislé konstrukce vestavku jsou z CLT panelů. Z interiérové strany jsou CLT panely přiznané pohledové, z vnější strany, směrem do garáže, jsou panely zatepleny dřevo-vláknitými deskami a obloženy borovicovou překližkou. Interiérové schodiště v zázemí je z ohýbaného slzičkového plechu. Exteriérové schodiště přiléhající na severní fasádu je z pozinkované konstrukce, podesta a stupně z pororoštu.
Autorská zpráva
Autoři SOA architekti / Ondřej Píhrt, Štefan Šulek, Ondřej Laciga, Kateřina Luftová, Štěpán Tomš, Marie Hojná
Místo Ke Křížku, 252 44 Psáry
Rok projektu 2023
Rok dokončení 2024
Zastavěná plocha 425 m²
Hrubá podlahová plocha 594 m²
Užitná plocha 429 m²
Plocha pozemku 1970 m²
Náklady 26,5 mil. CZK
Investor obec Psáry
Foto Alex Shoots Buildings
Komunikace Linka






































Kde jsou tyče na sjíždění o patro níž?
Asi u profíků, aby si dobráci neublížili.