Řešení bytového domu Affinity vychází z původního
urbanistického řešení celé lokality a navazuje na výstavbu v okolí. V domě
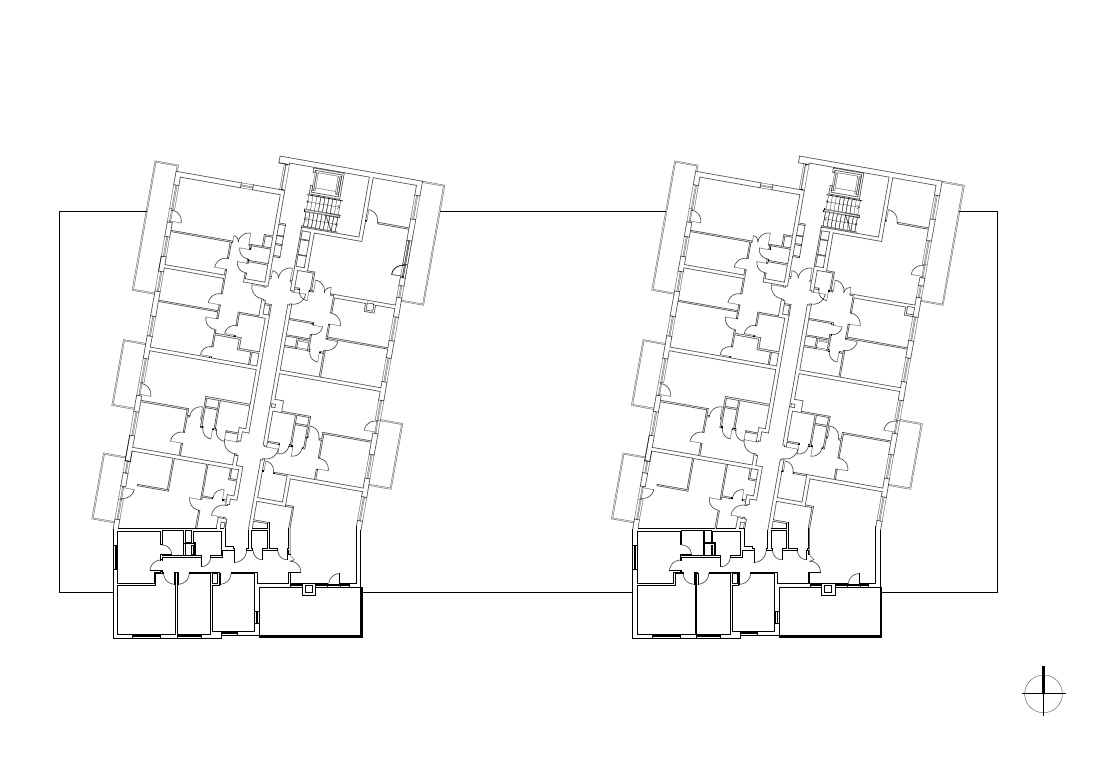
je 64 bytových jednotek a dvě jednotky komerční, umístěné v parteru.
Základem řešení je hmota polozapuštěného podzemního podlaží, která tvoří sokl
objektu. V tomto soklu se nacházejí dvě podzemní podlaží určené pro dvě
nebytové jednotky, parkovací stání a technické vybavení objektu. Na tomto soklu,
který vychází z ortogonálního rastru lokality, jsou dvě hmoty (sekce) bytového
domu o pěti nadzemních podlažích se severo – jižní orientací podélné osy. Ty
svojí hmotou volně navazují na bytovou výstavbu v severní části území včetně
mírného pootočení hmoty. Předstupující hmota sekcí na jižní straně vytváří
uliční frontu, která je potvrzena umístěním obchodních ploch v partetu podél
komunikace.
Fasády obou sekcí byly pojednány šedou barvou v kombinaci dvou základních
odstínů světlé a tmavé. Proříznutí hmot v místě teras zdůrazňuje fasádní plášť
z obkladových desek s dřevěným dekorem. Výplně balkonů jsou také ve dvou
materiálových řešeních – se skleněnou výplní a z žárově pozinkované pásoviny.
Kombinací těchto materiálů a polohy balkonů s různým rozmístěním oken vznikl
charakteristický vzhled domu. Obdélníková podnož je pro zdůraznění kontrastu a
vypíchnutí hmot domu obložena imitací kamene a upravena pro porůstání popínavou
zelení.
Autorská zpráva
Investor: Skanska Reality a.s.
Dodavatel: Skanska a.s., Závod Residenční výstavby




















Kaskády Hranice jsou skvělým příkladem toho, že i bytová výstavba může mít kvalitní architekturu, promyšlený urbanismus a příjemný prostor pro…
Architektura musí souviset s místem, nikoli místo s architekturou. Proto jakékoli stavby umožňující realizaci na různých místech nejsou ARCHITEKTUROU.
Z mého pohledu je fajn vidět, jak se i u tak „běžné“ věci, jako jsou překlady, řeší systémovost a přesnost!
Praktické řešení, hlavně z pohledu rychlosti výstavby a přesnosti👍 U těchto systémových prvků dává smysl, že zjednodušují realizaci a pomáhají…
Zajímavý posun ve stavebnictví, je vidět, že se dnes klade velký důraz hlavně na rychlost výstavby a přesnost provedení. Systémové…