CCC v Pekingu je název pro soukromou galerii manželů –
malířů žijících v Pekingu. Stavba je umístěna v rychle se rozvíjející umělecké
čtvrti. Zadání bylo na velmi těsném staveništi a k řešení byla zpočátku čelní fasáda.
V průběhu prací na projektu se zadání rozrostlo na celý objekt.
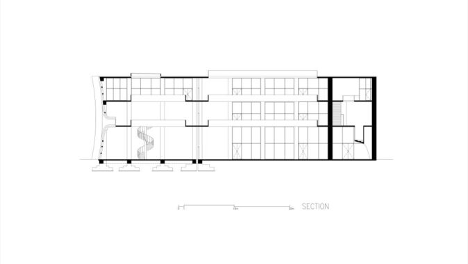
Náplní této třípodlažní stavby je galerie se zázemím a příslušenstvím,
pronajímatelné ateliéry, byt a ateliér majitelů. Stavba má strukturu
historických čínských staveb s atriem. Otvor v čelní fasádě dle principů feng
shui nasává blahobyt, prosperitu.
Jsou zde použity tradiční materiály šedé přepálené cihly způsobem známým z
mistrovských staveb českého baroka.
Stavba nese formální i strukturální odkazy na tradiční čínskou architekturu.
Autorská zpráva



























Do 4/1 jsou Mockerovy domy přístupné v rámci akce Vánoční putování Pražským hradem https://www.hrad.cz/cs/kultura-na-hrade/program/vanocni-putovani-prazskym-hradem-1-13462
Hodně mě překvapilo, že je v areálu Pražského hrad tahle zanedbaný dvorek. Na leteckých snímcích to vypadá líp, jako že…
Díky za odkaz, opravdu zajímavý projekt! Rekonstrukce za plného provozu je vždycky náročná, a je skvělé vidět, jak se to…
Ano, továrna v Pardubicích je velmi zajímavá. Kromě jiného rekonstrukce probíhala za plného provozu. Přikládám odkaz na celou stavbu, je…
V rámci Prahy jde o jednu z nejhlučnějších lokalit, které lze v centru najít. ideální pro drahé kanceláře a bydlení.…