Víkendový dům na okraji vesnice na Berounsku jako tvarový archetyp zahalený pod antracitový plášť z plechu. Voda místo do okapů a kanalizace stéká ze střechy po fasádě na zem, kde se vsakuje do půdy stejně, jako by se vsakovala bez přítomnosti stavby. Dlouhá vstupní fasáda orientována směrem k sousedovi, je kvůli intimitě zcela bez oken. Štítu naopak dominuje velké okno s občerstvujícím dálkovým výhledem přes vesnici do krajiny.
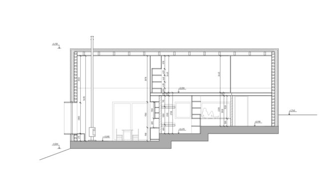
Chata není klasicky rozdělena na místnosti, ale naopak propojený prostor pomalu plyne a postupně proplouvá z jednoho do dalšího. Splnilo se tak přání rodiny, aby cítili, že zde tráví příjemný společný čas a zároveň, aby měli všichni své soukromí. Interiér se odehrává v různých výškových úrovních, které kopírují venkovní terén. Vykopaná hlína se použila na plynulé dotvarování terénu.
Do plechové slupky je vložena dřevěná dužina, která plní funkci nosnou, dělící, pohledově estetickou, haptickou i příjemně aromatickou. Ukrývá v sobě také dutiny jednotlivých pokojů, niku s kuchyňskou linkou, vestavěné skříně i úložný prostor pod postelemi. Spaní rodičů je účelně vyřešeno podobně jako v lodní kajutě na ploše 6m2. Podobnou plochu zaujímá i dětský pokoj s palandou. Do střechy se otevírá 24m2 prostorná galerie přisvětlená střešním oknem.
Nosné betonové tvárnice se neschovávají pod omítky, keramický obklad je pouze ve sprchovém koutu, štít je ztužen přiznanými ocelovými táhly.
Hlavnímu obytnému prostoru dominuje velký zarámovaný dálkový pohled, okno s velkorysým sezením. V ose otevřeného prostoru visí z hřebene otočná krbová kamna, která zahřejí po těle i po duši.
Autorská zpráva
Autor: under-construction architects“ Vladimír Vašut, Erika Vašutová
Lokalita: Osek,
Vystrkov
Projekt: 2017–2018
Realizace: 2019–2021
Užitná plocha: přízemí 55 m2 + galerie 24 m2
Zastavěná plocha: 74 m2
Plocha pozemku: 1173 m2
Užitná plocha: přízemí 55 m2 + galerie 24 m2
Zastavěná plocha: 74 m2
Plocha pozemku: 1173 m2


















































Architektura musí souviset s místem, nikoli místo s architekturou. Proto jakékoli stavby umožňující realizaci na různých místech nejsou ARCHITEKTUROU.
Z mého pohledu je fajn vidět, jak se i u tak „běžné“ věci, jako jsou překlady, řeší systémovost a přesnost!
Praktické řešení, hlavně z pohledu rychlosti výstavby a přesnosti👍 U těchto systémových prvků dává smysl, že zjednodušují realizaci a pomáhají…
Zajímavý posun ve stavebnictví, je vidět, že se dnes klade velký důraz hlavně na rychlost výstavby a přesnost provedení. Systémové…
Jako problém vidím hlavně "lavičky" v prostoru sdíleném s cyklisty. Neměly by mít třeba tyče s praporky, jako dětské nákupní…