Lokalita: úpatí Hostýnských vrchů a Javorníků / v místě bývalé samoty – usedlosti
Architektura: K návrhu chatky – cabin vedla dlouhá cesta. Zadáním bylo původně ve stopě vyhořelé a lety smazané usedlosti postavit dům nový a vrátit do místa zpět život. Ještě stále jsem na cestě k domu, ale do místa se život postupně vrací. Na počátku byla obnova cesty a sadu, pokračovali jsme návrhem ovčína, který se postupně ze „salaše” abstrahoval na cabinu – chatku.
Chatka je postavena nad bývalou usedlosti, využívá částečně svah pro umístění malého „sklepa”, nad kterým je postavena kostka se střechou skloněnou k jednomu z rohu. Sklon není samoúčelný, reaguje na jižní orientaci fotovoltaických panelů. Chatka je soběstačná, energie jsou dostupné pouze ve velmi vzdáleném okolí.
Zvenku kostka, uvnitř ní se odehrává bohatý život. Prostor je členěn na úrovně – oddělující vstup, pobytovou část i spaní. Chatka a její obyvatelé vnesli do místa opět život, sad začíná rodit své plody, stará studna zásobuje vodou zahradu, na místě usedlosti je venkovní kuchyně.
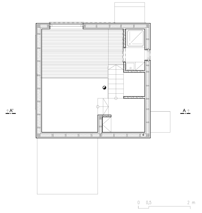
Dispoziční členění: Ze zádveří se po vyrovnávacím schodišti dostaneme do hlavního obytného prostoru s výstupem na terasu. Napravo od vstupu je toaleta a schodiště na mezonet se spaním a sociálním zařízením. Obytný prostor je propojen dveřmi s bočním vstupem se skladem. V podsklepené části je technická místnost.
Materiálové řešení: Dřevostavba na betonové podlahové desce a betonových základech. Řešena byla jako hrázděná konstrukce s výplní z minerální vaty a bedněním stěn. Střecha je dřevěná trámová se záklopem. Střešní hydroizolace je z fólie, izolace proti zemní vlhkosti z asfaltových pásů. Sklep je vyzděn z betonových tvárnic. Podlahy jsou dřevěné s nášlapem z prken nebo ocelového plechu.
Technologie: ostrovní systém, fotovoltaické panely pro ohřev vody a elektřinu/vrtaná studna/jímka.
Autorská zpráva
Investor: Tomáš Novosad
Autoři: Hana Maršíková, Jitka Ressová; spolupráce Martin Velecký
Zastavěná plocha: 30 m2
Obestavěný prostor: 162 m3
Hlavní dodavatel: Lumber
Autoři: Hana Maršíková, Jitka Ressová; spolupráce Martin Velecký
Zastavěná plocha: 30 m2
Obestavěný prostor: 162 m3
Hlavní dodavatel: Lumber


























Kaskády Hranice jsou skvělým příkladem toho, že i bytová výstavba může mít kvalitní architekturu, promyšlený urbanismus a příjemný prostor pro…
Architektura musí souviset s místem, nikoli místo s architekturou. Proto jakékoli stavby umožňující realizaci na různých místech nejsou ARCHITEKTUROU.
Z mého pohledu je fajn vidět, jak se i u tak „běžné“ věci, jako jsou překlady, řeší systémovost a přesnost!
Praktické řešení, hlavně z pohledu rychlosti výstavby a přesnosti👍 U těchto systémových prvků dává smysl, že zjednodušují realizaci a pomáhají…
Zajímavý posun ve stavebnictví, je vidět, že se dnes klade velký důraz hlavně na rychlost výstavby a přesnost provedení. Systémové…