Dlouhý nízký dům v klidnější části obce je usazen podél
cesty z malé kytínské návsi. Štítovými zdmi je vklíněn mezi stodolu a sousední
stavení (s úzkým průchodem okolo stodoly a obslužnou pěšinou kolem stavení).
Hmota domu o půdorysných rozměrech 5,3 x 21,5 m připomíná starý železniční
vagón. Výška střechy je při takto subtilní šířce domu dokonce 6,3 m. Z příčných
řezů je patrný větší sklon střechy a její převýšení vymykající se obvyklému
„českému“ poměru šířky a výšky domu. Vnitřní členění podlah ctí spád pozemku.
Rozdíl stávajících čistých podlah činí po délce 0,26 m.
Překvapivé měřítko přízemí a podkroví: jmenovitá výška obou podlaží umožňuje
propojení obou těchto často oddělených světů bez rizika ztráty identity prostoru,
bez velkých a nepatřičně mohutných objemů. Skvělá příležitost pracovat s
interiérem jako s jednou celistvou masou!
Stávající dispozice dlí v ostrém kontrastu s jednoduchou
hmotou stavby. Při třech vstupech se v domě ukrývají dva byty s čtveřicí napůl
propojených místností. Právě nejednoznačnost stávajícího řešení – vrstvy malých
rozhodnutí bez kontinuity – přinášejí z hlediska dispozic, životního prostoru i
stavební fyziky to „opravdové zlo“. Orientace domu je naopak jednoznačně dobrá.
Jižní fasáda je dlouhou přímou skálou, na kterou teče světlo v průběhu celého
dne. Tuto linii přerušuje pouze rizalit předsíně, kam je v návrhu zamýšlena
kuchyně. Exponovaná část (rizalit) poskytuje hospodáři pohodlné bdění nad celým
pozemkem od východu až ke stodole na západ. Kuchyň na tolik frekventovaném
místě by měla pro dům být velkým blahem.
Návrh spočívá v duševní i materiálové očistě od balastu 90. let a v návratu k
obyčejné, důvtipně vyřešené skladbě svislých i vodorovných konstrukcí. Založen
je především na nekonzervativní práci s vnitřkem domu a přiznání výšky
přes obě podlaží. Vnější krusta podnikatelského baroka má být i vzhledem k
rozpočtu zadavatele v principu zachována. Starý tepelně izolační systém na
rizalitu bude stržen a nahrazen dýchajícím zateplením z dřevovláknitých
desek. Fasádu doplní pouze poctivá terasa. Na ni navazují schody vedoucí od
kuchyně a obývacího pokoje k venkovnímu posezení. Ostatní fasády budou
vyspraveny tradiční dvouvrstvou omítkou – jádro a štuk. Tvar střechy zachováme,
krytina bude opatrně rozebrána a po nanesení stříkané izolace opět položena na
opravené laťování. Venku se nově objeví dřevěné schody do podkroví (na západě)
a na střeše rizalitu velké okno do kuchyně s posuvným lamelovým stíněním.
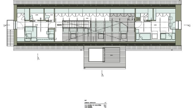
Původní dispozice dvou bytů bude změněna na princip bydlení
jedné rodiny. Bylo proto třeba určit i novou pozici hlavního vstupu blíže ke
stodole, v západní části jižní fasády. Vstupní hala se pak rozvětvuje napravo
do kuchyně, jídelny a obývacího pokoje s malým spacím koutem pro pana domácího,
nalevo pak do samostatné místnosti, která bude sloužit k popíjení s kamarády.
Halu doplňuje šatna pod schodištěm a koupelna se samostatnou toaletou. Pod
poklopem se ukrývají pohodlné stupně do sklepa. Vystupující dřevěné schodiště
vede do soukromé části s ložnicí rodičů a pokojem pro děti. Absence stropu halu
významně odlehčuje. Jednoduchý „odečet“ tohoto objemu umožnil sdílet světelné
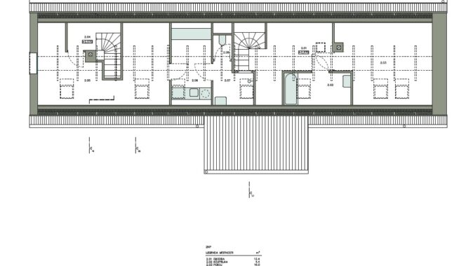
kvality obou prostor a při tom nenarušit intimitu a pocit malé chaloupky. Ložnice
rodičů a pokoj dětí jsme řešili formou dvou samostatných boxů přisazených k
horní šikmé rovině krovu a oddělených od prostoru galerie světlopropustnými
příčkami. Obnažené stropní trámy jsou narušeny pouze v místě výměny ocelové
konstrukce. Kostra vymezuje otvor pro schodiště, zpevňuje strop v horizontální
rovině a následně spojuje „půlštokové“ zdi vynášející pozednice a celý krov.
V podkroví je rovina klasické podlahové skladby nahrazena kombinací dvou
základních nástrojů – roštu a sítě. Tam, kde budou plochy v základním principu
nepochozí, volný prostor mezi trámy zakryjeme sítí. Slouží jako prvek
zamezující pádu a je možno si do ní i lehnout a přečíst si knížku. Pochozí
povrchy jsou vytvořeny z plné či roštového podlahy.
Věříme, že tuto rekonstrukci je možno brát jako příklad přístupu k domům, které
už jednou divokou proměnou prošly. Nastává „nová doba“ rekonstrukcí
podnikatelského baroka?
Autorská zpráva
Autoři: Radek Vaňáč, Pavel Nalezený, Ondřej Kuptík, Tadeáš
Pech, Mikuláš Valdman




























Architektura musí souviset s místem, nikoli místo s architekturou. Proto jakékoli stavby umožňující realizaci na různých místech nejsou ARCHITEKTUROU.
Z mého pohledu je fajn vidět, jak se i u tak „běžné“ věci, jako jsou překlady, řeší systémovost a přesnost!
Praktické řešení, hlavně z pohledu rychlosti výstavby a přesnosti👍 U těchto systémových prvků dává smysl, že zjednodušují realizaci a pomáhají…
Zajímavý posun ve stavebnictví, je vidět, že se dnes klade velký důraz hlavně na rychlost výstavby a přesnost provedení. Systémové…
Jako problém vidím hlavně "lavičky" v prostoru sdíleném s cyklisty. Neměly by mít třeba tyče s praporky, jako dětské nákupní…