Jakým způsobem se vypořádat s rozdílem výškových úrovní
komunikace a pozemku a s regulativem vyžadujícím sedlovou střechu? Jakým
způsobem navrhnout dům s maximálním kontaktem se zahradou?
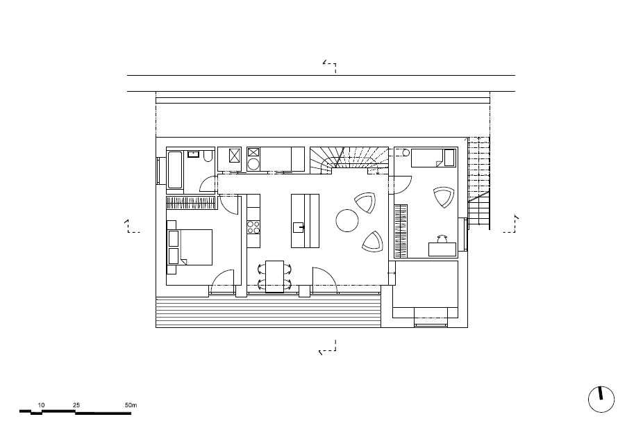
Klienti si přáli malý dům s velkou zahradou. Navrhli jsme
dvoupodlažní objekt situovaný na severní hranu pozemku, kde je většina obytné
plochy umístěna ve spodním podlaží v přímém kontaktu s terasou a zelení. Terasa
je kryta přesahem střechy, který zároveň stíní převážnou část jižní fasády.
Nahoře, v domečku se sedlovou střechou, se nachází vstupní
část a jedna obytná místnost orientovaná na jih do zahrady. Výhledům dominuje
mohutná památná lípa u potoka na jihu pozemku.
Klid, lípa, ovce na louce, zámek…
Autorská zpráva
Foto: Mark Prethero / blankfoto.com
Místo: Mníšek pod Brdy
Velikost: 100 m2



























Zajímavé, že HELUZ pořád tlačí nejen produktové novinky, ale i sdílení zkušeností z praxe 👍 Právě tohle mi dává největší…
Akustika je často podceňovaný, ale zásadní aspekt kvality bydlení... Článek dobře ukazuje, že nejde jen o samotný materiál, ale hlavně…
Oceňuji hlavně důraz na kvalitu provedení, nestačí jen dobrý materiál, ale i správná realizace. V praxi právě detaily často rozhodují…
Skvělý článek o akustické kvalitě staveb, která je často opomíjená, ale velmi důležitá. Systémy Heluz nabízejí dobrá řešení pro zvukovou…
Zajímavé téma, díky za sdílení. Tyhle novinky z praxe mají vždycky největší přínos 👍