Klient chtěl energeticky nenáročnou stavbu s co nejmenším obestavěným
prostorem. Její koncept vychází z archetypů místního lidového stavení –
především celkovou proporcí, půdorysem tvaru protáhlého obdélníku a typem a
sklonem sedlové střechy. Dům využívá některé v dnešní době již nepoužívané
tradiční prvky jako například zápraží, které je navrženo po obvodu a vymezují
ho posuvné okenice. V případě nepříznivého počasí lze zápraží a celý dům
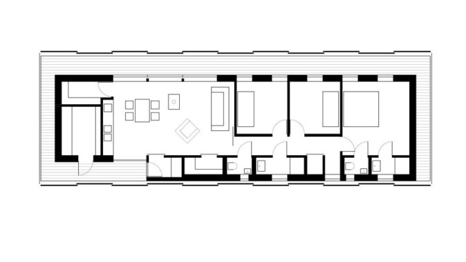
okenicemi uzavřít. Půdorys obsahuje jednu obytnou místnost s kuchyní a tři
ložnice, všechny orientované na jihozápad do zahrady. Koupelny, zázemí a vstup
jsou orientované na severovýchodní stranu.
Celá konstrukce stavby je ze dřeva. Stěny, střecha a fasáda mají rastr jeden metr, je to přesná stavebnice několika stále se opakujících prvků. Záměrně jsme navrhli hrubší konstrukční detaily s vůlí pro určité nepřesnosti, když se něco nepovede, zkroutí se trám nebo seschne šindel. V prostoru zápraží i v interiéru jsou přiznané části dřevěných krokví, vaznic a stropních trámů. Obvodová stěna za okenicemi je obložena plechovými panely, okna jsou hliníková. Na vnějším fasádním plášti, kterým je střešní krytina a obklad posuvných okenic, je dřevěný ručně štípaný šindel; na bočních štítových stěnách průhledný vlnitý akrylát zavěšený na dřevěných latích.
Dům je šetrný k životnímu prostředí už tím, že ho stavěli místní řemeslníci, dřevo konstrukcí a šindelový obklad pocházejí z místních zdrojů. Má vlastní studnu a jímku na dešťovou vodu. Na pozemku nejsou žádné zpevněné plochy, zahrada je stejná jako okolní louky a pastviny, splývá s krajinou.
Autorská zpráva
Foto: David Korsa
Autoři: Kuba a Pilař architekti – Tomáš Pilař, Ladislav Kuba; spolupráce Pavel Míchal, Josef Žufánek
Zastavěná plocha: 148 m2
Obestavěný prostor: 841 m3
Náklady: 3 mil. Kč
Foto: David Korsa
Autoři: Kuba a Pilař architekti – Tomáš Pilař, Ladislav Kuba; spolupráce Pavel Míchal, Josef Žufánek
Zastavěná plocha: 148 m2
Obestavěný prostor: 841 m3
Náklady: 3 mil. Kč




























Akustika je často podceňovaný, ale zásadní aspekt kvality bydlení... Článek dobře ukazuje, že nejde jen o samotný materiál, ale hlavně…
Oceňuji hlavně důraz na kvalitu provedení, nestačí jen dobrý materiál, ale i správná realizace. V praxi právě detaily často rozhodují…
Skvělý článek o akustické kvalitě staveb, která je často opomíjená, ale velmi důležitá. Systémy Heluz nabízejí dobrá řešení pro zvukovou…
Zajímavé téma, díky za sdílení. Tyhle novinky z praxe mají vždycky největší přínos 👍
Zajímavý webinář zaměřený na novinky od společnosti Heluz. Oceňuji hlavně představení cihel Heluz AKU a jejich výsledků v oblasti zvukové…