Koncept řešení, kromě hospodárnosti, cílí hlavně na kvalitní
oslunění, které má na člověka významný vliv, o to více v pozdním věku, proto se
také stavba snaží o vytvoření co nejlepšího prostředí pro obyvatele domu. Jak v
bytech, tak v exteriéru, ale i společných prostorech, které budou v našich
klimatických podmínkách v chladnějších měsících o to důležitější. Stavba se
snaží vytvářet optimální podmínky pro zachování aktivního života, dává možnosti
sociálních kontaktů, vytváří prostory pro setkávání a aktivity, a jejich silným
propojením díky centrální části stavby vytváří zase motivace k rozvoji těchto
aktivit a vztahů. Komunikační prostor se tak stává srdcem domu a komunity. Venkovní
plocha v předprostoru slouží k oddělení od ulice ale zároveň pro setkávání
a komunikaci s vnějším světem. Za objektem vzniká soukromá klidová zahrada s
jihozápadním osluněním. Zde je také v chráněné a osluněné poloze denní
stacionář. Byty jsou orientovány za sluncem, stavba k severozápadu pilovitě
ustupuje, aby nestínila, neosluněná část domu je využita pro zázemí objektu. V
neosluněné části pozemku je parkoviště a obsluha stavby.
Za špatných klimatických podmínek bude svou funkci plnit atrium, kde tónované
osvětlení bude nahrazovat denní sluneční režim a atrium tak bude víc než jen
komunikací, zimní zahradou a společenským prostorem.
Jako nejvhodnější řešení pro kvalitní oslunění všech bytů i
pozemku bylo zvoleno podélné/chodbové uspořádání domu/bytů a zachování shodné
orientace ke světovým stranám jako u okolních staveb při dodržení orientace
uliční sítě.
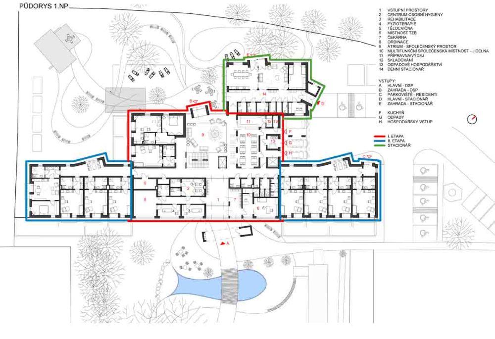
Stavba se skládá z kompaktního bloku (1. etapa) se zázemím a
byty, a z křídel přistavěných v druhé etapě. Dvě osluněné strany bloku slouží
pro bydlení, severozápadní část pro komunikace a společenské prostory,
neosluněná severovýchodní část skrývá servisní prostory.
Umístění rovnoběžné s ulicí a zapuštěné v zástavbě umožňuje v přijatelné míře
zachovat výhledy – soukromé zóny stávajících bytových domů i nových bytů. Před
objektem vzniká zklidněný prostor zeleně, kam jsou orientovány byty. Prostor má
zároveň dostatečný kontakt s okolím. V předprostoru jsou dlážděné a štěrkové
cesty, vodní plocha, posezení s šachovými stolky a hřiště na pétanque. Za objektem
se uzavírá soukromá zahrada a menší část zahrady pro stacionář, který je do
tohoto prostoru také orientován – do chráněné polohy s jihozápadním osvětlením.
Z důvodu zachování zeleného a klidného předprostoru je parkoviště a zásobování
orientované v hůře osluněné severní části pozemku.
Návrh se snaží využít výhod stavby kompaktního bloku s
možností dostavby jednoduchých křídel s byty. Přízemí slouží pro zázemí
objektu, dvě osluněné strany bloku tvoří byty. V centru bloku jsou vertikální
komunikace, které společně s atriem se společenskou funkcí tvoří srdce stavby.
Je vytvořen prostor sloužící pro přirozené setkávání a shromažďování obyvatel.
Prostor je doplněn zelení a přistíněním zavěšenými plachtami, které prostor
vyplňují a vyrušují výšku atria, vznikají příjemné celoročně využívané prostory
důležité pro společenský a sociální kontakt obyvatel domu.
Architektonické řešení je jednoduché, základní hmoty jsou jednoduchého
symetrického rozvržení. Do bílé hmoty jsou prolomeny lodžie kombinované s
balkony, otevírají jemně barvený vnitřní povrch. Část lodžie bude obložená
dřevem, které fasádu oživuje. V severozápadním průčelí se uplatňuje prosklené
atrium. U křídel jsou ze severozápadní fasády vykloněny části průčelí, které
směřují výhledy z menších shromažďovacích prostorů na chodbách k západu.
Kompozici oživují volně umístěné vstupy do objektu, provedené jako masivní
portály, které také přispívají k čitelnosti stavby.
Zahrada je doplněna o pergolu a altán rozletných forem. Zelené plochy jsou
protnuty dlážděnými spojovacími chodníky a klikatějšími štěrkovými cestami.
Velikost objektu vychází z požadavků zadání, všechny byty a
společné prostory jsou řešeny jako bezbariérové. Objekt je rozvržen tak, aby
bylo zajištěno všem bytům kvalitní oslunění a aby novostavba zapadla do původní
zástavby bez negativních vlivů na původní bytové domy.
Konstrukční řešení
Jednoduchý stěnový konstrukční systém s kombinovanou orientací bude mít
zdivo z porobetonových tvárnic, stropní konstrukce železobetonové (zmonolitněné
ztracené bednění). Založení na základových pasechze železobetonu. Stěny zateplené, opatřené stěrkovou
omítkou, kombinace s dřevěnými obklady v přírodním odstínu. Výplně běžné
konstrukce a provedení, zastřešení a opláštění atria z typizovaných systémových nosníků a zasklení.
Autorská zpráva
Návrh získal druhou
cenu v soutěži na Dům s pečovatelskou službou v Sezimově Ústí,
bude se realizovat
Autorský tým: Ing.
arch. Jiří Šťáva, Ing. arch. Veronika Kejdová, Ing. arch. Milan Grygar
Jednokolová veřejná projektová architektonická soutěž.
Vyhlašovatel: Město Sezimovo Ústí
Řádní členové poroty: Ing. arch. Štěpánka Ťukalová , Ing. arch. Dagmar Buzu,
Ing. arch. Radek Zeman, Mgr. Ing. Martin Doležal, starosta Města Sezimovo Ústí,
RNDr. Vojtěch Kadlčík, člen rady Města Sezimovo Ústí
Náhradníci poroty: Ing. Arch. Jan Stach, Ing. Miroslava Svitáková, tajemnice
Města Sezimovo Ústí
Přizvaní odborní znalci: Helena Řežábková, vedoucí sociálních služeb, Sezimovo
Ústí, Ing. Pavel Vochozka, rozpočtář staveb, Tábor
Datum konání soutěže: 19. 8. 2014 – 24. 10. 2014
Výsledky byly zveřejněny 4. 5. 2015
Počet odevzdaných návrhů: 16
Na těchto stránkách už jsme o soutěži psali
1. 9. 2015 a 12. 10. 2015
http://stavbaweb.dumabyt.cz/v-sezimov-usti-vybrali-projektanta-domu-s-peovatelskou-sluzbou-12787/clanek.html




















Kaskády Hranice jsou skvělým příkladem toho, že i bytová výstavba může mít kvalitní architekturu, promyšlený urbanismus a příjemný prostor pro…
Architektura musí souviset s místem, nikoli místo s architekturou. Proto jakékoli stavby umožňující realizaci na různých místech nejsou ARCHITEKTUROU.
Z mého pohledu je fajn vidět, jak se i u tak „běžné“ věci, jako jsou překlady, řeší systémovost a přesnost!
Praktické řešení, hlavně z pohledu rychlosti výstavby a přesnosti👍 U těchto systémových prvků dává smysl, že zjednodušují realizaci a pomáhají…
Zajímavý posun ve stavebnictví, je vidět, že se dnes klade velký důraz hlavně na rychlost výstavby a přesnost provedení. Systémové…