Hodnocení poroty: Silnou
stránkou studie je skvělé zmapování širších vztahů a velmi citlivá práce s
detaily i materiály. Porota si také cení vnímání celkového měřítka, snahy o
zachování hmoty včetně fragmentů původních zdí, vazby na zahradu kostela a
především umístění a nabídky krytého společného prostoru v těsné blízkosti se
zahradou ticha. Při hodnocení návrhu se spustila vcelku bouřlivá diskuse o
některých technických i formálních nedostatcíchm jako například nedostatečné
prosvětlení přízemí nebo ryze formální fragment vstupního objektu bez střechy.
Jednoznačně se však porota nakonec shodla, že tyto nedostatky mohou být
předmětem další diskuse a jejich korekce je reálná. Návrh porotu zaujal také
citlivým přístupem k místu a přesvědčivou artikulací znalostí lokality. I přestože
se mohou některé myšlenky autora zdát lehce „zasněné“, jsou vesměs
inspirativní a podnětné a stojí za to se jim věnovat blíže. Jednou ze slabých
stránek návrhu je dopravní řešení, zejména parkovací plochy v blízkosti objektu
zbytečně oddělují obytný dům a park. Řešené území je však natolik rozlehlé, že
lze uvažovat o jejich variantním umístění.
Autorská zpráva
Doubravník je příjemná vesnice, semknutá malebným údolím. Nachází
se tu mnoho sakrálních staveb v čele s monumentálním gotickým kostelem Povýšení
svatého Kříže. Obec v současnosti nejvíce formují krajina a řeka. Ty podle nás
tvoří největší potenciály městyse, který se vyznačuje dvěma tvářemi: z části má
charakter vesnice, ale nechybí zde místa charakteru malého městečka. Jedním z
cílů našeho řešení je dát kouzlu Doubravníku vyniknout.
Řešené místo se snažíme vnímat v kontextu obce se zřetelem na její centrum, na
které podle nás přímo navazuje. Podobně důležitá je i návaznost na krajinu s
řekou. Kromě toho je místo historicky ovlivněno existencí kláštera
augustiniánek. Duchovní odkaz kláštera chceme aktualizovat a aplikovat do úprav
zahrady a objektů. Zemědělský objet nám tak zpřítomňuje užitkovou zahradu
kláštera – s tímto odkazem jej tedy zachováváme a využíváme. Vytváříme funkční
zásahy tak, aby se stal další vrstvou místa a neevokoval stavbu „typu JZD“.
Vždyť i klášterní zahrady sloužily jako užitkové sady s hospodářskými budovami!
Mezi seniorským bydlením a startovacími byty vytváříme dva společenské
prostory: krytý s krbem, druhý pak otevřený, jakési „impluvium” s vodní nádrží
uprostřed. Obě místa jsou průchozí a slouží k setkávání obyvatel mezi sebou i
lidmi z venčí – ve spojení se zahradou ticha mohou sloužit i ke společenským
akcím. Jak z hlediska hmoty i z pohledu lidského se jedná o kontakt starého s
mladým. Původní pevný objekt obklopuje a ochraňuje vložená panelová dřevostavba
tak, aby se uzavíral směrem k zahradě klidu a otevíral do krajiny.
Problémy
Hlavní komunikace je nevhodně zvednuta tak, že vytváří vysoký násep, který
degraduje náměstí i místo u kravína. Automobily silnice doslova povyšuje nad
ostatní. Silnice nectí přirozenou modelaci terénu, znásilňuje náměstí a
způsobuje, že i prostor zahrady ticha není dostatečně klidný. Svoji šířkou provokuje
k rychlé jízdě.
Podobně nepříjemná je i stopa potoka. Místo malebného potůčku, jehož břehy by
umožňovaly přístup až k vodě, jsme konfrontováni se stokou. Tyto dva příklady
vnímáme jako nejproblematičtější úkoly, které by si zasloužily v dlouhodobém
měřítku řešení. Problémem není v Doubravníku kravín, ale degradace přirozeného
plynutí krajiny. Při odpočinku na náměstí je občan konfrontován s automobily
projíždějícími nad ním, nepříjemný je také pohyb v území stoky, opět s projíždějícími
automobily nad hlavou. Jako další problém vnímáme skutečnost, že náměstí působí
spíše jako park. V podstatě z žádného místa náměstí není pohled na kostel,
který by obzvláště v Doubravníku měl centru města vévodit. Jde o výrazný
orientační bod obce i krajiny. Díky stromům na náměstí také není pro příchozí
čitelná krajina kolem Doubravníku. Kopce, ohraničující Doubravník, mu dodávají
specifickou atmosféru. Ani ostatní sakrální stavby nejsou dostatečně zřetelné:
je třeba odkrýt i kapli Na Bozince. Považujeme za důležité, aby byla opět z
centra městyse vidět – vykácet lesní porosty tam, kde se dříve pásly kozy a
navrátit louky. Velmi výrazným problémem se jeví nedostatečné urbanistické
propojení pro pěší kolem řeky směrem k fotbalovému hřišti a nemožnost projít od
nádraží do západní části obce kolem potoku Rakovec. Veškeré tyto problémy se snažíme návrhem
řešit.
Charaktery míst
Městys jsme rozdělili na části, které mají nebo by měly mít odlišný
charakter:
Při cestě od severu vnímáme přírodní říční krajinu, která by měla být
zachována. V krajině vedeme úzké pěšiny. Mělo by jít o tiché místo, kde je
člověk spojen s přírodou a s řekou.
Severně od kravína by se mělo jednat o krajinu vesnickou – kulturní krajinu
s ovocnými stromy a potůčkem. Zde je pohyb lidí a sem se také otevírá objekt
kravína a dětské hřiště. Přes toto místo chodí obyvatelé městyse při cestě
severně říční krajinou.
Objekt kravína je určen svými obyvateli: seniory v přízemí a startovními
byty v patře. Dům má na obou svých koncích prostory určené obyvatelům i občanům
obce: uzavřenou stodolu s krbem pro kulturní akce a otevřenou „rajskou
zahradu”.
Jižně od kravína vnímáme charakter tiché zahrady, který je svým travnatým
prostorem vhodný ke kontemplaci. Stejně funguje i prostor zahrady kolem
kostela. Celkově kostel se zahradami utváří sakrální klidné místo.
Do tohoto členění také patří severozápadní náměstí, které má městský
charakter. Dotýká se úřadu i kostela a je jen částečně zarostlé stromy. Zde je
hlavní a důstojný prostor vhodný pro postavení máje a pro různé venkovní
aktivity městysu.
Mlatová část návsi volně navazuje na část náměstí. Charakter místa je
vesničtější a umožňuje posedávání na návsi u kašny a popíjení piva.
Prostupy skrze tyto vrstvy umožňují dvě pěší linie – zajímavější vede
pěšího z náměstí kolem kostela přes zahradu ticha, stodolu, kolem kapličky přes
řeku dále do říční krajiny.
Širší urbanistické
řešení, nové propojky pro pěší
Území v okolí kravína propojujeme s kapličkou sv. Anny a dále kolem řeky v
místě původního náhonu. Cestičku a mostek vedeme naproti kapličce. Vizuálně se
má mostek spojit s dveřmi. Z místa od kapličky je hezký výhled směrem na kravín
a především na kostel. Díky návratu přirozenosti potoka, přesunutí dětského
hřiště a jeho plotu, odstranění nevhodně postavené kamenné zdi, která prostor
odděluje od nově zpřístupněného potoka a odstranění elektrického sloupu, bude
pohled působit více vesnicky. Bude tak i díky bílému kostelu, bílému kravínu a
opravenému starému domku u vody, který by měl být v budoucnu odkoupen a opraven
a také bílé faře a celkovému přírodnímu prostředí a nově vysazeným ovocným
stromům. Na své původní místo navracíme i mostek a vytváříme jej jako uzavřený.
Další podobný mostek vede z ostrůvku směrem k nádraží. Jde o důležitou trasu
především pro vedení lidí na nádraží ze západní části. Tyto lidi vedeme kolem
nově upraveného potoka. Víme, že u nádraží nejsou všechny prostory v majetku
městyse, ale i tak si myslíme, že je nutné tuto pěší trasu do budoucna
vytvořit. Jde jednak o cestu praktickou ale také o cestu rekreační.
Další důležitá cesta vede kolem řeky na hřiště. Opět by bylo lépe ji vést
kolem řeky až na hřiště, bohužel se nejedná o pozemky v majetku městyse. Do
budoucna by bylo dobré o pozemky usilovat a vytvořit úzký pruh pro pěší. Případný
další mostek by mohl být postaven u hřiště opět z ostrůvku nebo dále proti
proudu. Ostrůvek by se potom pravděpodobně stal zajímavým přírodním místem
vhodným například na pálení čarodějnic. Ostrůvek je ovšem opět soukromý.
Urbanistické plánování však musí počítat s desítkami let, kdy se mohou mnohé
věci změnit.
Pěší krajinné cesty poblíž nádraží vedeme do malého podchodu pod
kolejištěm, díky kterému jsme schopni zelenou přírodní oblast propojit také se
severovýchodní částí městysu.
Další pěší propojka vede kolem řeky od silničního mostu východně. Směřuje
kolem tratě k rekreačnímu středisku za železničním tunelem. Momentálně se musí
obcházet kolem náměstí. Řeka s přirozeným přírodním korytem je vždy příjemným
místem pro procházení či zkrácení cesty. Podobně je i důležitou propojkou nová
cesta na Bozinku, která nevede jako dnes k zadní straně kaple, ale jako tomu
bývalo dříve, k jejímu vstupu. Ke kapli je možné přicházet po louce. Les je
třeba v části vysekat a pěšího vést směrem ke kapli. Propojka, kterou jsme
objevili, a která by jistě stála za řešení, je propojka mezi školou a školkou.
Směnou pozemků by mohla vzniknout úzká cesta mezi dřevěnými ploty, kde by se
mohly pohybovat děti.
Celá logika propojení řešené části tedy souvisí se zpřístupněním krajiny,
vytvoření přírodních mlatových cestiček, které slouží k rekreačnímu procházení
i k usnadnění cesty na nádraží. Prostor říční nivy by měl být přírodním parkem městysu.
Řešené území
V okolí kravína vytváříme užitkovou klášterní zahradu či venkovskou krajinu
s ovocnými stromy, přístupným potůčkem a mlatovým povrchem, kde lze zaparkovat
a účastnit se různých aktivit. Oblast vytváří meziprostor mezi náměstím a říční
nivou. Jak již bylo zmíněno, největší problém – zvednutá silnice a stoka místo
potoka – budou do budoucna upraveny. Do doby, než k tomu dojde, bude třeba
používat pro automobilové spojení cestu kolem řeky, která by měla být pouze
mlatová. Celý prostor je třeba udržet v přírodním charakteru. Mlatová cesta
směřuje automobily na severní stranu domu, kde mohou u zdi parkovat. Kolem
objektu je několik menších ovocných stromů, které nebudou rušit při pohledu od
kapličky sv. Anny směrem na kostel a opravený kravín.
Pozemky kolem řeky doporučujeme do budoucna odkoupit a celý prostor otevřít
až k vodě. Domek s kadibudkou doporučujeme zachovat a využít například jako
rybářskou klubovnu. Je vyznačen i na historických mapách a velmi dobře
prohlubuje směr průhledu ke kapličce. Dříve tu vedl vodní náhon. Objekt má
vhodné měřítko a je ryze venkovský, což dobře působí z pohledu od kapličky.
Prostor kolem potoka bude upraven a terén obnoven a snížen do původní podoby. Břehy
potoka zpřístupní jeho hladinu, vysází se tu vrby. Kolem potoka povede mlatová
pěšina od mostu k novému mostku.
Ve středu prostoru bude zachováno mlatové místo prorostlé částečně trávou, kde
bude možno pořádat aktivity ve spojení s kulturní stodolou. Celý prostor
venkovského charakteru se bude volně svažovat směrem k potoku. Zeď, dětské
hřiště a stěny potoka budou odstraněny, terén obnoven do přirozené modelace.
Dětské hřiště bude přesunuto k nově vyvýšené ploše navazující na kulturní
stodolu.
Kulturní stodola je zároveň vnitřním společenským prostorem s krbem a
zároveň místem, kudy je možno projít do zahrady ticha. Pokud bude ticho
narušováno průchodem lidí, bude zde vždy možnost vrátka i vrata zamknout.
Primárním problémem zahrady ticha je podle nás hlavně hluk od komunikace.
Náměstí
Přemísťujeme autobusové zastávky na vhodnější místo mezi náměstí a objekt
kravína. Hlavní silnici navrhujeme navrátit do původní nivelety terénu. Náměstí
se bude přirozeně svažovat a silnice již nebude vyvýšena nad ním. Vytváříme
náměstí vydlážděné tak, abychom zdůraznili jeho prostor na úkor parku. I proto
rušíme travnatý porost pod stromy a vytváříme středový mlatový obdélník.
Některé ze stromů odstraňujeme: konkrétně jehličnany a dva stromy kolem sochy v
severní části. Nově také rušíme ostrůvky exotické zeleně před východní linií
domů. Z tohoto místa je krásný pohled na kostel, který odkrýváme. Na náměstí
také odstraňujeme a jinam osazujeme různé informační cedule. Rušíme i ostrůvky
na křižovatce tak, aby dlažba náměstí byla jednolitou plochou. Hlavní
komunikace budou dlážděny většími kostkami a odliší se tak od plochy náměstí.
Hlavním přínosem úpravy a jeho ideou je rozdělit náměstí na dva celky – na
severní část u kostela, která má spíše městský charakter a jižní část, která je
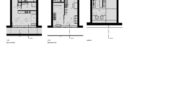
spíše vesnická se stromy. Doporučujeme dostavět objekt úřadu městyse hmotou se
štítem tak, aby objekty byly v jedné frontě na uliční čáře.
Objekt kravína
Původní kravín jsme se rozhodli zachovat a vestavět do něj novostavbu,
která bude využívat výhody ochrany starého objektu a nového, technologicky
moderního a ekologického objektu. Bytové jednotky jsme umístili do středu mezi
vnitřní společenský prostor s krbem a venkovní prostor – rajskou zahradu. V
přízemí se nachází bydlení seniorů, v patře pak startovní bydlení pro mladé
rodiny s dětmi. Koncepce umožňuje vzájemné potkávání, zároveň však zachovává
požadavek na bydlení v dostatečném soukromí. Proto do společných prostor vedou
obě schodiště z vrchní části bytového domu. Spodní byty seniorů jsme vytvořili
tak, že mezi novou dřevěnou stínící stěnou směřující do zahrady ticha jsou
soukromé zahrádky. Každý senior má svoji zahrádku na jižní straně domu poblíž
svého obývacího pokoje. Ze severu jsou seniorské pokoje prosklené do společné
chodby. Kuchyně je jakousi verandou a místem, kde se mohou senioři navštěvovat.
Senioři mají prostor chodby pod kontrolou.
Za místností s krbem je ordinace pro lékaře s čekárnou, toalety, malá
prádelna, schodiště s výtahem a technologická místnost. Prádelna bude fungovat
pro pečovatelku, která se stará o seniory, ta zde má možnost praní jejich
prádla. Byt pečovatelky a správce objektu se nachází v prvním patře u schodiště
a výtahu.
Přízemní byt pro seniora je bezbariérový. Vstupuje se z temperované chodby
přímo do kuchyně a malého jídelního koutku. Po straně celé dispozice vede
chodba, ze které se vstupuje přes prádelnu do koupelny se sprchovým koutem a
WC. Chodba je ukončena pokojíkem.
Do prvního patra jsme umístili mezonetové startovací byty. Úsporná
dispozice pracuje s prvním patrem, kde je společný obývací pokoj s kuchyní a
jídelnou, ložnice s pracovnou, prádelna s koupelnou, sprchovým koutem a WC.
Část ložnice je navržena jako pracovna, která může být propojena s obývacím
pokojem. V druhém patře podkroví je umístěn dětský pokoj. Dispozice bytu je
orientována podélně tak, aby světlo přicházející z jižní strany nasvítilo prostor
prvního patra. Na severní straně je vstup a větrací okénko z koupelny. Dětský pokoj
osvětlují dvě střešní okna.
Venkovní prostor s impluviem je určen především obyvatelům
objektu a slouží k posezení a k hraní dětí. Místo je definováno setkáváním
obyvatel. Jsou tu i malé dílny. Senioři by měli stejně jako na zahrádkách
prostor vyplnit květináči s rostlinami. K využívání by měl napomoci intimní i
charakter prostoru. V navazující části se nachází sklepy pro byty v patře, zde
mají také možnost parkovat kola.
Vnitřní společný prostor slouží jednak obyvatelům domu, tak i obci. Prostor kulturní
stodoly je místnost otevřená až do krovu, vytápí ji pouze velkým krb. Měl by sloužit pro hraní divadla, promítání filmů
a další akce. Dá se otevřít do všech tří směrů. Pokud se tedy stane, že při
hodech prší, prostor se otevře směrem ke kostelu a k náměstí.
AUTOŘI: City Upgrade s.r.o. – Ivo Pavlík, Lucie Chytilová, Vratislav
Ansorge, Jiří Polák, Anita Prokešová, Lenka Juchelková, Patcharasiya Kamphusan
REVITALIZACE BÝVALÉHO
AREÁLU ZEMĚDĚLSKÉHO DRUŽSTVA V HISTORICKÉM CENTRU MĚSTYSE DOUBRAVNÍK
Jednokolová veřejná
ideová architektonická soutěž, zařazená do projektu Ceny Petra Parléře 2015
Předmětem soutěže bylo zpracování ideového architektonického návrhu
revitalizace bývalého areálu zemědělského družstva v historickém centru městyse
Doubravník.
Vyhlašovatel: SPOLEČNOST PETRA PARLÉŘE, o.p.s.
Spoluvyhlašovatel: MĚSTYS DOUBRAVNÍK
Datum konání soutěže: 21. 04. 2015 – 11. 06. 2015
Datum zveřejnění výsledků: 23. 06. 2015
Počet odevzdaných návrhů: 13
Porota: Ing. Barbora Šenkyříková, starostka; Ing. Jiří Rous, člen Rady městyse;
doc. Ing. arch. Jan Mužík; MgA. David Maštálka; Ing. arch. Eva Špačková, PhD.
Náhradníci: Ing. Petr Sedláček, Ph.D., místostarosta městyse; MgA. Lenka
Křemenová.

























Architektura musí souviset s místem, nikoli místo s architekturou. Proto jakékoli stavby umožňující realizaci na různých místech nejsou ARCHITEKTUROU.
Z mého pohledu je fajn vidět, jak se i u tak „běžné“ věci, jako jsou překlady, řeší systémovost a přesnost!
Praktické řešení, hlavně z pohledu rychlosti výstavby a přesnosti👍 U těchto systémových prvků dává smysl, že zjednodušují realizaci a pomáhají…
Zajímavý posun ve stavebnictví, je vidět, že se dnes klade velký důraz hlavně na rychlost výstavby a přesnost provedení. Systémové…
Jako problém vidím hlavně "lavičky" v prostoru sdíleném s cyklisty. Neměly by mít třeba tyče s praporky, jako dětské nákupní…