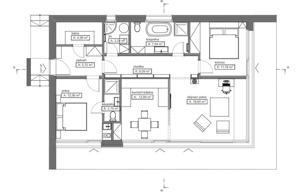
Objekt RD je přízemní. Při východní straně se nachází vstup do domu, tento je přístupný přes vyvýšenou terasu vzhledem ke zvolené konstrukci domu a úrovni ±0,000. Dispozice dále sestává ze zádveří, šatny, technické místnosti, koupelny, ložnice, obývacího pokoje, kuchyně s jídelnou a pokoje. Přes obývací pokoj lze dále pokračovat na venkovní terasu.
Základní hmoty fasád tvoří horizontální dřevěný obklad thermowood. Střecha je navržena jako pultová o sklonu 8 °. Střešní krytina pultové střechy je navržena plechová.
Majitelé
Pan domácí pochází z Příbrami, a i když ho pracovní povinnosti odvedly do Prahy, neustále s manželkou přemýšleli, že se do města pod Brdy vrátí. Jelikož děti jsou již odrostlé, nebylo třeba přehánět velikost domu. Dům disponuje dvěma bytovými jednotkami. Hlavní jednotka, pro domácí, sestává z obývacího prostoru s kuchyní, koupelny, ložnice a chodby s knihovnou. Druhá, menší jednotka, je tvořena samostatným pokojem obsahujícím koupelnu a kuchyňku. Ta přijde vhod pro návštěvy, případně pro rodiče na stáří či na podnájem.
Majitelé domu mají rádi knihy, a tak potřebovali opravdu velikou knihovnu. Kam ji ale v malém domě umístit? Odpověď přinesla chodba, do které byla umístěna opravdu velkolepá knihovna s knihovnickými schůdky. Nad koupelnou je pak ještě půdička, která je z těchto schůdků též přístupná.
Zaměstnání majitele také mělo výrazný podíl na podobě domu. Pracuje totiž jako úředník v lesnictví, a tak výrazné použití pohledového dřeva a zelené barvy není náhodné.
Výhledy
Dům má prosklené části orientovány jihozápadně, a to je orientace nejvíce náchylná na přehřívání. I proto má na těchto stranách dům přesahy střechy, které jednak chrání terasu před deštěm, ale také pasivně stíní v létě, kdy je slunce vysoko. A v zimě, kdy je slunce na obzoru nízko, dům získává veliké množství tepla díky solárním ziskům.
Hlavním důvodem orientace domu tímto směrem jsou ale výhledy na Brdy, hlavně na vrchol Třemošná. Majitelé chtěli, pokud možno, na tento kopec vidět z každého pokoje v domě, což se podařilo. Ačkoliv je dům přízemní, mírný sklon svahu umožňuje tyto výhledy naplno využít.
Tvarosloví
Autor návrhu o něm říká: „Majitelé chtěli přízemní stavbu. Já zase chtěl, aby nevyčnívala z okolní zástavby. A proto jsme rychle zavrhli sedlovou střechu. S plochou střechou by dům ale zase vypadal jak krabice od bot a do tohoto místa by se nehodil. Proto jsem navrhnul pultovou střechu, která sklonem kopíruje svah, na kterém dům stojí, a přenáší jeho dynamiku. Tím dům do okolí nepůsobí přehnaně nápadně a lichoběžníkový profil ho opticky odlehčuje. Ačkoliv uvnitř jsou nadstandardně vysoké stropy, dům nepůsobí vysoký.“
Zajímavost
Kromě knihovny se schůdky má dům ještě jednu skrytou zajímavost. Pod dřevěnou terasou je venkovní skladovací prostor na ovoce ze zahrady. Ovoce je tam ve speciálních úložných boxech. Řešení, které nestálo skoro nic a nahradí sklep bez nutnosti chodit po schodech.
Autorská zpráva, redakčně upraveno
Foto: Petr Polák
Studio: 3AE s.r.o.
Autor: Ing. arch. Lukáš Pejsar
Projekce: Libor Švehla, DiS.
Adresa projektu: Středočeský kraj, Březové Hory
Rok projektu: 2020
Rok dokončení: 2021
Zastavěná plocha: 149 m²
Užitná plocha: 89 m²
Plocha pozemku: 714 m2
Studio: 3AE s.r.o.
Autor: Ing. arch. Lukáš Pejsar
Projekce: Libor Švehla, DiS.
Adresa projektu: Středočeský kraj, Březové Hory
Rok projektu: 2020
Rok dokončení: 2021
Zastavěná plocha: 149 m²
Užitná plocha: 89 m²
Plocha pozemku: 714 m2

















































Z mého pohledu je fajn vidět, jak se i u tak „běžné“ věci, jako jsou překlady, řeší systémovost a přesnost!
Praktické řešení, hlavně z pohledu rychlosti výstavby a přesnosti👍 U těchto systémových prvků dává smysl, že zjednodušují realizaci a pomáhají…
Zajímavý posun ve stavebnictví, je vidět, že se dnes klade velký důraz hlavně na rychlost výstavby a přesnost provedení. Systémové…
Jako problém vidím hlavně "lavičky" v prostoru sdíleném s cyklisty. Neměly by mít třeba tyče s praporky, jako dětské nákupní…
Zdravím, děkuji za informaci o výstavbě v areálu i zmínku o vile, žel chybí aspoň informace, zda vila stojí a…