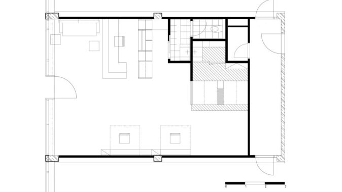
Mladý kadeřník koupil obchodní prostor v developerském
projektu v Olomouci. Požadavkem bylo vytvořit moderní interiér kadeřnictví
se všemi náležitostmi – sociální zařízení, čekárna, šatna, mycí zóna, úložné prostory,
prodej doplňků a samozřejmě kadeřnická křesla.
K prostoru jsme přistoupili se snahou omezit investice do
stavebních zásahů. Vytvořili jsme nutné zázemí, ale ponechali surový betonový
strop. Pracovali jsme s osvětlením, ale vyhnuli se dělení prostoru pevnými
příčkami a minimalizací dveří ve prospěch nábytku. Místnosti vévodí nábytková
stěna, která v sobě integruje recepci, zázemí pro kadeřníky i zákaznice a
odděluje vstup na sociální zařízení.
Šedé plochy betonu a vinylové podlahy doplnil dřevodekor dubu a již
samozřejmá bílá barva.
Autorská zpráva
Foto: Martin Cenkl
















Akustika je často podceňovaný, ale zásadní aspekt kvality bydlení... Článek dobře ukazuje, že nejde jen o samotný materiál, ale hlavně…
Oceňuji hlavně důraz na kvalitu provedení, nestačí jen dobrý materiál, ale i správná realizace. V praxi právě detaily často rozhodují…
Skvělý článek o akustické kvalitě staveb, která je často opomíjená, ale velmi důležitá. Systémy Heluz nabízejí dobrá řešení pro zvukovou…
Zajímavé téma, díky za sdílení. Tyhle novinky z praxe mají vždycky největší přínos 👍
Zajímavý webinář zaměřený na novinky od společnosti Heluz. Oceňuji hlavně představení cihel Heluz AKU a jejich výsledků v oblasti zvukové…