Jednoduché zadanie: chcem bývať v malom dome na malom
pozemku za rozumné náklady. Budget je pevne stanovený na 75.000 eur. V hlave mi
stále rezonuje spomienka na leto a vidiek.. Dá sa recyklovať typológia,
tvaroslovie či dekor slovenskej ľudovej architektúry?
V ľudovej architektúre sú zakódované vekom overené princípy, ktoré sú ešte
stále aktuálne, špeciálne v kontexte potreby zmenšovania našej ekologickej
stopy. Väčšie nie je vždy lepšie…
Ľudová architektúra je charakteristická svojim prispôsobením
sa prostrediu. Nikdy nebojovala s prírodou, ale stala sa jej súčasťou, na čo sa
pri novostavbách dnes často zabúda. Bola stavaná z miestnych materiálov, ktoré
boli ľahko dostupné a nepotrebovali dlhú a náročnú prepravu. Stavalo sa s
ohľadom na poveternostné podmienky a využívala takmer všetky výhody, ktoré
prostredie ponúkalo. Nikdy sa nerobili náročné terénne úpravy. Drevo, hlina i
slama ako základné stavebné materiály májú dobré tepelnoizolačné vlastnosti a
pomáhali tak šetriť na kúrení spolu s malými oknami. Okná nemali také dobré
vlastnosti ako dnes, zato boli pomerne malé (žilo sa vonku, takže z
hygienického hľadiska vyhovovali). Kontakt s prostredím aj v zime zabezpečoval
gánok, či podstrešná pavlač.
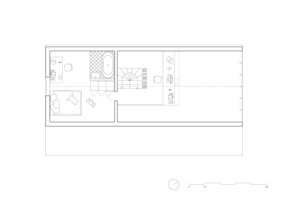
Obzreli sme sa späť a navrhli domček, ktorý je rurálny i
moderný. Má sedlovú strechu, gánok, farebné bodové okná. Tradičnú
trojpriestorovú schému izba—pitvor—komora sme zamenili za
izba—vstup/hygiena—obývačka. Podkrovie je čiastočne obytné, nad obývacou izbou
je otvorené. Pôdorysne skromný priestor dennej časti je kompenzovaný
grandióznym zasklením do záhrady v celej ploche rezu domom. Gánok plní tradične
funkciu nárazníkovej zóny medzi exteriérom a interiérom. Malý domček tak
získava ďalší vzácny priestor použiteľný aj počas nepriazne počasia.
Technologicky je domček veľmi jednoduchý. Ľahká drevená
konštrukcia je doplnená masívnou liatou betónovou podlahou s integrovaným
vykurovaním. Interiér je vložený, obligátna preglejka bude opäť plniť
konštrukčne estetickú funkciu vo forme stien, podláh či nábytku.
Autorská zpráva
Foto: Peter Jurkovič
veľkosť: 85 m2
miesto: Čunovo, Slovensko
architekt: arch. studio JRKVC – Peter Jurkovič, Lukáš Kordík, Števo Polakovič
Rozpočet: 85 000 €
Jako problém vidím hlavně "lavičky" v prostoru sdíleném s cyklisty. Neměly by mít třeba tyče s praporky, jako dětské nákupní…















































Krásné, praktické, účelné a ctí prvky lidové architektury.
Každý nemá děti. A přesto třeba obývá rodinný dům 😉
Paráda! 🙂
Jak tohle může být nazýváno rodinným domem? Kam se jako ta rodina má vejít? Nikde jsem na fotkách neviděla dětský pokoj. Autor se v článku rozepisuje o lidové architektuře a jak to bývalo kdysi. Tak kam uložíte ty 3 děti, co by normálně obývaly skutečný rodinný dům?