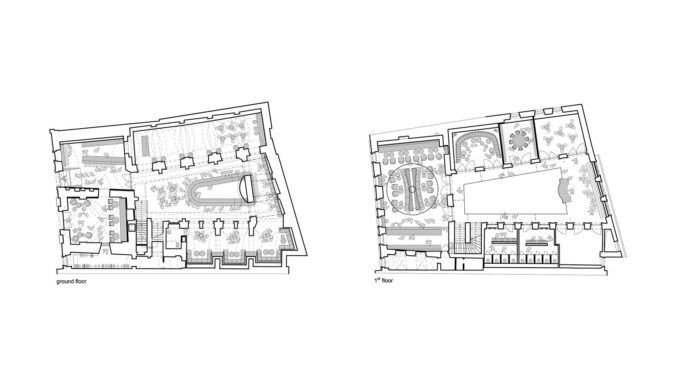
V pulzující Dlouhé ulici v centru Prahy dostalo
spojení ateliérů Formafatal a Machar&Teichman příležitost navrhnout tajemný
Moon club.
Nově otevřený klub přináší nový pohled na
design v této lokalitě. Zadáním investora bylo navrhnout podnik, který by svým
vzhledem a kvalitou detailu posunul laťku současné konkurenci výše.
Prostory, které původně sloužily pro
administrativu, jsou navázány na centrální dvoranu s prosklenou střechou. Ta
představovala hlavní výzvu jak z hlediska uchopení prostoru, tak z technického
hlediska, a to především v otázce akustiky, které byla věnována velká
pozornost. Zvolené řešení, jako je zdvojený skleněný strop, různé akustické
předstěny a omítky jsou integrovány do celkové koncepce interiéru.
Skloubení původní dispozice s požadavky na
provoz klubu vyústilo ve vytvoření několika různých zón. Podél dvorany jsou tak
v původních klenutých prostorech vytvořena útulná zákoutí s loungovým nábytkem
a intimním osvětlením, v další části je např. taneční parket. V patře je pak
možné z pavlače pozorovat dění okolo baru nebo se přesunout do některého ze
salónků a nebo jít nasát atmosféru Alchymist baru.
Hlavním motivem, jak už je patrné z názvu
klubu, je měsíc. Téma – tajemnost soumraku a noci, alchymistická mystika. Stěny
jsou zahaleny do patiny, která prostupuje celým prostorem a interiér klubu o
rozloze 740 m2, i přes jeho rozmanitost, sjednocuje.
Každý prostor měl reprezentovat svým
interiérovým řešením odlišnou atmosféru, přinášet nový zážitek, avšak stále ve
spojení s hlavním tématem tajemna a mystiky.
Použité materiály a barevnost se v jednotlivých
částech klubu proměňují – patinované plechy, opalované dřevo, masivní dřevěné
kostky, postářená zrcadla, malby ornamentů na zdech či různobarevnost sametů na
polstrovaném nábytku.
Významnou úlohu v interiéru hraje atmosféra
tvořena rozvrstvením osvětlení v různých intenzitách, skryté podsvícení,
designová svítidla nebo svítící objekty.
Celému klubu dominuje centrální bar, nad kterým
se vznáší siluety měsíce. Tři velké kruhové lustry se společně se zavěšenými
shluky válcových svítidel zrcadlí v proskleném stropu jako noční obloha a celý
prostor tak prohlubuje a nabývá na magičnosti.
Bar je obložen zlatavým vlnitým plechem a je
zakončen vysokou půlkruhovou stěnou z opalovaného dřeva, na jehož vrcholu je
místo pro DJ. Motiv kruhu je všudypřítomný.
Už z ulice dohlédnete do hlavní dvorany s
centrálním barem, a to skrz bývalý průjezd, kde se nachází první bar. Dřevěné
dlažební kostky na podlaze jsou zvoleny záměrně, vycházejí z původní funkce
prostoru.
AUTORSKÁ ZPRÁVA
Studio: Formafatal, Machar&Teichman
Autor:
Dagmar
Štěpánová, Katarína Varsová – Formafatal
Pavel
Machar, Radek Teichman –
Machar&Teichman
Projekt: 10/2017-10/2018
Realizace: 03/2018-01/2019
Rozloha: 740 m2
Fotografie: Jakub Skokan, Martin Tůma / BoysPlayNice



















































Kaskády Hranice jsou skvělým příkladem toho, že i bytová výstavba může mít kvalitní architekturu, promyšlený urbanismus a příjemný prostor pro…
Architektura musí souviset s místem, nikoli místo s architekturou. Proto jakékoli stavby umožňující realizaci na různých místech nejsou ARCHITEKTUROU.
Z mého pohledu je fajn vidět, jak se i u tak „běžné“ věci, jako jsou překlady, řeší systémovost a přesnost!
Praktické řešení, hlavně z pohledu rychlosti výstavby a přesnosti👍 U těchto systémových prvků dává smysl, že zjednodušují realizaci a pomáhají…
Zajímavý posun ve stavebnictví, je vidět, že se dnes klade velký důraz hlavně na rychlost výstavby a přesnost provedení. Systémové…