CELKOVÉ
ŘEŠENÍ A UMÍSTĚNI STAVBY V ÚZEMÍ
Urbanistické
řešení a měřítko
Měřítko městské struktury města Modřice
není příliš velké, domy v Benešově ulici jsou jednopodlažní, dvojpodlažní zcela
výjimečně trojpodlažní. Nový objekt sportovní haly ctí tento princip a výšku
okolní zástavby i přesto, že hala má světlou výšku v rozmezí 9 – 11 metrů, což
je výška trojpodlažního domu. Vyhrazený prostor pro stavbu haly je klín mezi
železničním koridorem a základní školou, což může zlepšit hlukové poměry pro
budovu školy, ale zároveň zhoršit poměry světelně technické v učebnách. Proto
je budova haly situována na samé hranici území směrem k trati. Původní objekt –
dnešní restauraci vnímáme jako historickou vrstvu, která je pro území kvalitou.
Paměť místa je něco, co má vysokou hodnotu i když těžko kvantifikovatelnou.
Obyvatelé se často jen velmi těžko vyrovnávají s demolicí takových objektů,
naopak vnímají tato místa jako něco původního, neměnného a uklidňujícího.
Předprostor budovy tvoří nástupní plocha
dlážděná drobnou žulovou mozaikou různých odstínů, která zdůrazňuje význam
budovy oproti okolní zástavbě.
Aby nedošlo k zastínění budovy školy, je
proti ní situován jednopodlažní obslužný trakt sportovního centra.
KOMPLEXNÍ
ARCHITEKTONICKÉ ŘEŠENÍ STAVBY
Architektonické
řešení
Objekt sportovní haly má
ambici a potenciál stát se i centrem komunitním. Architektura domu by proto měla
vyjadřovat solidnost, vážnost a vzbuzovat klid. To od takového domu bude
pravděpodobně očekávat i veřejnost. Stavba je proto navržena jako klidný dům
pevně stojící na zemi.
Hmotové řešení
Prostorový koncept se
vyrovnává s drobným měřítkem okolní zástavby. Velký objem haly je potlačen
rozčleněním do tří stejných hmot. Toto členění odpovídá vnitřnímu provozu –
velká hala obsahuje velké hřiště, které lze rozčlenit na tři hřiště
nohejbalová/volejbalová. Původní objem historického objektu restaurace U Brázdilů
se stal hmotovým vzorem, jeho opakováním je vlastně zdůrazněna jeho existence.
Zároveň tím nedochází k vytvoření hmotového novotvaru, který by mohl při
vzájemné konfrontaci s historickým objektem působit cizorodě a škodlivě.
Uliční fronta je dokončena objemovým otiskem sokolovny, domem, který má do
Benešovy ulice jen jeden otvor – hlavní vstup.
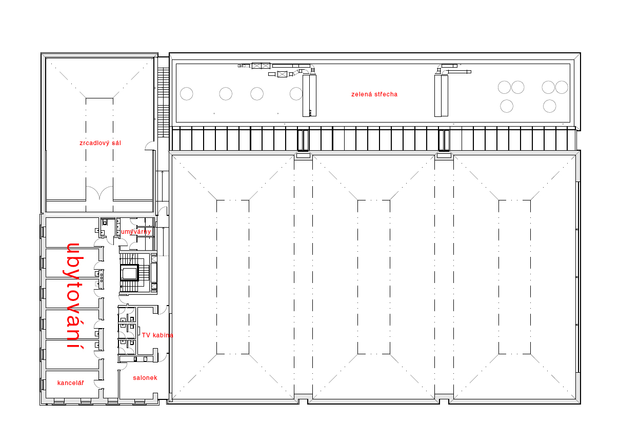
Úroveň podlahy velké haly
je zapuštěna o 3 metry oproti vstupu do foyer. Díky tomu se celkově sníží výška
objektu nad terénem, zlepší se tepelná bilance objektu a úroveň hlavní římsy se
srovná s úrovní hlavní římsy původního objektu. Prostory okolo haly u
zahrádky jsou oživeny průhledy do sportovní haly, které je možné zaclonit
předokenními roletami.
Interier
Interiér domu je
komponován tak, aby měl případný návštěvník prostorový zážitek a v objektu se
orientoval intuitivně. Průhledy do hlavní sportovní haly z foyer vedou příchozí
na tribunu. Cestou na tribunu příchozí míjejí prosklenou stěnu oddělující
tribunu a posilovnu. Posilující jsou vlastně aktéry obrysového divadla pro příchozí
a naopak. Členění interiéru domu často vychází z nosné konstrukce, kterou
estetizuje. To je případ velkých průvlaků v hale, které ji zároveň rytmizují a
slouží i jako úkryt pro dělicí opony jednotlivých hřišť v hale. Podlaha haly a
akustické obložení stěn je dubové, stěny jsou z pohledového betonu a
podhled světlíků je akusticky upraven. Přístupový ochoz na tribunu má
prosklenou střechu, která prosvětlí částečně i halu a přisvětluje skrze
prosklenou stěnu posilovnu. Osvětlení velké haly a zrcadlového sálu je řešeno
formou stropních světlíků. Aby bylo zamezeno vnikání přímých slunečních paprsků
do haly, je pod zasklením světlíků umístěna difúzní vrstva, která odstraní pro
sport nežádoucí kontrasty a celkově změkčí světlo v hale a v zrcadlovém
sále.
Suterénní prostory slouží
převážně pro šatny k velké hale a bazénu. Ten je situován na samém konci
obslužného křídla. Díky svažitosti pozemku, která na délku budovy činí zhruba
1,5 metru, je možné bazén prosvětlit přirozeně. Okna do bazénu jsou na úrovni
terénu, parapet čelního okna tvoří nízké široké stupně, které slouží jako místo
pro odpočinek nebo místo pro posezení dětí při výuce plavaní. Součástí bazénu
je i relaxační whirlpool.
Prostory posilovny a
bazénu nejsou provozovány městem, ale jsou pronajímány a provozovány
soukromníky.
Fasáda
Fasádu nových částí domu
tvoří omítka profilovaná do horizontálních říms průřezu pravoúhlého
trojúhelníku. Toto členění dodá velkým plochám detail a lidské měřítko. Lze ho
pokládat i za určitou reminiscenci bosáže, která člení fasádu sokolovny.
Fasáda původního objektu
restaurace U Brázdilů byla zrekonstruována do podoby, kterou ilustruje
pohlednice ze začátku 20. století, byla obnovena bosáž v přízemí a
zrenovovány ozdobné šambrány se suprafenestrami.
Provozní a dispoziční řešení
Dispozičním uzlem domu je
vstupní foyer, z něho je přístupný ochoz velké haly (přístup na tribunu,
do šaten pro posilovnu a zrcadlový sál a šaten pro venkovní kurty), který
vytváří jakýsi komunitní prostor, místo kde se může potkat divák a sportovec. Z
foyer je zároveň možné sejít do obslužné části šaten pro velkou halu a bazén.
Šatny sloužící pro obě tyto funkce nejsou striktně vymezeny, aby mohlo dojít k
funkční zastupitelnosti podle aktuálních kapacitních požadavků.
Poloha recepčního pultu
umožňuje vizuálně kontrolovat vstup z benešovy ulice i vstup od kurtů, který
bude používaný v souvislosti s vytížením zadního parkoviště a
v souvislosti s přístupem ke kurtům od šaten. V případě konání
společenské akce v hlavní hale, sportovní šatny ve vstupním patře zastoupí
šatny v suterénu, to umožní souběžně provozovat zrcadlový sál a posilovnu.
Z foyer přístupný sdílený klubový prostor lze využít třeba i pro výstavy. Na
vstupní halu je napojena sokolovna s ubytováním a restaurací. Oba dva domy je
však možné oddělit v případech, kdy to bude nezbytné prostým zamčením dveří.
Sportovní hala je
propojena se sousedící základní školou podzemní chodbou. Tato spojovací chodba
pod úrovní okolního terénu je napojena do krčku mezi starší a novější budovu
školy. Děti ze školy podzemní chodbou vstupují do sportovní haly v úrovni
hrací plochy hlavní haly, kde jsou také šatny a bazén, nemísí se tak
s případnou veřejností v 1NP.
První patro sportovního
centra zaujímá zrcadlový sál s horním osvětlením a ubytování v historickém
objektu. VIP salonek a TV kabinu, obě dvě místnosti s výhledem na hrací plochu je
možné obsloužit z restaurace nebo po nových schodech z foyer.
Ubytování nižšího standardu je určeno spíše pro sportovní oddíly.
Podkrovní prostor
sokolovny slouží jako ubytovací kapacita formou dvou velkých nocleháren pro
celý sportovní oddíl.
Konstrukční a technologické řešení
Nosnou konstrukci domu
tvoří železobetonový monolit, který zůstává z velké části z interieru
pohledový. Nosná konstrukce světlíků je ocelová, průvlaky v hale betonové lité.
Celý dům tedy tvoří těžký
obvodový plášť s tepelnou izolací. Částečné zapuštění haly zlepšuje její klima
v extrémech vysokých i nízkých teplot. Okenní otvory jsou minimalizovány, nejen
s ohledem k tepelným ztrátám i ziskům, ale i z důvodu horního osvětlení hal,
které přináší výrazně kvalitnější světlo. Vzduchotechnická jednotka pro halu
zaujímá prostor pod vstupní halou, bazén má svou vlastní vzduchotechnickou
jednotku. Pod bazénem se nachází technické patro, ve kterém se filtruje a
upravuje voda do bazénu a whirlpoolu.
Střecha novostavby haly je
plechová, tónovaná v barvě omítky. Střecha původního objektu je z pálených
tašek – „brněnek“. Nízká část se šatnami, posilovnou a bazénem má plochou
střechu a je pokryta extenzivní zelení.
Řešení okolí
Prostranství před sportovním
centrem je vydlážděno tak, aby působilo jako skutečný městský prostor. Mezi halou a školou vznikla nová ulice
se stromy a parkováním pro návštěvníky dlážděná tvárnicemi, které umožní prorůstání trávy. U stávajících kurtů
vznikla dvě nová hřiště, jedno víceúčelové, které je v zimním období možné
přeměnit na ledovou plochu a jedno antukové pro trénování nohejbalu. Velké
stromy u zahrádky restaurace zůstaly zachovány a v letních měsících tvoří
velmi příjemný prostor pro trávení volného času. V tomto místě se nyní
buduje také venkovní taneční parket a dětské hřiště.
AUTORSKÁ ZPRÁVA
investor: Město Modřiceautoři: Vojtěch Sosna,
Jakub Straka, Jáchym Svoboda / Atelier bod
architekti
hlavní inženýr projektu: Ing. Jan Svoboda
spolupráce: Karolína Urbánková, František Bosák
architektonická soutěž 2015, projekt 2015-17,
realizace 2018-20
generální dodavatel: Sdružení firem SYNER, s. r. o. a MORAVOSTAV Brno a. s.
plochy:
Celková výměra pozemků je: 6 483 m2
Celková zastavěná plocha je: 2 375 m2
Rekonstruovaný objekt restaurace s ubytováním: 660 m2
Sportovní hala s obslužnými prostory, bazénem a posilovnou: 3 566 m2
Celkové investiční náklady cca 189 mil Kč bez DPH
foto: Tomáš
Slavík
Jako problém vidím hlavně "lavičky" v prostoru sdíleném s cyklisty. Neměly by mít třeba tyče s praporky, jako dětské nákupní…



















































Paráda!