1. cena: Igor MACHATA,
OKDR 2.0
(UMPRUM,
vedoucí práce prof. Ing. arch. Ivan Kroupa, Ing.
arch. Jana Moravcová)
AUTORSKÁ ZPRÁVA:
Konflikt, fragment,
vrstvy
Začalo
to miestom. Chodím často okolo no nikdy nie priamo tam. Ale vždy tuším, že tam
už nie je to čo tam bývalo. Jeho bývalá prítomnosť visí vo vzduchu, vytvára
zvláštne napätie. Vnímam ho niekde v pozadí, keď cestujem okolo v električke.
Tu to je, tu to má byť. No nič tu nie je.
Miesto v Bratislave
s významnou polohou v rámci mesta, na križovatke jej hlavných osí,
s dobrým napojením na medzimestskú štruktúru.
Miesto
v Ružinove, na rozhraní štyroch kvadrantov sídliska, jeho centrum.
Je
to dynamické miesto. Miesto kde sa vrstvia rôzne časové stopy, a konfrontujú
dobové predstavy o spoločnosti.
Predmoderná doba, rameno Dunaja,
vidiek.
60te
roky, tabula rasa, výstavba sídliska. Výstavba občianskych stavieb sa
oneskorila o dve dekády. V území zatiaľ ostáva fragment pôvodnej vidieckej
zástavby. Nastáva prvý konflikt, stret rôznych dôb a predstáv
o spoločnosti.
80te
roky, dobudovávanie objektov občianskej vybavenosti. Architekti vyhodnocujú
experiment sídliska. Vzniká projetkt, ktorý si zakladá na napravovaní
nedostatkov modernistickej výstavby.
Ružinovský
dom kultúry a obchodný dom sú dva samostatné projekty, koordinované
spoločne, stojace spolu na vyvýšenom sokly. Vznikla tu nová výšková úroveň,
pravdepodobne na zdôraznenie kultúrneho významu funkcie, no možno aj ako gesto
vymedzujúce sa voči nedávnej minulosti, naznačujúce zmenu zmýšľania a nový
prístup k architektúre.
Nové
milénium, starý dom. Veľké ambície vytvoriť najväčšie obchodné centrum na
Slovensku práve tu. Nový projekt sa začal čiastočným rozobraním
prefabrikovaného skeletu a stavebnou jamou pre jeho rozšírenie. Rok 2008
kríza, bankrot krycej banky, nedostatok prostriedkov investora a krach
celého projektu, po ktorom ostala kostra bývalého domu a stavebná jama.
10
rokov nečinnosti človeka a prirodzená degradácia skelet premieňa v ruinu.
Dom sa stal pravou postmodernou, nefalšovanou kulisou, predmetom kolektívnej
pamäte, nemieneným pamäťníkom globálnych udalostí a ľudskej nenásytnosti.
V jame prirodzenou sukcesiou vzniká krajina, aj Dunaj je tu stále
prítomný.
Miesto ma fascinuje vo svojom
súčasnom stave. Má silnú prítomnosť, sprítomňuje minulosť. Prázdnota a ruina
umožňujú osobnú interpretáciu, vyvolávajú predstavy o minulosti,
potenciálnej budúcnosti, vizualizujú plynutie času. Táto vlastnosť miesta s
jeho čsovými stopami sú cenné, obzvlášť v kontextoch sterilných sídlisk.
Degradácia sa však šíri do okolia
a paralyzuje priestor. Miestni ho nenávidia, dali mu ľudový názov
Hirošíma. Územie má byť centrom sídliska, miestom pre Bratislavu, no nie je
ním. Je nutné z neho spraviť prístupný verejný priestor.
Cieľom projektu sa stáva
sprístupnenie miesta verejnosti, sprostredkovanie zážitku z priestoru, snaha
o ponechanie kvality a otvorenosti pre individuálnu interpretáciu. Ako
zmeniť a pritom zachovať. Vzájomné konflikty fragmentov prítomných
časových stôp, vrstevnatosť ktorá je zakorenená v samotnom mieste, sa
premieta do novej vrstvy a definuje návrh.
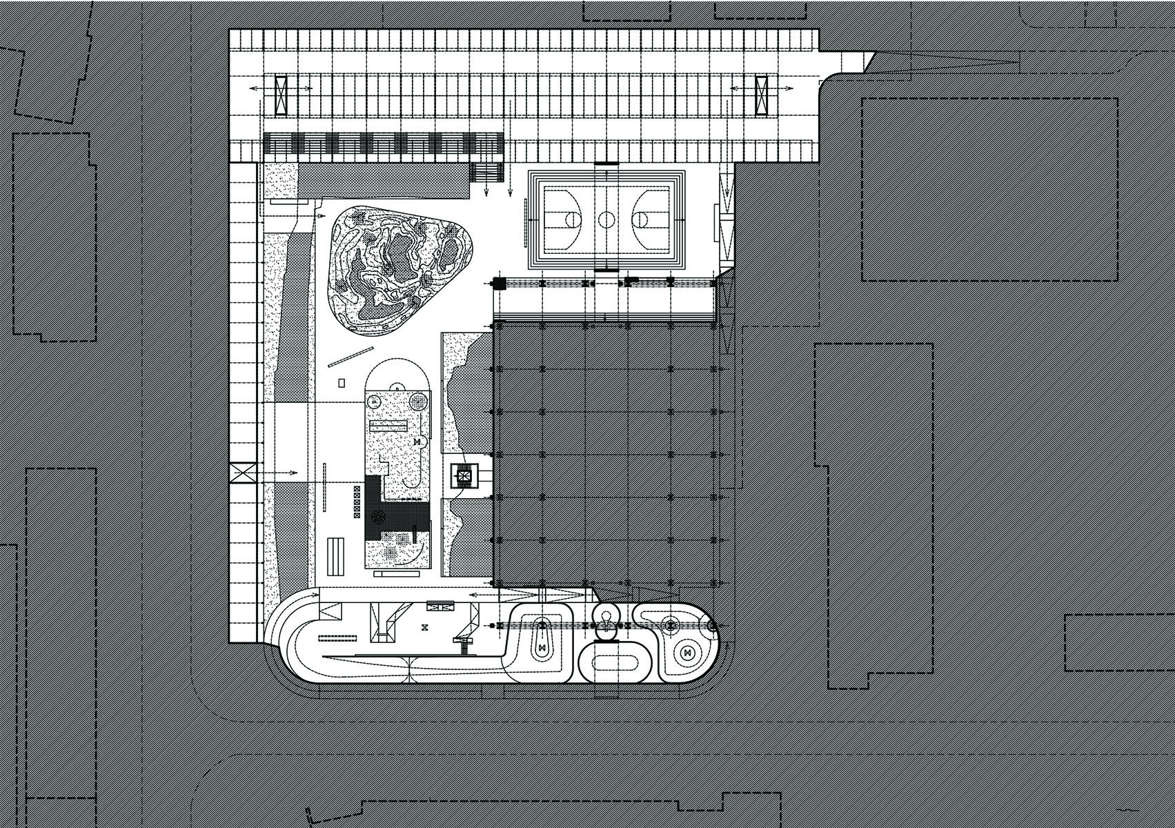
Riešenie
Územie
je zložene z viacerých autonómnych prvkov. Spolu tvoria funkčné územie.
Viac sa zaoberám priestorom jamy a ruiny skeletu.
Park,
zastávka, križovatka, uličný profil
Križovatka
ako rozhranie štyroch parkov. Riešený park ako funkčná voľná plocha, predpolie
Domu kultúry. Park sa tradične využíva na sezónne podujatia ako cirkus, hody,
a putujúce zábavy. Tieto funkcie považujem za vhodnú atrakciu od chrbtice
sídliska. Čo potrebuje je kultivácia zelených a spevnených plôch.
Zmena
nosného systému MHD a presunutie prestupnej zastávky na os centra podľa
územného plánu. Navrhujem pokračovať v existujúcon koľajovom, prízemnom
spôsobe dopravy. Stvárnenie predstavy o novej zastávke ako dynamického,
lineárneho nástupišťa.
Nová
križovatka ako bezbarierový a zdielaný priestor, ktorý núti účastníkov premávky
rešpektovať sa navzájom.
Riešenie
nového uličného profilu, vychádzajúci z územného plánu, ako takmer
okamžite zrealizovateľný zásah. Hierarchizácia priestorov, pridanie pozdĺžneho
parkovania na Tomášikovej, ktoré chráni novú cyklotrasu.
Dom
kultúry
Projekt
Domu kultúry, bol realizovaný s priestorovými rezervami. Voľné podlubie
domu, bolo časom vyplnené doplnkovými funkciami. Schopnosť domu zniesť
parazitovanie iných funkcií považujem za jeho architektonickú kvalitu. Ich
súčasné stvárnenie je otázne, nevhodne zasahujú do objektu, potláčajú jeho
formu a význam. Pri, v budúcnosti, plánovanej rekonštrukcii navrhujem
prestavbu parazitov a nastavení parametrov prí ďalších dostavbách –
repšektovanie pôvodnej formy domu.
Namiesto
priestoru dnes cestovnej kancelárie, navrhujem dostavbu zázemia malej sály,
ktoré dnes absentuje a komplikuje jej prevádzku.
Námestie,
jama a ruina
Jama/1pp
Jama
ako nová výšková úroveň v území, vrstva súčasnosti. Sledujem časom
prirodzene vzniknuté kvality. Sledujem hrany jamy, a podporujem ich charakter.
Nová vrstva sa prítomným kvalitám vyhýba, rešpektuje a rámuje ich.
Ponechané kvality a charaktery hrán z časti definujú nové funkcie.
Jama
ako ihrisko, skatepark, športovisko, parkovisko. Tieto funkcie sa navzájom
čiastočne prelínajú, zasahujú do seba, vytvárajú priestor pre náhodu
a podnety.
Časti
fragmentov skeletu v tejto úrovni ponechávam v exteriéry, stávajú sa
súčasťou verejného priestoru a nových funkcií.
Ruina/obchodný
dom/1pp
Sledujem
projekt pôvodného obchodného domu, hodnotím ho ako kvalitnú, progresívnu
architektúru. Definujem nosné koncepčné
priestorové prvky domu, ktoré sú vďaka ruine skeletu stále prítomné, nový návrh
ich nasleduje. Nové konštrukcie nadväzujú na modul skeletu.
Skelet
ponechávam tam kde sa dnes najlepšie prejavujú jeho kvality ako ruiny 2pp –
1np. Jeho rozobrané prvky čiastočne recyklujem v novom návrhu.
V rámci
ruiny umiestňujem funkciu 50 m plaveckého bazéna. Konštrukcia bazéna je
previazaná s ruinou,“zalieva” ju, a z časti ruinu prezentuje.
Činnosť plávania ako sústredená individuálna aktivita, fyzická námaha
a mentálna očista podporuje zážitok z priestoru ruiny skeletu.
50
metrový plavecký bazén s 10 dráhami, ako jeden z troch takých bazénov
v Bratislave, patrí k najväčším z nich. Ako jediný bazén
v Bratislave umožňuje hru vodného póla v oficiálnych požiadavkách.
Parter
Nové
námestie ako strecha parkoviska s rozkladateľnými trhovými stánkami.
Aktívny parter objektu bazénu s priehľadom do bazénovej haly.
Krabica
2-3 np
Nový
priestor, oceľová priehradová konštrukcia, doplňuje pôvodný výškový objem domu,
zastrešuje bazén a ruinu pod ním.
Priestorovo
štedrá hala s voľnou dispozíciou, otvorená využitiu, nateraz nedefinovaná
funkciou.
Umelé
a nedefinované prostredie krabice ako odpoveď na zamyslenie sa nad typológiou
obchodného domu. Ako nestála typológia, na pokraji svojej ďalšej reformi.
Nakupovanie sa vytráca z fyzického priestoru, hľadáme za neho
náhradu. Strecha krabice ako nová
verejne prístupná úroveň.
Fasáda
krabice pozostáva z recyklácie stropných panelov prefabrikovaného skeletu,
ako ďalšia vrstva práce s ruinou, a pokračovanie v pôvodnom
riešení domu, ktorý ako prvá stavba použila tento spôsob využitia stropných
panelov systému INTEGRO. Tento prvok je prítomný na mieste aj dnes
HODNOCENÍ POROTY:
Vítězný projekt porota
vnímá jako manifest v přístupu k potenciálu míst pohybujících se na okraji
zájmu. Míst, která v sobě často zhmotňují nenaplněné vize předchozích generací
a zrcadlí vývoj měnících se společenských tendencí i priorit. Jak navázat tam,
kde předchozí přístup obsahově i morálně zestárl ještě v procesu samotného
zrození? Autor vnímá příčiny i širší urbánní kontext a s torzem Domu kultury
vědomě pracuje jako s potenciálem nedokončenosti, která se stává jejím hlavním
východiskem. Na místo principu tabula rasa nabízí cestu vrstvení a hledá
způsob, jak uchovat přítomnost v nevyslovení definitivní formy, avšak při
zdůraznění podstatného. K předchozí doplňuje další vrstvu stále nedokončeného
příběhu, díky němuž vzniká autentický, nepřikrášlený svět, který předchází
tomu, co teprve přijde. Porota oceňuje celkové neprvoplánové pojetí i hledání
smysluplného potenciálu v prostorách, které pozbyly svého původního významu.























Kaskády Hranice jsou skvělým příkladem toho, že i bytová výstavba může mít kvalitní architekturu, promyšlený urbanismus a příjemný prostor pro…
Architektura musí souviset s místem, nikoli místo s architekturou. Proto jakékoli stavby umožňující realizaci na různých místech nejsou ARCHITEKTUROU.
Z mého pohledu je fajn vidět, jak se i u tak „běžné“ věci, jako jsou překlady, řeší systémovost a přesnost!
Praktické řešení, hlavně z pohledu rychlosti výstavby a přesnosti👍 U těchto systémových prvků dává smysl, že zjednodušují realizaci a pomáhají…
Zajímavý posun ve stavebnictví, je vidět, že se dnes klade velký důraz hlavně na rychlost výstavby a přesnost provedení. Systémové…